
|
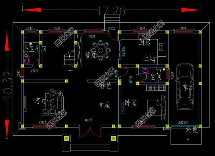
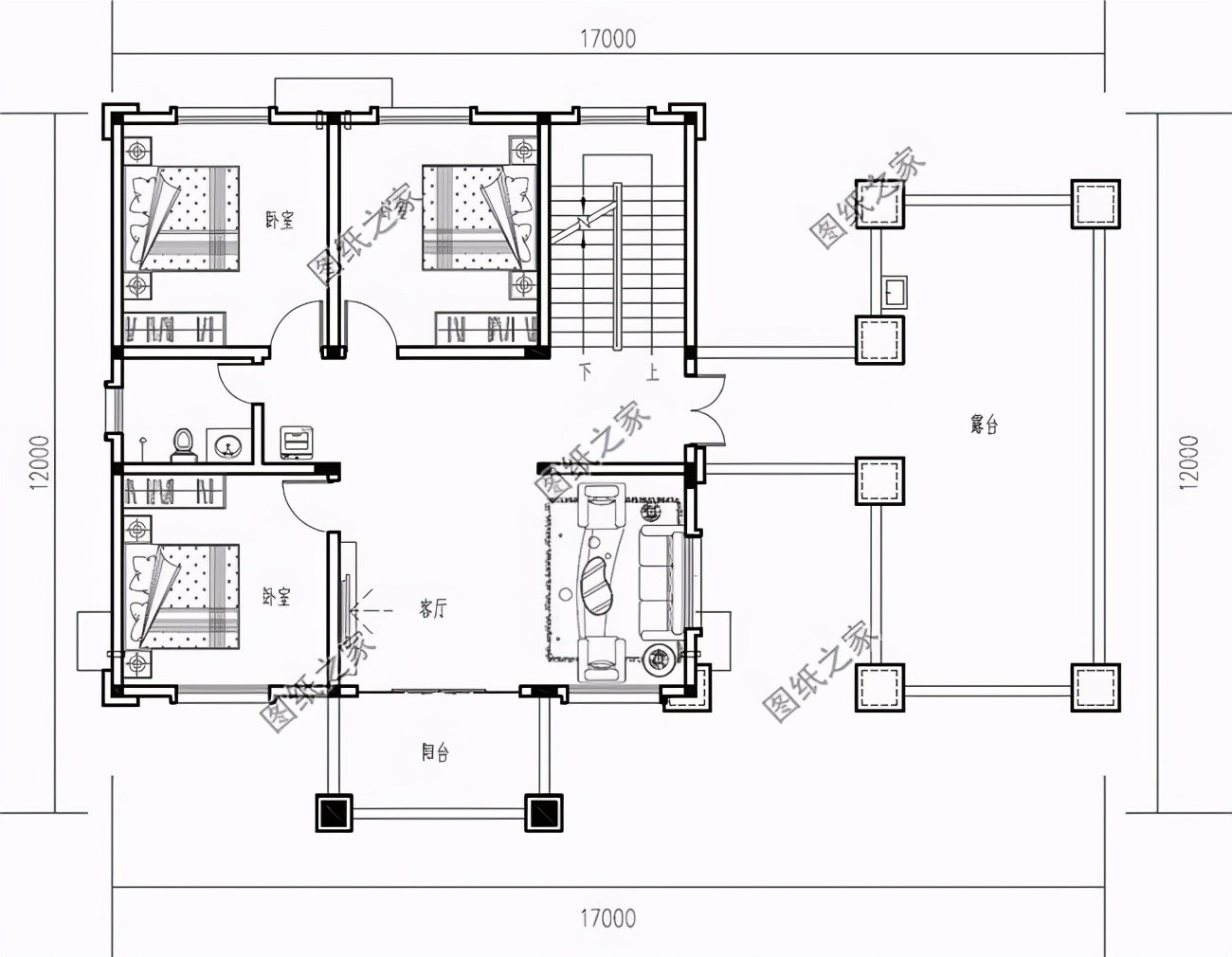
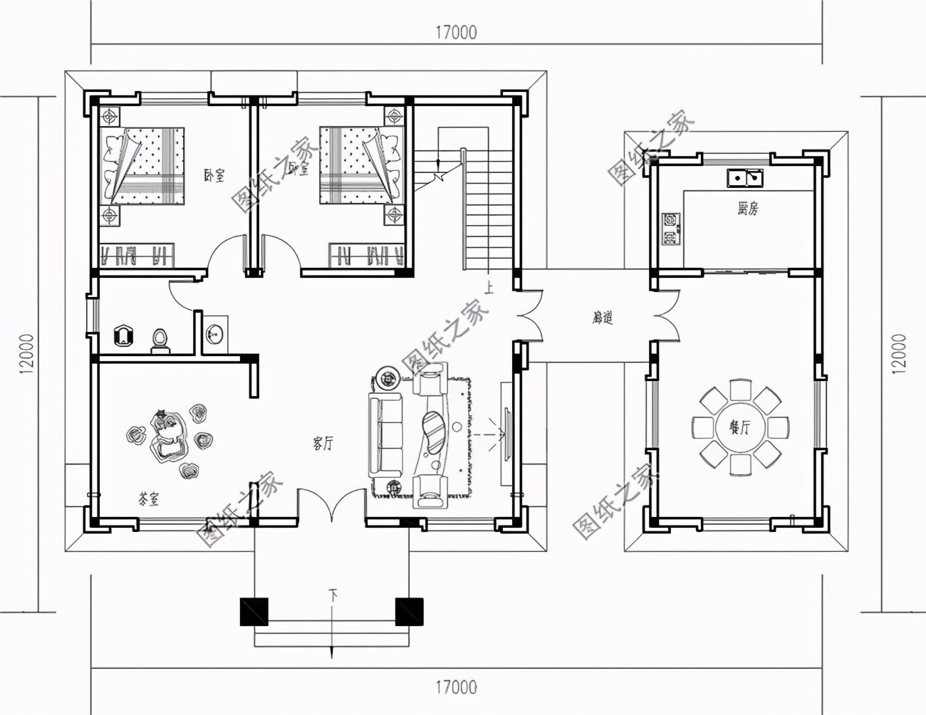
現在農村生活越來越好了,現在建房大部分都不是單單只為了居住,而是賦予了更多的作用和價值體現,為了追求美,各種設計精巧的鄉村別墅一棟棟拔地而起,各種構思精妙的農村小樓一幢幢映入眼簾,但是也要適用自家的宅基地,今天小編就推薦三款18乘12米的農村自建房設計圖以及戶型圖,來看看吧 第一款:兩層四開間歐式設計圖以及戶型圖,大氣時尚![]() 經典的歐式別墅,端莊典雅,別墅外墻主體用米黃色外墻磚裝飾,黃色外墻磚點綴,屋頂是橘紅色琉璃瓦,清新自然,十分賞心悅目。挑出的門檐用非常厚重的羅馬柱支撐,使別墅看上去更加的氣派豪華。入戶是玄關,玄關與客廳兩者結合,使室內更加的寬敞氣派。 占地面積:17m*11.8m,170平方米左右; 建筑層高:二層; 建筑高度:10.011米(含屋頂); 設計功能: 一層戶型:玄關、神位、客廳、廚房、餐廳、臥室x3、衛生間x2; 二層戶型:客廳、臥室(帶衛生間)、臥室x4、衛生間、陽臺、露臺; ![]() ![]() 第二款:新農村二層四間別墅設計圖以及戶型圖,帶車庫設計![]() 別墅的外墻采用棕色外墻面磚與黃色、白色涂料噴飾,廊柱巍峨挺拔,盡顯硬朗大氣,搭配弧形優美落地窗,讓人看了就無法忘記,且戶型采用多窗多陽臺的設計,讓戶主住的更加舒適! 占地面積:18m*12.3m,217.21平方米左右; 建筑層高:二層; 建筑高度:9.935米(含屋頂); 設計功能: 一層戶型:客廳、廚房、餐廳、土灶房、臥室(帶衛生間)、臥室、棋牌室、倉庫、車庫、衛生間; 二層戶型:客廳、臥室(帶衛生間)、臥室x2、衛生間、露臺; ![]() ![]() 第三款:帶車庫的三層別墅設計圖以及戶型圖,氣派有檔次![]() 帶堂屋的戶型,農村生活太香!外觀造型簡潔大方,色彩明快,采用歐式風格一貫的精致線條,外墻乳白色真石漆和深褐色面磚搭配修飾,羅馬柱造型變幻,豪華氣派,大面積的開窗設計,讓別墅美觀的同時,居住舒適度也毋庸置疑,加上紅色的坡屋頂和屋檐,別墅頓顯生動活力。功能分區合理,房間尺度設計適宜,采光通風良好,富有時代氣息。 占地面積:17.26m*10.32m,163.8平方米左右; 建筑層高:三層; 建筑高度:12.831米(含屋頂); 設計功能: 一層戶型:堂屋、神位、客廳、餐廳、廚房、臥室(帶衛生間)、衛生間、車庫; 二層戶型:書房、臥室x3、臥室(帶衛生間)、衛生間、陽臺、露臺; 三層戶型:健身房、臥室、臥室(帶衛生間)、衛生間、陽臺、露臺x2 ![]() ![]() ![]() 第四款:新農村實用型三層別墅設計圖以及戶型圖,獨立廚房、餐廳![]() ![]() ![]() 簡單大氣的歐式風格農村別墅,暖色的外立面,搭配金色的線條花飾,使整個立面富麗又精致。坡屋頂與平層頂的結合,使整個建筑層次分明。室內廚房與餐廳隔離開來,廊道的設計起到很好的承接的作用。雖然面積不大,但整個室內空間感非常大 占地面積:17m*12m,134平方米左右; 建筑層高:三層; 建筑高度:12.57米(含屋頂); 設計功能: 一層戶型:客廳、餐廳、廚房、廊道、茶室、臥室x2、衛生間; 二層戶型:客廳、臥室x3、衛生間、陽臺、露臺; 三層戶型:臥室x2、KTV、衛生間、露臺 ![]() ![]() ![]() 小編推薦的農村自建房18乘12米設計圖就到這里了,每一款都有全套圖紙哦!
圖紙之家-專注農村別墅/自建房設計18年,集合國內200余位經驗豐富的設計師,被評為口碑最好的農村建筑設計公司! |

一層中式七字型房屋設計圖,帶院子經典設計,耐看不過時
占地:163.18平方米
經典小戶型二層新農村房屋設計圖紙,客廳中空,造價20萬
占地:94平方米
一層農村三合院平房設計圖,可以倆兄弟或和父母兒女一起住
占地:202.79平方米
三層奢華歐式別墅圖片及全套設計圖,帶地下室和車庫
占地:208平方米左右
140平方米三層半新農村房屋別墅設計圖,帶車庫
占地:140平方米
歐式新農村自建三層建筑施工設計圖紙及效果圖大全
占地:106平方米
80平方米新農村三層房屋設計圖,新農村住宅圖紙精選
占地:80平方米
最實用中式一層三合院別墅設計圖,簡約精致布局實用
占地:162.49平方米
時尚漂亮的二層小洋樓設計圖,設計師建房都選這個方案
占地:149.27平方米
經典一層帶閣樓三合院別墅設計圖,18米乘9.5米
占地:118.63平方米
農村一層平房設計圖,人字坡戶型簡單大方,養老自住都不錯
占地:139.2平方米
帶露臺陽光房二層建房別墅設計圖,13米乘12米,享受農村悠然慢
占地:143.54平方米
最耐看的二層別墅設計圖,15米寬12米深,方正大氣經濟美觀!
占地:180平方米
250平方米農村三層別墅設計圖紙及效果圖大全,18.3x15米
占地:247平方米
田園輕奢三層帶露臺的鄉村別墅設計圖紙,11x10米
占地:106.64平方米
2026最火的現代別墅設計圖農村三層戶型,帶地下室
占地:119.79平方米
經典戶型二層農村小別墅設計圖,造價25萬內
占地:140平方米
110平米一層小別墅設計方案,布局四室兩廳一廚兩衛
占地:110.5平方米
13米開間的獨棟經濟型二層小別墅房屋設計圖,現代簡約
占地:150.39平方米
農村自建房就選它!一層新中式設計,日常居住需求全搞定
占地:128.45平方米
推薦:10套新農村自建房設計圖,2026年最新設計
閱讀次數:4825737次
100套鄉村別墅圖片大全,2026年最新設計
閱讀次數:2492203次
6款農村蓋一層平房的設計圖,10萬元就能建起來
閱讀次數:1852637次
這11個一層農村自建房別墅火爆了朋友圈!我最喜歡戶型十!你呢
閱讀次數:750268次
農村6萬元建一層小別墅圖,你敢相信嗎
閱讀次數:567686次
農村5萬塊就能自建房,6套普通房子設計圖分享,你沒看錯!
閱讀次數:419410次
8套農村漂亮三間平房圖片,非常適合在農村修建!
閱讀次數:411197次
農村自建房化糞池怎么做?附方案及施工過程
閱讀次數:391783次
農村一層三間平房設計圖,告別土氣養老房,讓人忍不住點贊
閱讀次數:350581次
新農村二層樓房圖片造價12萬,挑一套回家建房吧!
閱讀次數:349126次
