
|
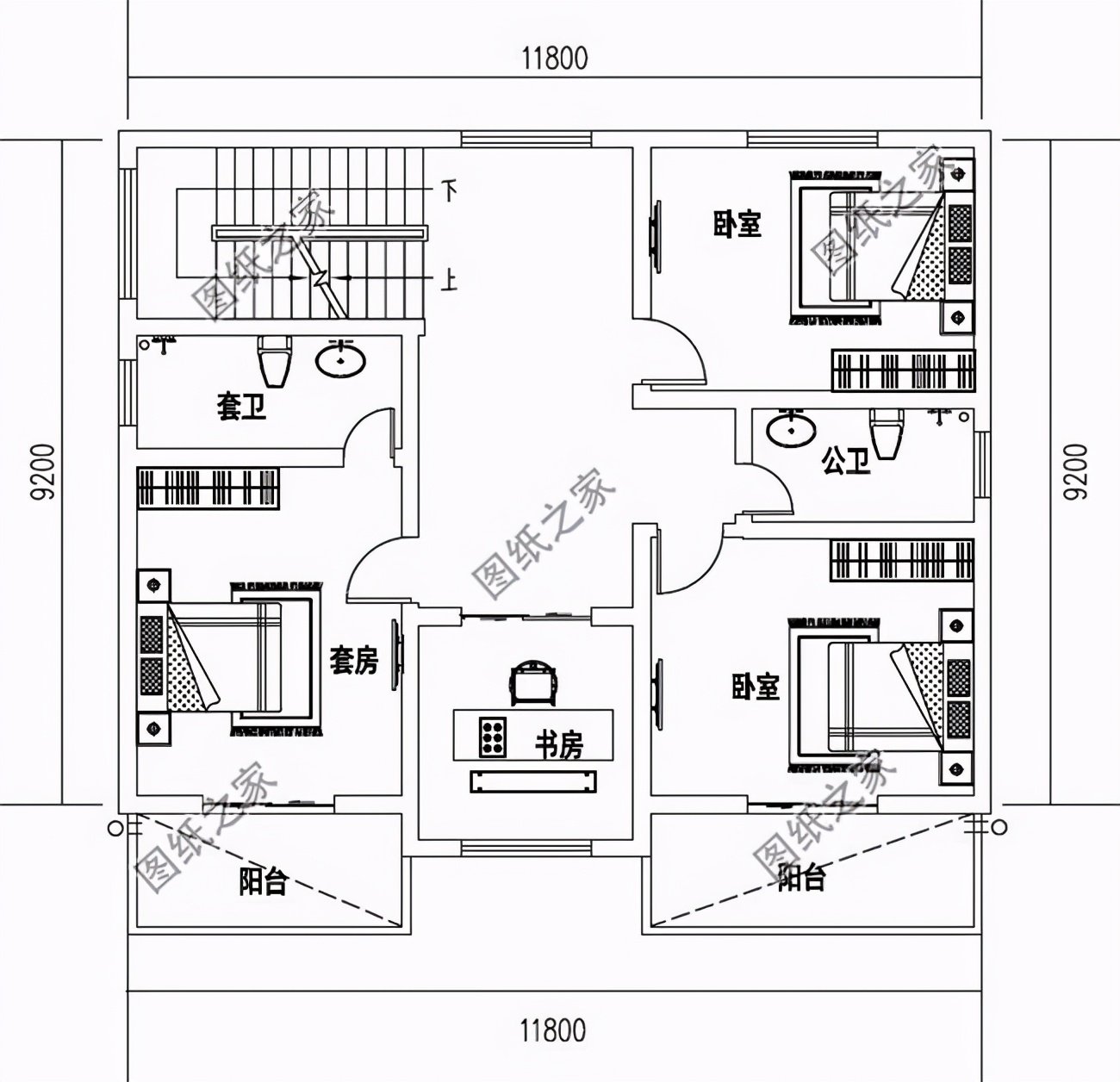
城里有房,村里有家,這大概是許多人都向往的生活吧,在城市里奔波忙碌于地方住,方便許多。老家在蓋上一棟舒適大氣的房子,一家老小住一起和和美美。今天下邊帶來3款11x9米二層自建房設計圖,對宅基有要求的朋友可以參考一下。 第一款:115平方米新農村帶閣樓二層小別墅設計圖以及戶型圖,外觀簡約![]() ![]() ![]() 顏色搭配得非常的經典,大氣又低調,這款樸素實用型,沒有過多的裝飾,大方,戶型規整,建造方便。室內布局合理舒適,功能齊全,房屋的利用率高,沒有浪費的空間 占地面積:11.8m*9.2m,115平方米左右; 建筑層高:二層; 建筑高度:8.7米(含屋頂); 設計功能: 一層戶型:客廳、廚房、餐廳、臥室(帶衛生間)、衛生間; 二層戶型:書房、臥室(帶衛生間)、臥室x2、衛生間、陽臺 ![]() ![]() 第二款:100平方米左右旋轉樓梯二層簡歐復式別墅設計圖以及戶型圖,小戶型也能帶旋轉樓梯,大氣實用!![]() 外墻采用米黃色噴漆做裝飾,搭配棕色面磚更顯大氣。門頭方柱與外墻歐式浮雕裝飾,再加上腰線和檐口線條搭配,突出了歐式的浪漫風情,屋頂上設計一個老虎窗,靈動時尚,是整棟別墅的亮點所在。室內設計無需過于復雜,簡單規劃空間,合理布局房間,重在實用。動靜分明空間,玄關、客廳、餐廳相連,主要活動區域范圍擴大,更加舒適。二層主要是居住生活的區域,設三個臥室,朝南的陽臺,方便家中晾曬與觀景! 占地面積:10.76m*9.26m,101.523平方米左右; 建筑層高:二層; 建筑高度:9.571米(含屋頂); 設計功能: 一層戶型:玄關、客廳、餐廳、廚房、臥室x2、衛生間; 二層戶型:客廳上空、客廳、臥室x2、臥室(帶衛生間)、衛生間、陽臺x2; ![]() ![]() 第三款:農村簡單實用二層自建房設計圖以及戶型圖,主體造價僅17萬的精致小別墅![]() 外觀對稱實用性強!簡歐戶型外觀左右對稱,室內非常實用。這款二層別墅外墻底部采用棕色文化石,一層采用棕色面磚,二層采用米黃色真石漆裝飾,搭配紅色坡屋頂,整體色調溫馨和諧;落地窗造型感很強,也增加了別墅的采光通風,居住舒適度滿分。拾級而上入戶便是客廳,待人接物不失大氣;臥室給家中老人或長輩拜訪時居住,方便老人腿腳不好上下樓梯不方便。二樓為居住層,將空間利用到極致,共3間臥室。 占地面積:11.5m*9m,106.387平方米左右; 建筑層高:二層; 建筑高度:9.358米(含屋頂); 設計功能: 一層戶型:客廳、廚房、儲藏室、臥室(帶衛生間)、臥室x2、衛生間; 二層戶型:起居室、儲藏室、書房、臥室(帶衛生間)、臥室x2、衛生間、陽臺 ![]() ![]() 以上就是小編推薦的農村11×9米左右的二層自建房設計圖以及戶型圖,你家有喜歡的嗎?
圖紙之家-專注農村別墅/自建房設計18年,集合國內200余位經驗豐富的設計師,被評為口碑最好的農村建筑設計公司! |

16x14米三層雙拼別墅設計圖,外觀精致大氣內里實用,兄弟建房上
占地:217.28平方米
125平方米新中式農村自建三層別墅建筑設計圖紙及效果圖
占地:124平方米
帶車庫的別墅設計圖紙,外觀效果圖二層半設計,全套建筑施工圖
占地:174平方米左右
帶小院子的鄉村一層別墅設計圖紙,120平方米
占地:多戶型
歐式三層小洋樓設計圖,外觀氣派,典雅、高貴
占地:145平方米
20萬以內二層歐式小別墅設計方案,全套施工圖+效果圖
占地:115平方米
南方新農村三層樓房設計圖紙,帶房屋效果圖
占地:110平方米
一層合院中式小別院設計圖,白墻灰瓦,愜意十足!
占地:219平方米
新農村四層房屋設計圖紙,高端大氣,占地150平方米
占地:150平方米
現代風平屋頂一層自建房設計,經濟時尚
占地:147.17平方米
四層雙拼豪華別墅設計圖及外觀效果圖,貴族氣質爆棚
占地:188.5平方米
農村15萬元二層小樓設計圖,造價低,簡潔、好看
占地:90平方米
別致美觀的簡歐二層別墅房屋設計圖,含外觀效果圖
占地:145平方米
二層小別墅設計方案圖,平頂設計帶cad施工圖和外觀效果圖
占地:147平方米
簡單質樸三層新農村小別墅設計圖紙,別墅圖片,戶型簡單合理實
占地:120平方米
8×12米農村三層別墅自建房設計圖,小開間精選方案
占地:103平方米
70平農村小戶型二層別墅設計圖,小宅基地的福音
占地:70平方米
農村自建三間三層樓房設計圖,帶露臺,經典實用
占地:135平方米
歐式三層小洋樓設計圖,歐式最美三層別墅外觀效果圖
占地:124.28平方米
豪華大氣三層農村自建房設計圖,經典大氣,百看不厭,新中式風
占地:141.75平方米
推薦:10套新農村自建房設計圖,2026年最新設計
閱讀次數:4825737次
100套鄉村別墅圖片大全,2026年最新設計
閱讀次數:2492203次
6款農村蓋一層平房的設計圖,10萬元就能建起來
閱讀次數:1852637次
這11個一層農村自建房別墅火爆了朋友圈!我最喜歡戶型十!你呢
閱讀次數:750268次
農村6萬元建一層小別墅圖,你敢相信嗎
閱讀次數:567686次
農村5萬塊就能自建房,6套普通房子設計圖分享,你沒看錯!
閱讀次數:419410次
8套農村漂亮三間平房圖片,非常適合在農村修建!
閱讀次數:411197次
農村自建房化糞池怎么做?附方案及施工過程
閱讀次數:391783次
農村一層三間平房設計圖,告別土氣養老房,讓人忍不住點贊
閱讀次數:350581次
新農村二層樓房圖片造價12萬,挑一套回家建房吧!
閱讀次數:349126次
