
|
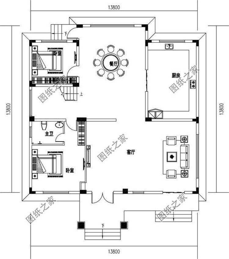
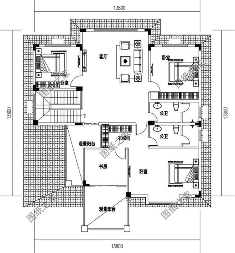
現在農村已經不像以前那么落后了,在以前很多人的思想觀念中,農村是貧窮落后的地方,其實那已經是很多年前的觀念了,現在農村的面貌已經不跟以前那樣了,家家戶戶住著小樓房,今天給大家推薦三套多種風格的農村自建房效果圖,如果您家還沒有建房子,可以參考這三款戶型設計。 戶型一:農村二層別墅設計圖,占地180平米,外觀漂亮圖紙介紹:本戶型占地180平米左右,外觀漂亮大氣,帶露臺設計,戶型合理,室內帶棋牌室設計,還有農村必不可少的堂屋設計,如果不需要堂屋也可以改造成餐廳。 占地面積:16.9m*13.0m,占地180平方米左右; 建筑層高:二層; 建筑高度:9.8米(含屋頂); 設計功能: 一層戶型:玄關、堂屋、客廳、衛生間、主臥(帶衛生間)、臥室、棋牌室;堂屋可改造成廚房餐廳。 二層戶型:客廳、主臥(帶衣帽間,衛生間)、臥室(帶衣帽間)x2、廚房、衛生間、大露臺; ![]() ![]() ![]() ![]() 戶型二:農村二層別墅設計圖,占地180平米,戶型大氣美觀圖紙介紹:這款二層別墅占地180平方米左右,外觀漂亮大氣,戶型美觀造價又低,室外的大露臺還可以種葡萄,乘涼,甚至晾曬糧食。模樣氣派有面子,建造成本不太高,居住生活很舒適。 占地面積:16.0m*13.0m,180平方米左右; 建筑層高:二層; 建筑高度:9.59米(含屋頂); 設計功能: 一層戶型:客廳、餐廳、廚房、衛生間、主臥(帶衛生間,衣帽間)、儲藏間; 二層戶型:客廳、主臥(帶衛生間,衣帽間)、臥室x4、衛生間、陽臺、露臺; ![]() ![]() ![]() ![]() 戶型三:農村二層別墅設計圖,室內帶大套間設計,戶型太棒圖紙介紹:這款二層別墅占地185平米左右,室內帶大套間設計,戶型布置簡單實用,外觀坡面屋頂設計,外觀簡單時尚,簡單的外墻配色裝飾,沒有過多修飾,整體給人一種非常樸實的感覺,結構設計高低錯落,層次分明,越看越覺得簡單中透露著大氣 占地面積:13.8m*13.8m,185平方米左右; 建筑層高:二層; 建筑高度:9.19米(含屋頂); 設計功能: 一層戶型:客廳、廚房、餐廳、臥室(帶衛生間)、臥室; 二層戶型:客廳、臥室(帶衣帽間書房衛生間)、臥室x2、衛生間、觀景陽臺; ![]() ![]() ![]() ![]() 怎么樣?這三款戶型風格不同,不知道大家最喜歡哪一款呢?
圖紙之家-專注農村別墅/自建房設計18年,集合國內200余位經驗豐富的設計師,被評為口碑最好的農村建筑設計公司! |

10X13米新款歐式三層別墅樓房設計圖,外觀清新明亮
占地:140平方米
三層復式別墅設計圖紙(含效果圖),復式住宅設計圖精選
占地:147.7平方米
兩層20萬農村自建房設計圖,經典農村建房款式,越看越有韻味
占地:160平方米
16米X12米四開間二層別墅設計圖,造型美觀經濟實用
占地:198平方米
二層半大客廳復式別墅房屋設計圖,客廳寬闊明亮
占地:125平方米
一層中式四合院別墅設計圖,符合國人審美,簡單大氣穩妥沉穩
占地:388平方米
大氣的美式三層別墅設計圖,外觀效果圖氣派、美觀
占地:148平方米
歐式二層農村別墅設計圖,140平方米戶型方正的好方案
占地:142.51平方米
新農村共用堂屋和樓梯的雙拼別墅設計圖紙,戶型布局空間利用率
占地:207平方米左右
簡單實用的二層雙拼別墅設計圖,總占地150平米左右,雙拼房屋
占地:150平方米MB
20多萬的造價一層三合院農村自建房效果圖
占地:225.048平方米
100平米左右簡單實用的二層樓房設計圖,施工簡單造價低
占地:95平方米
90平方米農村二層房屋設計圖紙(施工圖+效果圖)
占地:90平方米
占地160平米的二層簡歐別墅設計圖,外觀圖時尚漂亮
占地:160.28平方米
130平四間二層小洋樓設計圖,含外觀圖片
占地:130平方米
經典中式三合院設計,一層空間實用大氣,輕松實現理想家園!
占地:160.53平方米
簡單實用農村自建四層小別墅設計圖(三層半),95平米
占地:95平方米
120平面三層鄉村樓房設計圖及效果圖,歐式風格
占地:120平方米
廚房餐廳在配房的歐式三層農村別墅設計方案,華麗又宜居
占地:177.58平方米
建房老師傅力薦!這塊二層簡歐設計圖,花錢少、顏值高,必火
占地:131.65平方米
推薦:10套新農村自建房設計圖,2026年最新設計
閱讀次數:4825737次
100套鄉村別墅圖片大全,2026年最新設計
閱讀次數:2492203次
6款農村蓋一層平房的設計圖,10萬元就能建起來
閱讀次數:1852637次
這11個一層農村自建房別墅火爆了朋友圈!我最喜歡戶型十!你呢
閱讀次數:750268次
農村6萬元建一層小別墅圖,你敢相信嗎
閱讀次數:567686次
農村5萬塊就能自建房,6套普通房子設計圖分享,你沒看錯!
閱讀次數:419410次
8套農村漂亮三間平房圖片,非常適合在農村修建!
閱讀次數:411197次
農村自建房化糞池怎么做?附方案及施工過程
閱讀次數:391783次
農村一層三間平房設計圖,告別土氣養老房,讓人忍不住點贊
閱讀次數:350581次
新農村二層樓房圖片造價12萬,挑一套回家建房吧!
閱讀次數:349126次
