
|
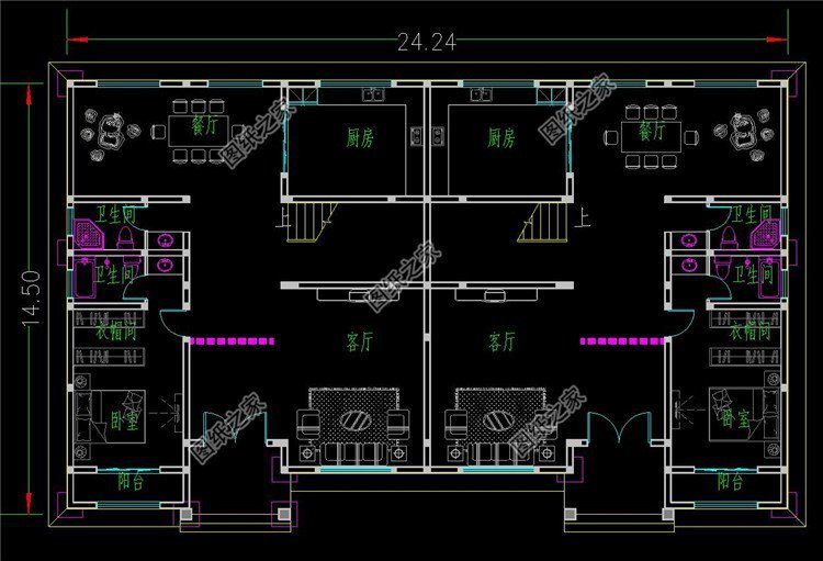
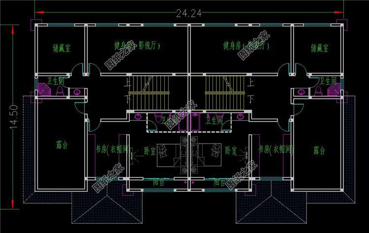
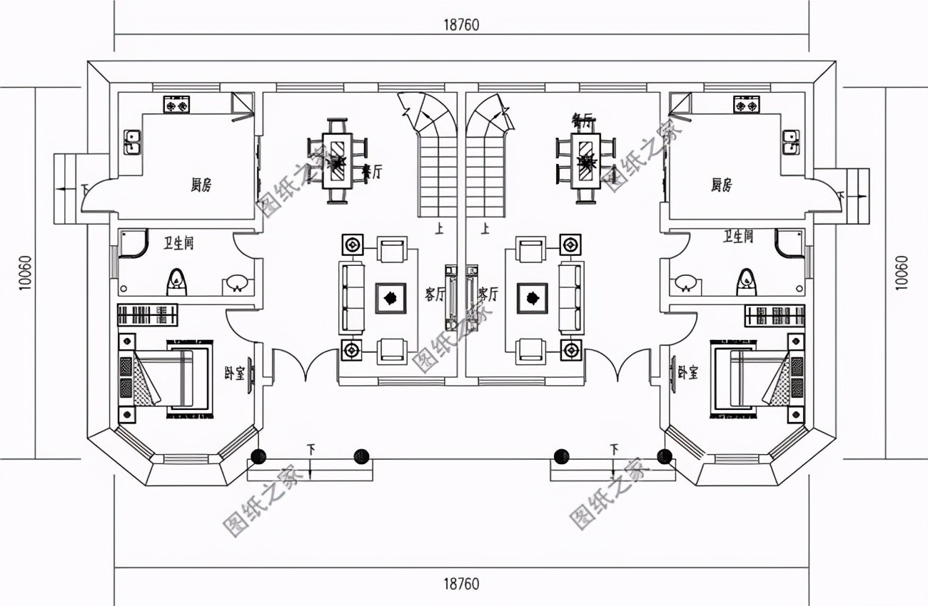
雙拼別墅最大的好處就是節約成本,而且外觀比單獨別墅更顯得大氣一些。對于家里有兩個孩子,預算不寬裕的朋友來說,一定是最適合的選擇。而且兄弟姐妹待在一起也未嘗不是一件好事,平時生活上可以互相照顧,親情上不會疏遠。今天來看看這三款自建六開間的雙拼別墅吧! 第一款:高端新農村中式三層雙拼設計圖以及戶型圖,外觀效果很大氣![]() 大戶型設計,兄弟倆能在村里建上這棟房子就厲害了屋頂用藍色的釉面瓷瓦,大面積用上米白色真石漆,落地窗處用少量的棕色的真石漆,一層底部少量淡灰色的外墻磚。布局南北通透,在廚房后面開窗,方便散失油煙,還方便采光;客廳中空設計,三層布局可按需調節,如果每家還有幾個兒子的話,正好一家一層,在每個樓層就可以滿足基本生活需求。主體造價均攤到每家不到40萬左右,戶型周正有氣勢,適用于大家庭的戶型。 占地面積:24.24m*14.5m,340.92平方米左右,單戶170.46平左右; 建筑層高:三層; 建筑高度:13.7米(含屋頂); 設計功能: 一層:客廳、餐廳、廚房、茶室、臥室(帶衣帽間、衛生間)、衛生間、陽臺(室內); 二層:客廳上空、起居室、臥室(帶衣帽間、衛生間)、臥室x2、衛生間、陽臺; 三層:臥室(帶衣帽間,書房、衛生間)、儲藏室、健身房、衛生間、陽臺 ![]() ![]() ![]() 第二款:帶地下室的三層農村自建房雙拼別墅設計圖以及戶型圖,外觀美觀大氣![]() 復式戶型,面寬23米。這套別墅戶型設計十分氣派,對稱的設計給人整潔大方的感覺,有多陽臺及多露臺設計,外墻面用淺黃色真石漆裝飾,外觀色調搭配也很穩重,正面的兩個大的落地挑高的大窗,與建筑搭配恰到好處。出式門檐和陽臺不僅增加了利用空間而且使房子凹凸有致,看起來大氣又舒適,大門處用方形羅馬柱裝飾,藍色琉璃瓦的覆蓋,沉穩端莊,大氣,一種非舒心的感覺。美輪美奐羅馬柱和金色雕花等細部構件為別墅增添歐式元素,浪漫典雅! 占地面積:23m*13.1m,261.6平方米左右,單戶130.8平左右; 建筑層高:三層; 建筑高度:13.111米(含屋頂); 設計功能: 地下室戶型:休息廳、采光井、影音室; 一層:大廳、客廳、臥室(帶衛生間)、廚房、餐廳、衛生間; 二層:客廳上空、起居室、娛樂室、臥室(帶衛生間)、臥室、衛生間、陽臺; 三層:活動室、書房、臥室(帶衣帽間、衛生間、梳妝臺)、陽臺、露臺 ![]() ![]() ![]() ![]() 第三款:170平方米雙拼別墅設計圖以及戶型圖,小戶經濟型復式客廳![]() ![]() ![]() 此款農村二層雙拼別墅,在色調上搭配相對簡單,只采用了灰色和白色兩種色調,兩種色調相結合,使得整體外觀簡約大方。尤其是朱砂紅大門的設計低調不失奢華的韻味 占地面積:18.76m*10.06m,170平方米左右,單戶85平方米左右; 建筑層高:二層 建筑高度:9.86米 設計功能: 一層房屋戶型:客廳、廚房、餐廳、衛生間、臥室; 二層房屋戶型:客廳上空、休息區、臥室x3、衛生間、陽臺 ![]() ![]() 以上就是小編推薦的三款雙拼別墅設計圖以及戶型圖,你喜歡哪款?可以給家里人看看!
圖紙之家-專注農村別墅/自建房設計18年,集合國內200余位經驗豐富的設計師,被評為口碑最好的農村建筑設計公司! |

90平方米農村二層房屋設計施工圖紙及效果圖,11x8.5米
占地:90平方米
一層時尚農村自建別墅方案,低至10萬的造價,適合住家養老
占地:131.04平方米
二層中式四合院別墅設計圖,經典、漂亮(全套施工圖)
占地:350平方米
私人自建三層別墅設計圖紙帶效果圖,歐式風格、外觀大氣
占地:209.44平方米
面寬16米方正實用二層別墅設計圖,中式風格不輸村里的別墅洋房
占地:182.82平方米
農村新款二層中式別墅設計圖效果圖,帶堂屋設計
占地:144平方米
最新三層農村別墅設計圖紙,推薦農村自建
占地:106平方米
18米寬一層中式小院設計圖,三合院戶型布局寬敞大氣
占地:232.75平方米
12米乘9米占地百平一層平房戶型設計圖,布局寬敞大氣又舒適
占地:108平方米
12X14米四層農村自建別墅設計圖,功能設計豐富齊全
占地:157平方米
四開間兩層別墅設計圖,農村自建住著舒適的好方案!
占地:187.04平方米
豪華三層歐式雙拼別墅設計圖紙,雙拼歐式別墅如何設計看這款
占地:258.294平方米
二層復式農村豪宅別墅設計圖,挑空客廳旋轉樓梯高級感十足
占地:215.43平方米
復式挑空現代簡約風三層別墅設計圖,簡單時尚最受年輕人最愛
占地:149.7平方米
新中式風格二層住宅設計圖,農村自建房不土氣
占地:144.5平方米
鄉村三層別墅設計圖紙,帶屋頂花園(含效果圖)
占地:150平方米
最新高端四層別墅外觀效果圖及全套設計圖,真土豪就這樣建
占地:174.08平方米
外觀高檔大氣的三層別墅房屋設計圖,高端別墅設計展示
占地:147平方米
面寬13米簡簡單單一層農村自建別墅設計圖,方正大氣經濟宜居
占地:126.1平方米
超大氣的農村一層雙拼自建別墅設計方案,絕對讓人羨慕的“平房
占地:424平方米
推薦:10套新農村自建房設計圖,2026年最新設計
閱讀次數:4825737次
100套鄉村別墅圖片大全,2026年最新設計
閱讀次數:2492203次
6款農村蓋一層平房的設計圖,10萬元就能建起來
閱讀次數:1852637次
這11個一層農村自建房別墅火爆了朋友圈!我最喜歡戶型十!你呢
閱讀次數:750268次
農村6萬元建一層小別墅圖,你敢相信嗎
閱讀次數:567686次
農村5萬塊就能自建房,6套普通房子設計圖分享,你沒看錯!
閱讀次數:419410次
8套農村漂亮三間平房圖片,非常適合在農村修建!
閱讀次數:411197次
農村自建房化糞池怎么做?附方案及施工過程
閱讀次數:391783次
農村一層三間平房設計圖,告別土氣養老房,讓人忍不住點贊
閱讀次數:350581次
新農村二層樓房圖片造價12萬,挑一套回家建房吧!
閱讀次數:349126次
