
|
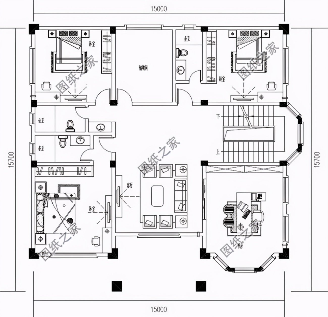
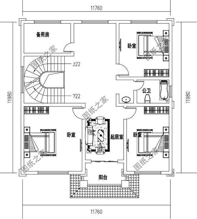
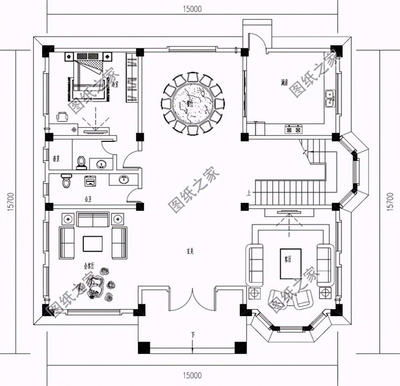
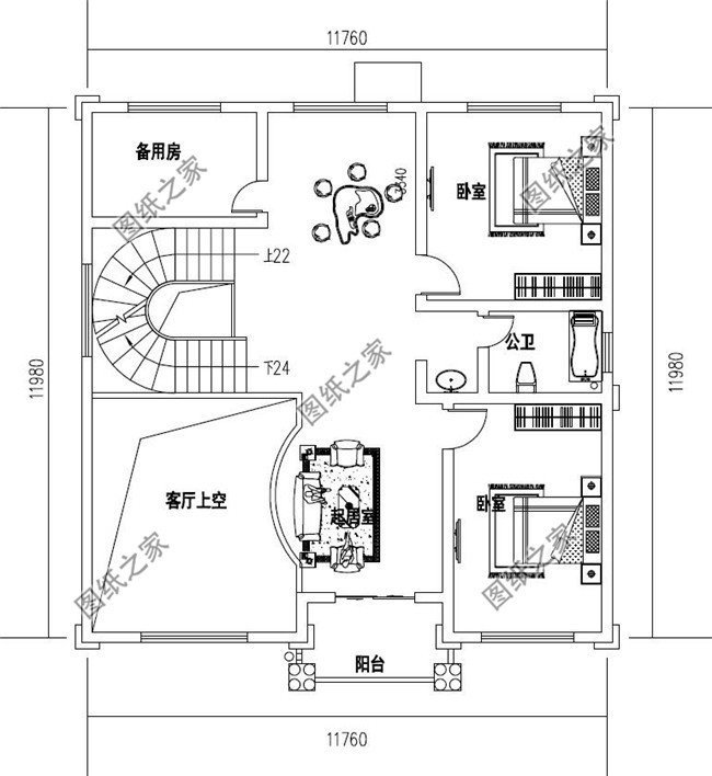
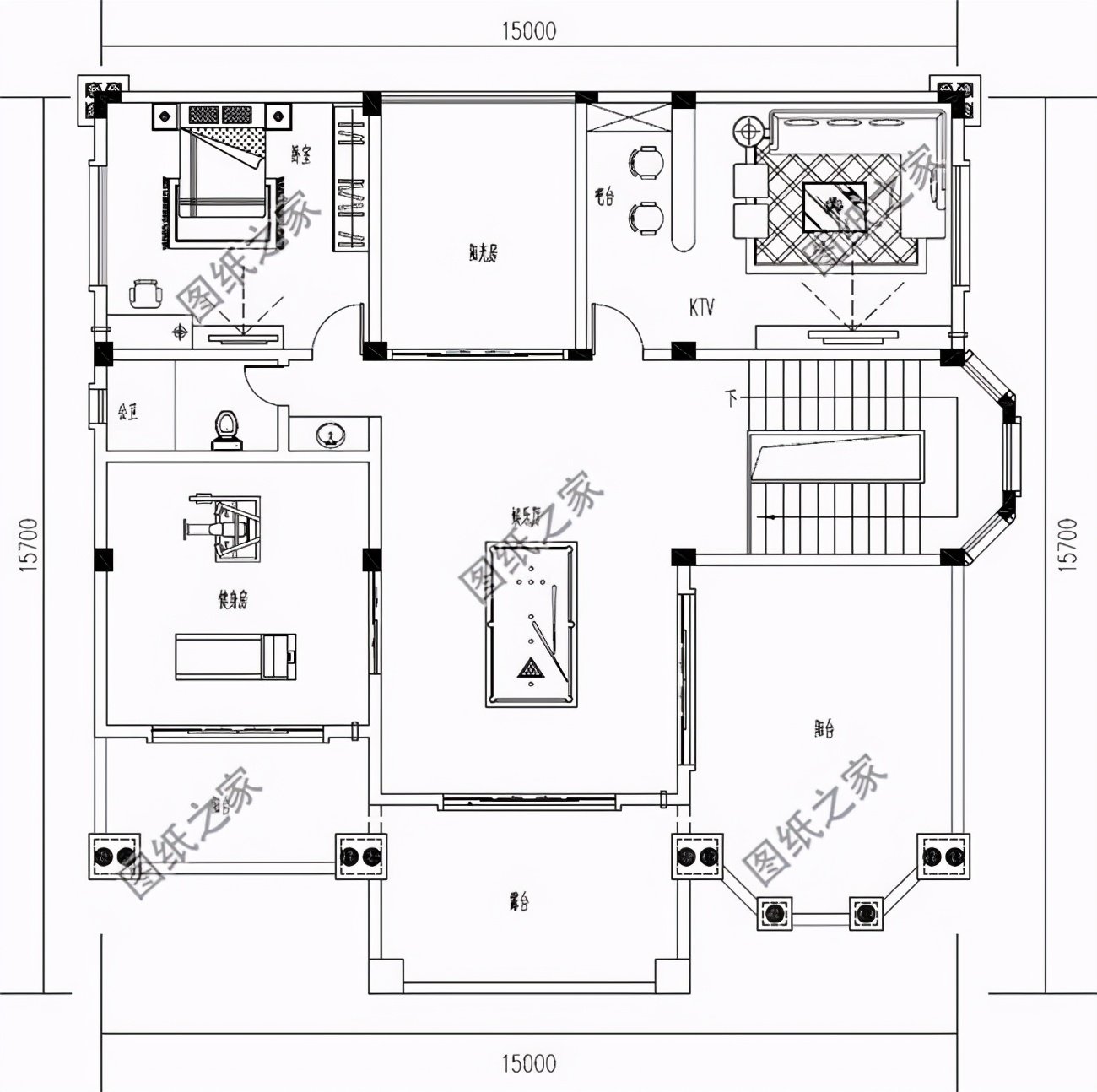
對于我們來說,美好的風景不是繁華的都市,而是鄉土氣息濃厚的鄉村!房子在國人的心中占著無與倫比的分量,不僅是居住的地方,更多 第一款:豪華現代四層別墅設計圖以及戶型圖,大氣漂亮![]() ![]() ![]() 這款鄉村高檔四層豪華別墅,一層不帶餐廳廚房,餐廳廚房設計到了三層,更適合四層布局,別墅氣派豪華。由于占地面積不大,只能加層高,才能滿足家庭所有成員的需求。落地窗和多個窗戶設計,優化室內的采光和通風,不會讓室內顯得陰暗擁擠。除了必要的生活功能空間外,該戶型還設有了健身房、娛樂室、KTV室等休閑娛樂功能,生活之余增加休閑活動。 占地面積:11.8m*14.1m,147平方米左右; 建筑層高:四層; 建筑高度:16.05米(含屋頂); 功能: 一層戶型:大廳、客廳、臥室(帶衛生間)、KTV(帶衛生間)、過道、衛生間、娛樂室; 二層戶型:客廳上空、客廳、臥室(帶衛生間)x3、衣帽間、陽臺; 三層戶型:客廳、餐廳、廚房、臥室(帶衛生間衣帽間)、臥室(帶衣帽間)、臥室、衛生間、露臺; 四層戶型:客廳、娛樂室、健身房、衛生間、露臺 ![]() ![]() ![]() ![]() 第二款:新款農村四層復式別墅設計圖,外立面清新別致![]() ![]() ![]() 這款別墅擁有經典的歐式外觀,大氣的建筑線條、巍峨的柱式設計、唯美的弧形落地窗、層次錯落的露臺陽臺,整體氣派細節精致。最亮眼的設計就在于別墅的門柱設計,直通三層,夜幕降臨,室內暖融融的燈光亮起,絕對是整個鎮上最耀眼的一棟 占地面積:15m*15.7m,207平方米左右; 建筑層高:四層; 建筑高度:16.48米(含屋頂); 功能: 一層戶型:玄關、客廳、會客廳、廚房、餐廳、臥室(帶衣帽間)、衛生間; 二層戶型:客廳上空、客廳、書房、臥室(帶衛生間)x2、臥室、衛生間; 三層戶型:客廳、書房、儲物間、臥室(帶衛生間)x2、臥室、衛生間; 四層戶型:娛樂廳、KTV、健身房、陽光房、臥室、衛生間、陽臺、露臺 ![]() ![]() ![]() ![]() 第三款:農村大氣四層別墅設計圖以及戶型圖,外觀大氣![]() ![]() ![]() 這款別墅簡歐風格干凈簡潔,米黃色的外墻搭配藍色屋頂,同色系色的窗套起到色彩呼應的作用,大落地窗的浮雕更是有設計感,左右兩面連通體窗戶和裝飾柱,更是增添了該戶型的大氣感。室內設有中空客廳、健身區以及休閑區等,正是符合新農村建房的標準。 占地面積:11.76m*11.98m,143平方米左右; 建筑層高:四層; 建筑高度:16.59米(含屋頂); 功能: 一層戶型:客廳、廚房、餐廳、臥室、儲藏室、衛生間; 二層戶型:客廳上空、起居室、休閑區、備用房、臥室x2、衛生間、陽臺; 三層戶型:起居室、備用房、臥室x3、衛生間、陽臺; 四層戶型:臥室x2、休閑區、儲藏室、健身區、衛生間、露臺 ![]() ![]() ![]() ![]() 以上就是小編推薦的2020年新款別墅圖,喜歡哪款?每一款都有全套施工圖紙,拿到就能施工哦!
圖紙之家-專注農村別墅/自建房設計18年,集合國內200余位經驗豐富的設計師,被評為口碑最好的農村建筑設計公司! |

125平方米三層新農村房屋建筑施工設計圖帶外觀圖
占地:126平方米
最新歐式三層別墅設計圖紙,超漂亮,預算30到40萬
占地:160平方米
農村建房兄弟雙拼兩層住宅設計圖,單戶150平米左右
占地:300平方米
二層雙拼別墅外觀效果圖及施工圖,帶露臺,14乘12米
占地:168平方米
小占地三層現代時尚風別墅設計圖,平屋頂占地不足100平
占地:98.35平方米
方方正正的二層農村別墅設計圖,普通農村人都能建
占地:201.05平方米
170平方米歐式三層雙拼別墅建筑設計圖紙及效果圖片
占地:172平方米
帶院子的一層農村別墅設計圖,造價不高,養老房首選!
占地:144.819平方米
農村三層別墅設計圖紙,造價50萬左右,中式風格,沉穩內斂
占地:160平方米
鄉下建房一層平房設計圖紙及戶型圖,占地150平米左右
占地:150平方米
簡約大氣四開間二層自建房設計圖,16x10米,經典耐看高顏值
占地:160平方米
給爸媽建養老房?100 平人字坡一層房太合適!簡約低調還實用
占地:102.6平方米
帶架空層的一層自建房太香了!防潮、停車、儲物全兼顧
占地:152.06平方米
農村2026新式三間二層樓房,12×11.6米,戶型經典,造價實惠
占地:120平方米
經典戶型二層農村小別墅設計圖,造價25萬內
占地:140平方米
仿古別墅建筑設計圖,外觀效果圖+全套施工圖
占地:142平方米
一層農房別墅設計圖紙,140平方米,面寬15米
占地:140平方米
新農村二層房屋建筑施工圖紙,廚房獨立在配房
占地:107平方米
13米開間的獨棟經濟型二層小別墅房屋設計圖,現代簡約
占地:150.39平方米
90平-100平小戶型一層三間平房農村別墅設計圖方案戶型
占地:多戶型可選
推薦:10套新農村自建房設計圖,2026年最新設計
閱讀次數:4825737次
100套鄉村別墅圖片大全,2026年最新設計
閱讀次數:2492203次
6款農村蓋一層平房的設計圖,10萬元就能建起來
閱讀次數:1852637次
這11個一層農村自建房別墅火爆了朋友圈!我最喜歡戶型十!你呢
閱讀次數:750268次
農村6萬元建一層小別墅圖,你敢相信嗎
閱讀次數:567686次
農村5萬塊就能自建房,6套普通房子設計圖分享,你沒看錯!
閱讀次數:419410次
8套農村漂亮三間平房圖片,非常適合在農村修建!
閱讀次數:411197次
農村自建房化糞池怎么做?附方案及施工過程
閱讀次數:391783次
農村一層三間平房設計圖,告別土氣養老房,讓人忍不住點贊
閱讀次數:350581次
新農村二層樓房圖片造價12萬,挑一套回家建房吧!
閱讀次數:349126次
