
|
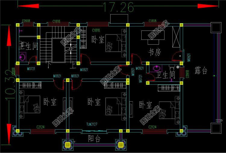
許多農村朋友現在都是自己建房子,而且風格款式都可以自己選擇,對于建房子,一定要選擇適合自己的,實用才是根本,不要一味的追求奢華,但一定要精致,要以別墅的標準做自建房。今天小編就分享三款三層農村樓房設計圖,簡約好看,計劃建房的朋友趕緊參考了! 戶型一:農村三層別墅設計圖,占地110平米,簡歐風格設計圖紙介紹:這款三層別墅占地110平米左右,簡歐式風格設計,外墻用到的是灰白色真石漆,彰顯出一種優雅的氣質。采用南北通透的設計,客廳和廚房餐廳的空間很寬敞,體現出一種一層的大氣感;二層三個房間三個衛生間,一一對應這樣會比較衛生也比較方便。三層的大露臺可供日常休閑使用。 占地面積:9.92m*10.46m,110平方米左右; 建筑層高:三層; 建筑高度:12.87米(含屋頂); 設計功能: 一層戶型:客廳、餐廳、廚房、臥室(帶衛生間)、衛生間; 二層戶型:小書房、臥室(帶衛生間)x3、衣帽間、陽臺; 三層戶型:功能房間、雜物間、臥室(帶衛生間)、露臺; ![]() ![]() ![]() ![]() 戶型二:農村三層自建房設計圖,占地163平米,帶車庫和堂屋設計圖紙介紹:本戶型占地163平米左右,帶車庫和堂屋設計,外觀造型簡潔大方,采用歐式風格一貫的精致線條,外墻乳白色真石漆和深褐色面磚搭配修飾,羅馬柱造型變幻,豪華氣派,大面積的開窗設計,讓別墅美觀的同時,居住舒適度也毋庸置疑,加上紅色的坡屋頂和屋檐,別墅頓顯生動活力。功能分區合理,房間尺度設計適宜,采光通風良好,富有時代氣息。 占地面積:17.26m*10.32m,163.8平方米左右; 建筑層高:三層; 建筑高度:12.831米(含屋頂); 設計功能: 一層戶型:堂屋、神位、客廳、餐廳、廚房、臥室(帶衛生間)、衛生間、車庫; 二層戶型:書房、臥室x3、臥室(帶衛生間)、衛生間、陽臺、露臺; 三層戶型:健身房、臥室、臥室(帶衛生間)、衛生間、陽臺、露臺x2; ![]() ![]() ![]() ![]() 戶型三:農村三層房屋設計圖,歐式風格設計,帶大露臺設計圖紙介紹:本戶型占地164平米左右,歐式風格設計,一二層外墻采用個性化瓷磚進行裝飾,整體外觀造型格調高雅;精美的落地窗搭配挑空客廳,使客廳內更加的寬敞明亮;二層內置的陽臺是住戶一個非常舒適休閑的場所;三樓上的大露臺正是符合農村生活的需要,每到農忙季節,住戶還可以用于晾曬農作物等;室內的功能布局寬敞合理,戶型設計更是于休閑娛樂與日常生活融合在一起的。 占地面積:13m*13.8m,164平方米左右; 建筑層高:三層; 建筑高度:13.48米(含屋頂); 設計功能: 一層戶型:門廳、大廳、客廳、餐廳、廚房、洗衣房、臥室(帶衛生間)、衛生間; 二層戶型:客廳上空、客廳、臥室(帶衛生間)x3、衛生間、陽臺; 三層戶型:休息室、KTV、臥室(帶衛生間)x3、衛生間、露臺; ![]() ![]() ![]() ![]() 不知道這三款戶型大家最喜歡哪一款?歡迎下方評論留言。
圖紙之家-專注農村別墅/自建房設計18年,集合國內200余位經驗豐富的設計師,被評為口碑最好的農村建筑設計公司! |

高端三層新中式農村別墅設計圖,仿合院布局,外觀霸氣
占地:133.64平方米
農村新中式別墅設計圖及效果圖,造價25萬左右
占地:95平方米
帶車庫的別墅設計圖紙,外觀效果圖二層半設計,全套建筑施工圖
占地:174平方米左右
面寬13米帶堂屋三層農村別墅圖,新中式大氣風格
占地:151.58平方米
獨棟三層樓房設計圖紙及效果圖,農村蓋房推薦
占地:125平方米
農村4間3層樓房設計圖,帶車庫,挑空客廳,坡屋頂設計
占地:160平方米
適合農村建的二層別墅設計圖,簡約美觀,讓人心動不已
占地:153平方米
農村40萬房子圖片外觀設計效果圖,帶地下室,外觀時尚大氣
占地:110平方米
250平方米農村三層別墅設計圖紙及效果圖大全,18.3x15米
占地:247平方米
帶車庫的三層房屋方案設計圖,帶堂屋全套圖紙
占地:163.8平方米
小戶型現代新農村三層房屋設計建筑圖及效果圖
占地:108平方米
60多平三層現代風格別墅設計圖,小戶型平屋頂
占地:66.4平方米
經典戶型二層農村小別墅設計圖,造價25萬內
占地:140平方米
占地120平米清新脫俗簡單二層別墅設計方案,含效果圖
占地:119.01平方米
新款農村四層復式別墅設計圖紙及效果圖,外立面清新別致
占地:207平方米
50萬以內的歐式三層房屋別墅施工設計圖紙及效果圖
占地:169平方米
自建小樓二層農村別墅設計圖,大氣好看,13米乘14米
占地:181.62
8萬元二層農村房子圖片及設計圖,簡易二層小樓,占地50平米
占地:50平方米
帶架空層的農村一層小別墅設計圖,大氣穩重又很實用
占地:123.5平方米
農村10萬自建一層平房設計圖,占地面積120平米
占地:120平方米
推薦:10套新農村自建房設計圖,2026年最新設計
閱讀次數:4825737次
100套鄉村別墅圖片大全,2026年最新設計
閱讀次數:2492203次
6款農村蓋一層平房的設計圖,10萬元就能建起來
閱讀次數:1852637次
這11個一層農村自建房別墅火爆了朋友圈!我最喜歡戶型十!你呢
閱讀次數:750268次
農村6萬元建一層小別墅圖,你敢相信嗎
閱讀次數:567686次
農村5萬塊就能自建房,6套普通房子設計圖分享,你沒看錯!
閱讀次數:419410次
8套農村漂亮三間平房圖片,非常適合在農村修建!
閱讀次數:411197次
農村自建房化糞池怎么做?附方案及施工過程
閱讀次數:391783次
農村一層三間平房設計圖,告別土氣養老房,讓人忍不住點贊
閱讀次數:350581次
新農村二層樓房圖片造價12萬,挑一套回家建房吧!
閱讀次數:349126次
