
|
都說在農村蓋房一定要有個院子,養養花草、種種果蔬,還方便擺放農具、停車,在院子里搭一個涼棚,再搬來一把涼椅,別提多安逸了~ 今天新型房屋帶來10套帶院子的別墅圖紙,不同風格不同尺寸,總能找到適合你的! 第1套:不同以往的歐式別墅設計,簡約的方柱搭配造型豐富的弧形窗,大坡度屋頂和屋檐設計,使得整棟別墅看起來精致又華美。
平面布局圖。
第2套:這套設計可能更受年輕人喜愛,現代簡約風格的設計,大面積玻璃窗和流暢的線條充滿時尚感,讓人一見傾心。
平面布局圖。
第3套:精致的外觀設計,外墻采用暖黃色真石漆裝飾,帶來家的溫馨感。
平面布局圖。
第4套:一層的中式小院近幾年來很受大家的歡迎,有一方自己的小院,應該是所有的夢想吧!
平面布局圖。
第5套:經典的黑白配色,帶來不一樣的美感,沒有多余的裝飾線條,僅采用黑色窗框打造出建筑的層次感,簡約而不簡單。
平面布局圖。
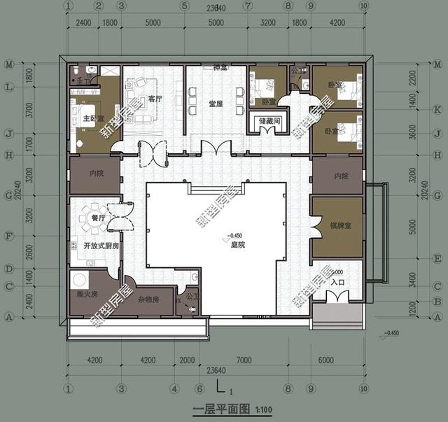
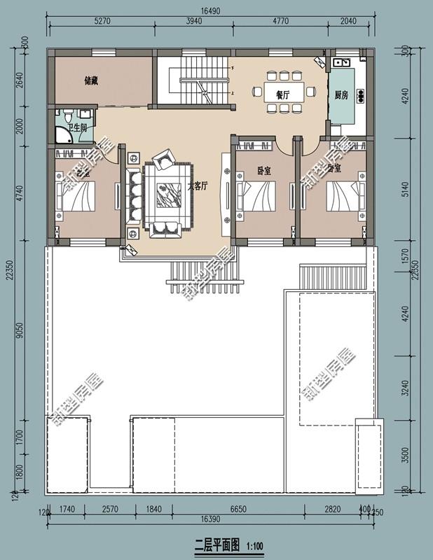
第6套:唯美的中式庭院,大氣華美,白色墻面灰色瓦片,在鄉村風光的襯托下,呈現出寧靜祥和的自然美感。
平面布局圖。
第7套:一層小平房很適合限高地區自建,設計一個閣樓,多人口家庭也能滿足居住。
平面布局圖。
第8套:完全對稱的建筑外觀,符合國人傳統的審美,大面積開窗比較適合南方地區自建。
平面布局圖。
第9套:外觀簡約的三層小樓,在建筑正面設計挑陽臺來打造出層次感,建筑側面不設窗,符合部分農村地區建房實際情況。
平面布局圖。
第10套:這套是新型房屋新設計的一套歐式小別墅,超大的落地窗、旋轉樓梯、挑空客廳是近幾年最受歡迎的元素,不僅外觀好看,布局也非常實用,適用于大部分農村家庭。
平面布局圖。
![]() 圖紙之家-專注農村別墅/自建房設計18年,集合國內200余位經驗豐富的設計師,被評為口碑最好的農村建筑設計公司! |

小戶型三層現代風別墅設計圖,可別再說農村不適合現代風了
占地:92.34平方米
兩層半30萬農村自建房別墅設計圖紙,客廳挑空,帶大露臺
占地:130平方米
155平方米二層別墅房屋設計圖,帶獨立車庫
占地:155平方米
帶地下室三層豪華大氣新農村房屋設計圖,占地150平米左右
占地:150平方米
三層帶車庫樓中樓建房別墅圖紙,占地130平米左右,戶型室內布局
占地:130平方米
一層農村三合院別墅設計方案圖,秀氣優美,大氣又實用
占地:191.18平方米
農村一層自建房子設計圖紙及效果圖,戶型方正
占地:多戶型可選
130平米新農村自建房屋施工建筑圖紙及效果圖
占地:132平米
農村25萬別墅款式二層自建房設計圖,外觀簡約大氣
占地:多種戶型
鄉村三層別墅設計圖紙,帶屋頂花園(含效果圖)
占地:150平方米
120平方房子設計圖帶效果圖,農村自建房戶型推薦
占地:120平方米
最新網紅二層別墅,寬敞時尚沉穩大氣,布局實用正好滿足您的需
占地:110平方米
獨棟經濟型二層小別墅房屋設計圖,含全套施工圖效果圖
占地:多種戶型
帶閣樓的二層半別墅設計圖和效果圖,外飾簡單但不失奢華
占地:210平方米
新中式帶露臺30萬左右農村三層別墅,客廳中空
占地:110平方米
大氣農村三層歐式雙拼別墅全套施工圖紙,帶堂屋設計,外觀圖片
占地:196.056平方米
新農村二層房屋建筑施工圖紙,廚房獨立在配房
占地:107平方米
占地180平方米二層鄉村小洋樓設計戶型圖及圖紙,外觀華麗
占地:180平方米
50萬左右農村三層別墅設計圖紙,帶大露臺,外觀大氣
占地:150平方米
農村三層兄弟雙拼別墅設計圖及效果圖片,14X12米自建戶型
占地:154平方米
推薦:10套新農村自建房設計圖,2026年最新設計
閱讀次數:4825737次
100套鄉村別墅圖片大全,2026年最新設計
閱讀次數:2492203次
6款農村蓋一層平房的設計圖,10萬元就能建起來
閱讀次數:1852637次
這11個一層農村自建房別墅火爆了朋友圈!我最喜歡戶型十!你呢
閱讀次數:750268次
農村6萬元建一層小別墅圖,你敢相信嗎
閱讀次數:567686次
農村5萬塊就能自建房,6套普通房子設計圖分享,你沒看錯!
閱讀次數:419410次
8套農村漂亮三間平房圖片,非常適合在農村修建!
閱讀次數:411197次
農村自建房化糞池怎么做?附方案及施工過程
閱讀次數:391783次
農村一層三間平房設計圖,告別土氣養老房,讓人忍不住點贊
閱讀次數:350581次
新農村二層樓房圖片造價12萬,挑一套回家建房吧!
閱讀次數:349126次
