
|
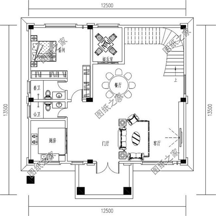
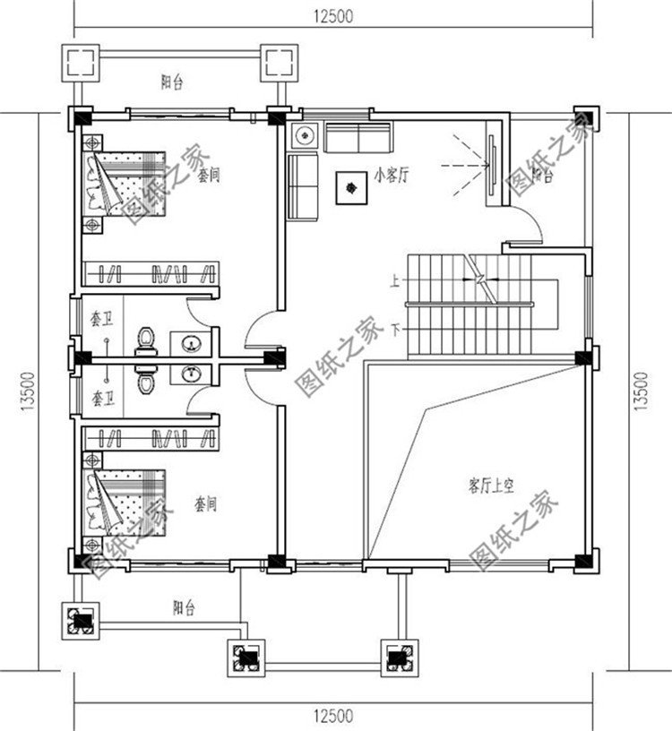
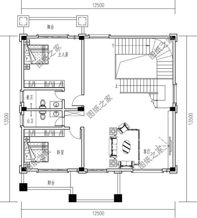
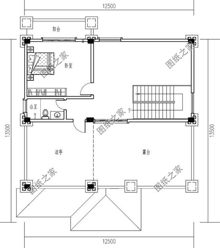
一棟稱心如意的房子,背后是無數人辛勤付出的結果。過去我們只追求實用夠用就可以了,但現在舒適的內在和漂亮的外觀更受大家重視,也只有以此為目的的施工,建出來的房子才算是一絕。今天給大家推薦三款鄉村四層住宅設計平面圖,外觀豪華大氣,布局十分合理,四代同堂也可居住。 款式一:農村四層別墅設計圖,占地174平米左右,外觀高端大氣圖紙介紹:這款四層別墅占地174平米左右,帶土灶房設計,復式挑空客廳,外觀屋頂為鋪灰色釉面瓷瓦,主墻面裝飾采用白真石漆裝飾,墻面采用部分立體浮雕構件,外觀顯大氣。入戶設左側設客廳,方便家人日常交流;旋轉樓梯提升別墅檔次;土灶保留農村傳統,二層3個臥室,主次分明,滿足家人居住需求;挑空客廳,增加室內通透感。 占地面積:15.96m*15.28m,174.08平方米左右; 建筑層高:四層; 建筑高度:16.286米(含屋頂); 設計功能: 一層戶型:入戶門廳、客廳、餐廳、廚房、土灶房、茶室(帶衛生間)、臥室、衛生間; 二層戶型:客廳上空、臥室(帶衛生間)、臥室x2、衛生間、陽臺x2; 三層戶型:起居室、書房、臥室(帶衛生間)x2、臥室x2、衛生間、陽臺x2; 四層戶型:起居室、臥室x2、臥室(帶衛生間)、衛生間、露臺、陽臺; ![]() ![]() ![]() ![]() ![]() 款式二:農村四層自建別墅設計圖,超大戶型設計,歐式風格圖紙介紹:這款四層別墅占地210平米左右,歐式風格,帶車庫和涼亭設計,外觀采用乳白色為主色調,大氣耐看,滿滿的豪宅既視感,別墅戶型端正,極大氣,主體造價60萬,帶有挑空客廳、車庫、茶水間、娛樂室、露臺、涼亭等功能,共設有3廳8臥,首層占地約210㎡,實用美觀。 占地面積:13.8m*16.5m,210平方米; 建筑層高:四層; 建筑高度:14.9米(含屋頂); 設計功能: 一層戶型:廚房,客房,書房,餐廳,車庫,門廳,客廳,洗衣房,公衛,套衛; 二層戶型:臥室(帶衛生間)X2,衣帽間,茶水間,門廳上空,臥室,客廳上空; 三層戶型:臥室,公衛,臥室(帶衣帽間)X2,套衛,廚房,酒水房,餐廳,起居室; 四層戶型:娛樂房,陽臺,陽光房,客房,公衛,休息室,涼亭,露臺X2; ![]() ![]() ![]() ![]() ![]() 款式三:農村四層自建別墅設計圖,占地138平米,歐式風格獨特大氣圖紙介紹:這款四層別墅占地138平米,歐式風格,從內到外注重品質感的締造,建筑外立面上的拱形落地窗,以及多處陽臺等,不僅使得房屋造型更加豐富,同時也優化了居住感受,是一套適合大家庭居住的高品質別墅。 占地面積:12.5m*13.5m,138平方米左右; 建筑層高:四層; 建筑高度:16.43米(含屋頂); 設計功能: 一層戶型:門廳、客廳、廚房、餐廳、娛樂室、臥室(帶衛生間)、衛生間; 二層戶型:客廳、主人房(帶衛生間)、臥室、衛生間、陽臺; 三層戶型:客廳上空、小客廳、臥室(帶衛生間)x2、陽臺; 四層戶型:臥室、衛生間、涼亭、露臺; ![]() ![]() ![]() ![]() ![]() 家里人多的朋友可以參考這三款戶型,歡迎收藏。
圖紙之家-專注農村別墅/自建房設計18年,集合國內200余位經驗豐富的設計師,被評為口碑最好的農村建筑設計公司! |

實用型二層別墅設計圖,簡單大方最耐看,16.5米乘11米
占地:150.94平方米
田園風格別墅設計圖紙及效果圖,三層鄉村小別墅設計方案
占地:166.4平方米
經典三層小別墅設計圖紙(效果圖+全套cad建筑圖),新農村自建
占地:120平方米
鄉下建房一層半戶型圖,占地160平米,帶閣樓
占地:多種戶型
三層三間別墅設計圖方案,含外觀圖片,自建推薦
占地:125平方米
帶配房的二層鄉村歐式別墅設計圖,尺寸15.84×13.84米
占地:149.19平方米
30萬以下的經典二層新農村別墅設計圖紙及效果圖,簡單大氣
占地:170平方米
農村三合院設計圖及效果圖,自建三合院圖紙
占地:470平方米
別致漂亮二層別墅設計圖紙,占地160平米左右,精致的外觀,讓人
占地:160平方米
農村三層雙拼房屋建筑施工設計圖紙,帶車庫
占地:180平方米
120平方米新農村全套二層施工設計圖紙大全11X11米
占地:120平方米
四開間2層別墅設計圖,外觀圖配色清新淡雅,占地200平米
占地:200平方米
經典二層農村自建房屋別墅設計圖紙,占地110平米左右
占地:110平方米
兩層半樓房設計圖及效果圖,農村二層房屋設計圖推薦
占地:135平方米
30萬農村小別墅設計圖片,30萬別墅設計戶型推薦
占地:130平方米
鄉村三層別墅設計圖紙,帶屋頂花園(含效果圖)
占地:150平方米
140平米平屋頂二層新農村自建房設計圖,極簡主義設計 ,實用優
占地:143平方米
20萬農村自建三層別墅設計圖,外觀美觀,戶型實用
占地:105平方米
平屋頂二層自建房帶商鋪別墅設計圖紙及外觀圖
占地:225平方米
新農村二層帶庭院的小別墅設計圖及效果圖
占地:137平方米
推薦:10套新農村自建房設計圖,2026年最新設計
閱讀次數:4825737次
100套鄉村別墅圖片大全,2026年最新設計
閱讀次數:2492203次
6款農村蓋一層平房的設計圖,10萬元就能建起來
閱讀次數:1852637次
這11個一層農村自建房別墅火爆了朋友圈!我最喜歡戶型十!你呢
閱讀次數:750268次
農村6萬元建一層小別墅圖,你敢相信嗎
閱讀次數:567686次
農村5萬塊就能自建房,6套普通房子設計圖分享,你沒看錯!
閱讀次數:419410次
8套農村漂亮三間平房圖片,非常適合在農村修建!
閱讀次數:411197次
農村自建房化糞池怎么做?附方案及施工過程
閱讀次數:391783次
農村一層三間平房設計圖,告別土氣養老房,讓人忍不住點贊
閱讀次數:350581次
新農村二層樓房圖片造價12萬,挑一套回家建房吧!
閱讀次數:349126次
