圖紙介紹:本戶型為20萬農村自建三層別墅設計圖,外觀現代、美觀,布局經典、實用,戶型南北通透,帶車庫,帶露臺(如果不需要車庫,施工時可以把車庫建成臥室,不需要更改圖紙)。
占地面積:10.5m*11.5m,120平方米左右;
建筑層高:三層;
建筑高度:12.32米(含屋頂);
戶型設計:
一層:客廳、餐廳、廚房、臥室、車庫、衛生間;
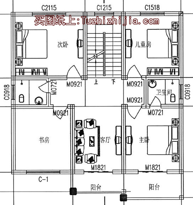
二層:客廳、主臥(帶衛生間)、臥室x2、書房、衛生間、陽臺x2;
三層:起居室、主臥(帶衛生間)、臥室、活動室、露臺、陽臺x2;
圖紙目錄:
建筑圖:圖紙目錄、建筑設計說明、平面圖x4、立面圖x4、剖面圖、節點大樣圖、門窗表等;
結構圖:圖紙目錄、結構設計說明、基礎配筋圖、基礎大樣圖、梁結構配筋圖、板結構配筋圖、屋面結構配筋圖、樓梯結構配筋圖等;
給排水圖:圖紙目錄、給排水設計說明、給排水平面圖、衛生間排水大樣圖、給水系統圖、排水系統圖等;
電氣圖:圖紙目錄、電氣設計說明、強電系統圖、弱電系統圖、照明布置圖、插座布置圖、弱電布置圖、基礎接地布置圖、屋頂防雷布置圖等。
本套圖紙為全套A3圖紙+效果圖,拿到即可施工!



































































































