
|
農村小平房一直以來在村里都是頗受歡迎,因為其小巧的造型,造價也經濟實惠,所以才受到廣大建房者的喜愛。同時小平層也很適合當養老房,家中老人不用爬樓,容易打掃,生活更舒適。今天小編就為大家整理了三套農村一層鄉村設計戶型圖,準備蓋房的朋友可不要錯過了! 方案一:農村一層別墅設計圖,占地200平米左右,三室兩廳設計圖紙介紹:這款農村一層別墅占地200平米左右,三室兩廳帶書房設計,主體造價20萬左右。建造起來省錢又美觀,簡單又好看,還別有一番風味,絲毫不比別墅差! 占地面積:18.0m*12.0m,200平方米左右; 建筑層高:一層; 建筑高度:6.14米(含屋頂); 設計功能:玄關、客廳、餐廳、廚房、、主臥(帶衛生間,書房)、臥室×2、衛生間; ![]() ![]() ![]() ![]() 方案二:農村一層自建平房設計圖,中式三合院設計,造型古色古香圖紙介紹:這款農村一層中式三合院別墅占地214平米左右,經典實用的中式三合院設計,外觀秀氣,線條優美,有種小清新的氣質,造型左右對稱,南北通透,清風自來,在鄉下有一棟這樣的房子,生活是非常愜意的。呼上三五個好友,相約一起品茗;或是陪妻伴子,共享天倫之樂;或是抓住每一份安然,享受每一刻光陰。 ![]() ![]() 方案三:農村一層自建平房設計圖,占地109平米,帶閣樓設計圖紙介紹:這款一層平房占地109平米,帶閣樓設計,外觀時尚大方,簡單的歐式風格,帶大大的落地窗,雖然是一層的設計,但是外觀造型絲毫不輸給高層別墅,閣樓也帶窗,保證了閣樓層的采光,閣樓裝修好,住著也舒適,平時來客也有地方居住,最主要的是房子造價很經濟實惠。 ![]() ![]() ![]()
不知道這三款戶型大家喜歡哪一款?歡迎下方評論留言。
圖紙之家-專注農村別墅/自建房設計18年,集合國內200余位經驗豐富的設計師,被評為口碑最好的農村建筑設計公司! |

170平方米新農村現代樓中樓三層別墅設計施工圖紙及效果圖
占地:170平方米
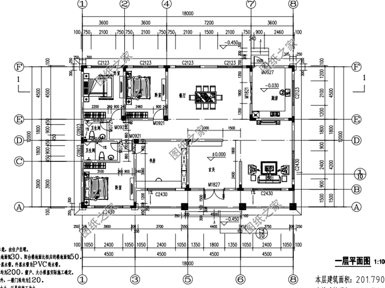
200平米二層自建房別墅設計圖,外觀漂亮布局實用
占地:207.09平方米
三層新農村住宅房屋設計圖,溫馨美觀的戶型
占地:180平方米
農村15萬元二層小樓設計圖,外觀簡潔、樸素,造價低
占地:138平方米
L字型自建房屋設計圖,一層別墅類型,外觀效果圖漂亮
占地:188.62平方米
新中式徽派帶露臺別墅設計圖,構思精巧,自然得體
占地:124.82平方米
適合小面寬宅基地的兩開間別墅設計圖,8.5米乘13.5米
占地:107.66平方米
四開間二層別墅設計圖,造型精美經典舒適,火爆全村的戶型
占地:150.882平方米
超實用的農村一層別墅設計圖,經濟實惠養老自住都不錯,
占地:128.35平方米
150平方米農村二層磚混結構別墅施工建筑設計圖,平頂設計
占地:150平方米
農村自建三層別墅設計圖,開間17米進深13米,外觀對稱設計
占地:187.6平方米
二層別墅設計圖紙及效果圖,占地200平米,外觀精致優雅,小有情
占地:200平方米
農村一層四開間養老別墅設計圖,造型美布局佳
占地:164.27平方米
帶堂屋設計一層5間平房新農村自建別墅效果圖全套施工圖
占地:198.41平方米
戶型好的農村三層樓房設計圖,帶外觀效果圖
占地:110平方米
豪華三層歐式風格別墅圖紙設計,挑空客廳大面寬大戶型
占地:225.72平方米
農村小別墅設計圖二層,占地不大顏值高,最適合農村建造。
占地:108.66平方米
廚房餐廳在配房的歐式三層農村別墅設計方案,華麗又宜居
占地:177.58平方米
帶架空層車庫/地下室自建一層別墅設計圖,隔潮又能儲物
占地:91.32平方米
農村三層雙拼別墅設計圖,帶外觀效果圖,推薦
占地:190平方米
推薦:10套新農村自建房設計圖,2026年最新設計
閱讀次數:4825737次
100套鄉村別墅圖片大全,2026年最新設計
閱讀次數:2492203次
6款農村蓋一層平房的設計圖,10萬元就能建起來
閱讀次數:1852637次
這11個一層農村自建房別墅火爆了朋友圈!我最喜歡戶型十!你呢
閱讀次數:750268次
農村6萬元建一層小別墅圖,你敢相信嗎
閱讀次數:567686次
農村5萬塊就能自建房,6套普通房子設計圖分享,你沒看錯!
閱讀次數:419410次
8套農村漂亮三間平房圖片,非常適合在農村修建!
閱讀次數:411197次
農村自建房化糞池怎么做?附方案及施工過程
閱讀次數:391783次
農村一層三間平房設計圖,告別土氣養老房,讓人忍不住點贊
閱讀次數:350581次
新農村二層樓房圖片造價12萬,挑一套回家建房吧!
閱讀次數:349126次
