
|
農村自建別墅,大多數都是在自家原有的宅基地基礎上建造的。宅基地面積是固定的,周圍住著全是鄰里朋友,也不想去申請宅基地了。面對自家那塊限米數的宅基地,你是不是犯了難? 今天小編就推薦三款適合農村宅基地進深十米開間十五米的自建房設計圖,一層到三層都有哦! 第一款:現代簡約一層自建房效果圖以及戶型圖![]() ![]() ![]() 這款經濟美觀一層農村別墅設計圖,占地150平米。現代簡約風,外觀灰白配色盡顯極簡,內部區域劃分合理。這款一層圖紙不管是外觀還是內部布局都很適合農村建房。 占地面積:14.0m*9.8m,145平方米左右 建筑層高:一層 建筑高度:6.59米(含屋頂) 設計功能:客廳、餐廳、廚房、、臥室×4、衛生間×2 ![]() 第二款:簡單實用型二層自建房別墅設計圖以及戶型圖![]() ![]() ![]() 農村二層自建別墅設計圖,戶型極好,二層帶大露臺氣質非常的突出,很清秀的一套別墅圖紙。房子蓋好,親戚朋友都想建,好戶型就是很受歡迎! 占地面積:15.4m*10.8m 建筑層高:二層 建筑高度:10.35米(含屋頂) 設計功能: 一層戶型:客廳、餐廳、廚房、衛生間、主臥(帶衛生間)×2、臥室 二層戶型:客廳、主臥(帶衛生間)、臥室x3、衛生間、大露臺
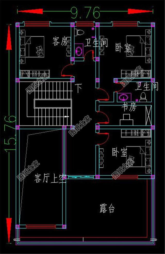
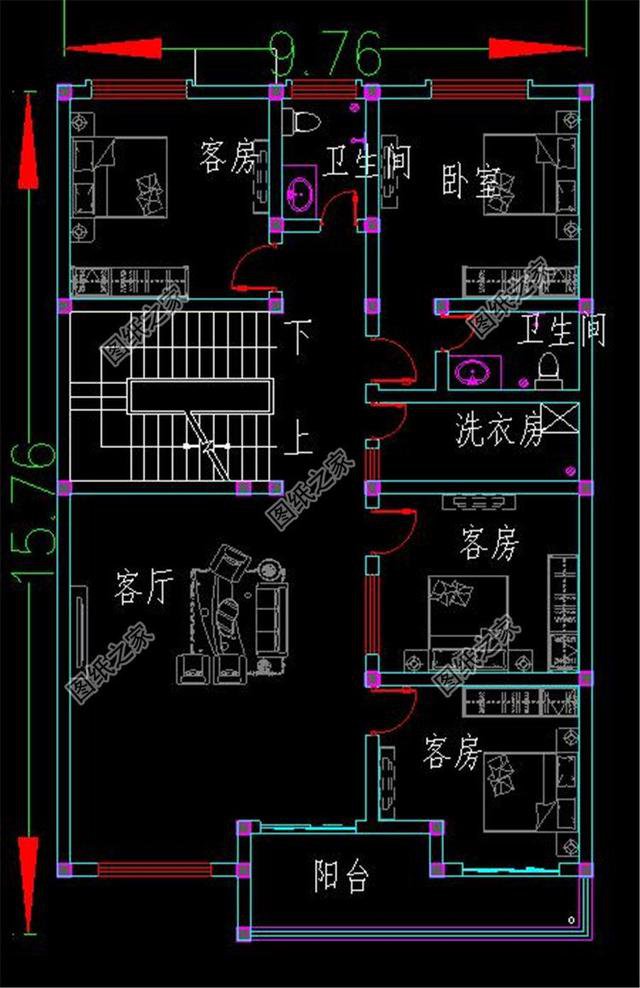
![]() ![]() 第三款:現代別墅設計圖紙帶效果圖以及戶型圖![]() 這款小戶型三層別墅設計方案,現代風別墅,時尚前衛,簡約大氣,住著及其舒適集時尚潮流于一體,外型美觀,關鍵是室內布局還很實用。深受廣大年輕朋友的喜愛,這款采用平屋頂設計,外型真是極好看,占地不大,造價經濟,建在村里獨一棟,是難得的好戶型。 占地面積:9.76m*15.76m,145.31平方米左右 建筑層高:三層 建筑高度:11.3米(含屋頂) 建筑結構:磚混結構 設計功能: 一層戶型:堂屋、神位、餐廳、臥室、衛生間 二層戶型:客廳、洗衣房、臥室(帶衛生間)、臥室x3、衛生間、陽臺 三層戶型:客廳挑空、書房、臥室(帶衛生間)、臥室x2、衛生間、露臺 ![]() ![]() ![]() 建房選圖紙,要選專業設計師設計的,安全性有保障哦! 本文由圖紙之家原創,歡迎關注,帶你一起長知識!
圖紙之家-專注農村別墅/自建房設計18年,集合國內200余位經驗豐富的設計師,被評為口碑最好的農村建筑設計公司! |

新中式高端豪宅三層別墅自建房設計圖,大戶型經典
占地:270平方米左右
160平小開間大進深農村三層別墅設計圖紙
占地:158.73平方米
農村帶閣樓一層房屋設計施工圖,13X9米
占地:102平方米
12米寬三間二層農村自建房設計圖,左右對稱布局緊湊看著就舒服
占地:144.94平方米
三層新農村自建房屋設計圖紙,占地120平米左右
占地:120平方米
簡單實用農村自建四層小別墅設計圖(三層半),95平米
占地:95平方米
帶車庫現代三層房屋別墅設計圖,占地110平米左右,功能齊全
占地:110平米
一層中式三合院農村自建別墅圖,面寬18米帶堂屋設計
占地:165.72平方米
農村三層帶車庫、帶露臺別墅設計圖,經典自建別墅設計方案
占地:160平方米
120平方三層房子設計圖,漂亮實用農村自建小別墅設計圖
占地:120平方米
140平三層別墅房屋設計圖,含外觀圖片,外觀現代時尚
占地:143平方米
復式客廳挑空三層別墅設計圖,帶外觀效果圖片,推薦
占地:150平方米
平屋頂四間一層農村自建房設計圖紙,經濟時尚
占地:144平方米
農村二層帶車庫樓房設計圖,帶外觀效果圖片
占地:125平方米
160平方農村三層別墅CAD設計圖紙,含外觀圖片效果圖
占地:156平方米
農村一層中式三合院別墅戶型圖,這才是適合中國人建的好房子
占地:218.77平方米
農村三層雙拼別墅戶型圖及全套施工圖紙,帶書房,帶衣帽間
占地:260平方米
簡約L型一層平房自建房設計圖,經濟實用
占地:145.283平方米
三層帶車庫樓中樓建房別墅圖紙,占地130平米左右,戶型室內布局
占地:130平方米
兩開間自建別墅設計圖,占地小造型簡約,不愁宅基地面寬小了
占地:118.4平方米
推薦:10套新農村自建房設計圖,2026年最新設計
閱讀次數:4825737次
100套鄉村別墅圖片大全,2026年最新設計
閱讀次數:2492203次
6款農村蓋一層平房的設計圖,10萬元就能建起來
閱讀次數:1852637次
這11個一層農村自建房別墅火爆了朋友圈!我最喜歡戶型十!你呢
閱讀次數:750268次
農村6萬元建一層小別墅圖,你敢相信嗎
閱讀次數:567686次
農村5萬塊就能自建房,6套普通房子設計圖分享,你沒看錯!
閱讀次數:419410次
8套農村漂亮三間平房圖片,非常適合在農村修建!
閱讀次數:411197次
農村自建房化糞池怎么做?附方案及施工過程
閱讀次數:391783次
農村一層三間平房設計圖,告別土氣養老房,讓人忍不住點贊
閱讀次數:350581次
新農村二層樓房圖片造價12萬,挑一套回家建房吧!
閱讀次數:349126次
