
|
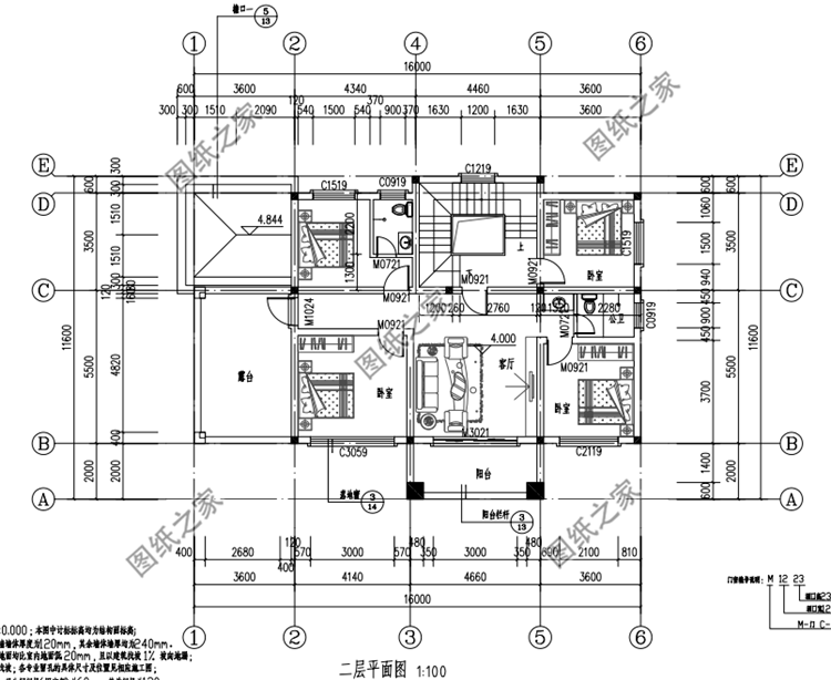
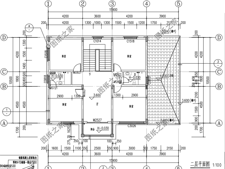
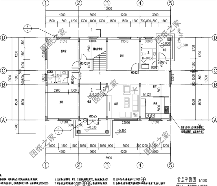
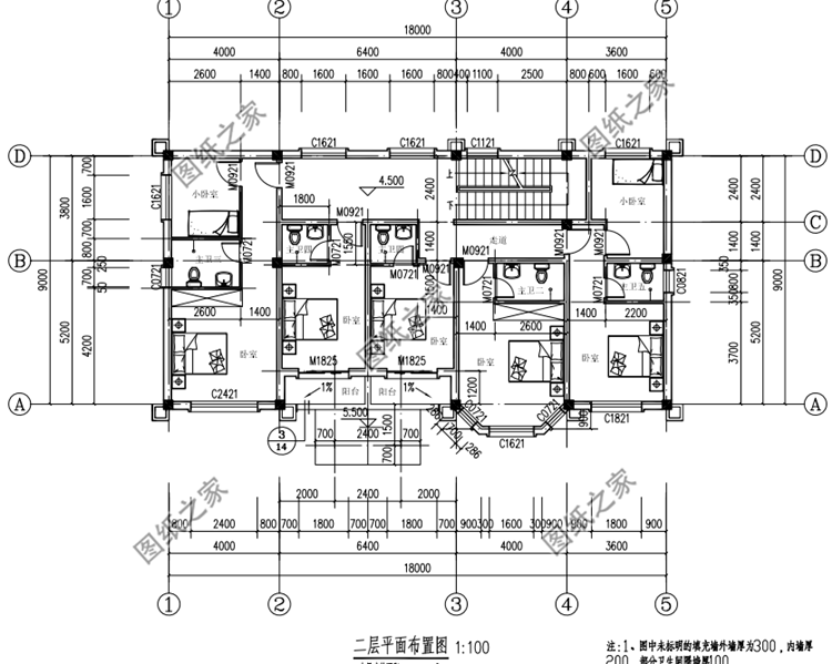
隨著現代生活的改變,蓋房子也該提上日程,趁著現在家底有地,趕緊先把施工隊跟圖紙先定下來,再擇選黃道吉日開始自建別墅,不管是南方還是北方,蓋房子這事刻不容緩;如果你還拿不定主意建什么外觀什么戶型,那么就參考參考這三款為大家提供的二層樓平面圖設計圖圖紙吧,收藏了和家人一起看吧! 方案一:農村二層小樓設計圖,占地170平米,平屋頂設計圖紙介紹:這款二層自建別墅占地170平米,外觀漂亮,平屋頂設計,多臥室的戶型,以樸質為主,外墻的配色還有房子的造型都體現出一種農村質樸的風俗習慣。 占地面積:18.0m*9.0m,170平方米左右; 建筑層高:二層; 建筑高度:11.1米(最高點); 設計功能: 一層戶型:客廳、餐廳、廚房、衛生間、臥室(帶衛生間)×2; 二層戶型:臥室(帶衛生間、小臥室)×2、臥室(帶衛生間)×3; ![]() ![]() ![]() ![]() 方案二:農村二層自建小別墅設計圖,外觀簡單大氣,帶車庫和露臺設計圖紙介紹:這款農村二層樓房占地156平米左右,外觀簡單大氣,帶車庫和露臺設計,現在二層房子在農村也是非常流行的,它結構比較簡單,時尚又實惠。外觀上屋頂采用藍色瓦,主墻外面采用黃色面磚搭配米白色欄桿,色彩明亮,簡單大氣。 占地面積:16.0m*11.6m,占地面積156平方米左右; 建筑層高:二層; 建筑高度:9.8米(含屋頂); 設計功能: 一層戶型:客廳、餐廳、廚房、衛生間、臥室、車庫、伙房、雜物間; 二層戶型:客廳、臥室(帶衛生間)、臥室x3、衛生間、陽臺、大露臺; ![]() ![]() ![]() ![]() 方案三:農村二層自建房設計圖,戶型經典,越看越有韻味圖紙介紹:這款二層自建別墅占地160平米,主體造價20萬左右,經典農村建房款式,越看越有韻味。本戶型為中式鄉村別墅風格,灰色的屋頂和咖色墻體呼應對比,外觀干凈優美,房子的大小剛剛好,結構緊湊實用,采光效果良好。 占地面積:15.2m*11.0m,160平方米左右; 建筑層高:二層; 建筑高度:9.8米(含屋頂); 設計功能: 一層戶型:客廳、餐廳、廚房、衛生間、主臥(帶衛生間)、臥室、棋牌室; 二層戶型:休閑廳、主臥(帶衛生間)、臥室x3、衛生間、陽臺; ![]() ![]() ![]() ![]() 喜歡這三款戶型的朋友記得收藏,不然就要錯過啦。
圖紙之家-專注農村別墅/自建房設計18年,集合國內200余位經驗豐富的設計師,被評為口碑最好的農村建筑設計公司! |

275平方米新農村雙拼樓中樓戶型別墅設計圖紙及效果圖21X14米
占地:275平方米
新中式風格二層住宅設計圖,農村自建房不土氣
占地:144.5平方米
農村四層樓房設計圖及外觀效果圖,造價60萬左右
占地:163.84平方米
105平方米新農村三層別墅設計圖,全套CAD建筑圖+效果圖
占地:105平方米
一層半中式合院別墅設計圖,帶配房,有庭有院有品位
占地:135平方米左右
100平米兩間三層樓房設計圖,農村蓋房舒服實用最重要
占地:100平方米
造價40萬三層大氣自建房設計圖紙,鄉村別墅建造圖
占地:159.609平方
二層歐式農村小別墅設計圖,9.5米乘13米,戶型好到鄰居求圖紙
占地:118.32平方米
異形宅基地二層農村別墅設計圖,現代風時尚又大氣
占地:242.03平方米
120平帶車庫二層農村別墅施工圖,簡約時尚的外觀
占地:119.13平方米
兩層半30萬農村自建房別墅設計圖紙,客廳挑空,帶大露臺
占地:130平方米
地中海風格二層別墅房屋設計圖,帶外觀效果圖
占地:150平方米
農村簡易二層樓設計圖,外觀簡單漂亮,經典時尚
占地:140平方米
簡約偏現代三層別墅設計圖紙及效果圖,鄉村蓋房推薦方案
占地:130平方米左右
超實用的農村一層別墅設計圖,經濟實惠養老自住都不錯,
占地:128.35平方米
農村現代三層建房子設計圖及圖片,平屋頂的設計
占地:150平方米
農村中式一層三合院自建房設計圖,古典大氣白墻黛瓦
占地:177.62平方米
四層豪華歐式別墅自建樓房設計圖紙,帶效果圖和全套施工圖
占地:300平方米
歐式風二層別墅設計圖,帶陽光房設計,時尚美觀還很實用
占地:多戶型可選
農村120平三層樓房設計圖,造型現代,帶屋頂花園
占地:120平方米
推薦:10套新農村自建房設計圖,2026年最新設計
閱讀次數:4825737次
100套鄉村別墅圖片大全,2026年最新設計
閱讀次數:2492203次
6款農村蓋一層平房的設計圖,10萬元就能建起來
閱讀次數:1852637次
這11個一層農村自建房別墅火爆了朋友圈!我最喜歡戶型十!你呢
閱讀次數:750268次
農村6萬元建一層小別墅圖,你敢相信嗎
閱讀次數:567686次
農村5萬塊就能自建房,6套普通房子設計圖分享,你沒看錯!
閱讀次數:419410次
8套農村漂亮三間平房圖片,非常適合在農村修建!
閱讀次數:411197次
農村自建房化糞池怎么做?附方案及施工過程
閱讀次數:391783次
農村一層三間平房設計圖,告別土氣養老房,讓人忍不住點贊
閱讀次數:350581次
新農村二層樓房圖片造價12萬,挑一套回家建房吧!
閱讀次數:349126次
