
|
伴隨著社會經濟的快速發展下,農村樣貌發生了大變化,許多農村地區在國家的領導下早已脫掉了貧困的帽子,再配上純原生態生活環境使得更多的選擇返鄉建房。但是如今對建房的需求越來越高,不單單光注重在居住上房屋的配套設計也尤為重要可以為戶主帶來更多的便捷。像現在農村的大馬路的開通家家戶戶都開上了小汽車,建房的時候保留出一個車庫就非常有必要了。本期小編就給大家帶來幾款帶有車庫的農村小別墅,給準備建房的朋友趕緊安排上! 別墅圖一展示:占地面積:15.2m*11.0m,160平方米左右; 建筑層高:二層; 建筑高度:9.8米(含屋頂);
正面效果圖
側面效果圖
鳥瞰效果圖 設計功能:
一層戶型圖 一層戶型:客廳、餐廳、廚房、衛生間、主臥(帶衛生間)、樓梯間、車庫;
二層平面圖 二層戶型:休閑廳、主臥(帶衛生間)、臥室x2、衛生間、陽臺x2、大露臺; 別墅圖二展示:占地面積:16.6m*13.5m,193平方米左右; 建筑層高:二層; 建筑高度:9.4米(含屋頂);
正面效果圖
鳥瞰效果圖
側面效果圖 設計功能:
一層戶型圖 一層戶型:客廳、廚房、餐廳、柴火灶、臥室(帶衛生間)、臥室x2、洗衣間、衛生間、車庫;
二層戶型圖 二層戶型:客廳上空、客廳、健身房、書房、臥室(帶衛生間)、衣帽間、臥室、衛生間、露臺; 別墅圖三展示:占地面積:14.7m*13m,221平方米左右; 建筑層高:二層; 建筑高度:10.6米(含屋頂);
別墅效果圖 設計功能:
一層平面圖 一層戶型:玄關、客廳、廚房、餐廳、臥室(帶衛生間)、臥室、衛生間x2、車庫;
二層平面圖 二層戶型:餐廳、臥室(帶衛生間、書房、衣帽間)、臥室x3、衛生間x2、陽臺、露臺; 別墅圖四展示:占地面積:16.36m*11.05m,168.73平方米左右; 建筑層高:二層; 建筑高度:9.499米(含屋頂);
別墅效果圖 設計功能:
一層戶型圖 一層戶型:客廳、鍋爐房、餐廳、廚房、臥室x2、衛生間、車庫;
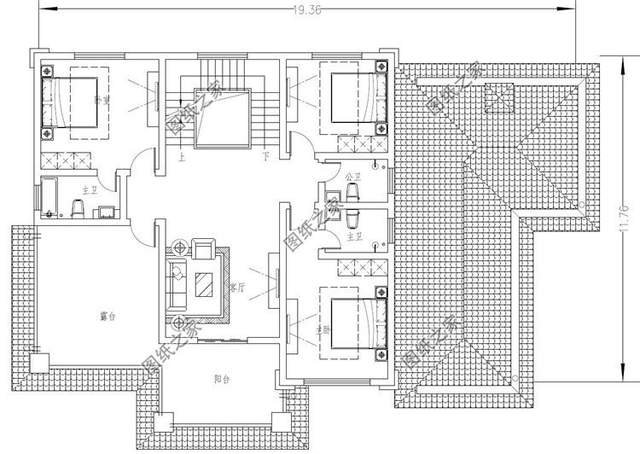
二層戶型圖 二層戶型:客廳、娛樂室、臥室x4、衛生間、陽臺、露臺; 別墅圖五展示:占地面積:19.36m*11.76m,202.99平方米左右; 建筑層高:二層; 建筑高度:9.425米(含屋頂);
別墅效果圖 設計功能:
一層平面圖 一層戶型:客廳、廚房、餐廳、生火房、雜物間、車庫、臥室x2、衛生間;
二層平面圖 二層戶型:客廳、臥室(帶衛生間)x2、臥室、衛生間、陽臺、露臺; 圖紙之家-專注農村別墅/自建房設計18年,集合國內200余位經驗豐富的設計師,被評為口碑最好的農村建筑設計公司! |

100平復式三層別墅房屋設計圖,客廳挑高,采光好,臥室多
占地:100平方米
200平方米別墅設計圖紙(含效果圖),農村別墅方案精選
占地:200.26平方米
農村二層帶閣樓四間別墅設計圖,外觀美觀,戶型實用
占地:175平方米
帶屋頂平臺的一層農村小別墅圖,有閣樓有露臺
占地:152平方米
農村三層四合院別墅設計圖紙,自建房建這棟面子十足
占地:227.49平方米
最新小別墅設計圖,復式三層,外觀非常漂亮
占地:158平方米
二層樓房圖片及施工圖紙,占地160平米左右,帶車庫
占地:160平方米
農村建房兄弟雙拼兩層住宅設計圖,單戶150平米左右
占地:300平方米
農村兩間兩層樓房設計圖,造價15萬左右,獨立的廚房設計,干凈
占地:95平方米
80-90平米二層經典小別墅房屋設計圖,左右對稱外觀
占地:88.46平方米
140平方米新農村三層房屋設計圖,磚混結構帶地下室
占地:138平方米左右
三層帶地下室+旋轉樓梯別墅設計圖紙,復式挑空客廳
占地:多種戶型
歐式四層(三層半)獨棟別墅設計圖復式,設計豪華時尚
占地:194平方米
帶地下室的一層別墅設計圖,農村自建房比較合適
占地:206平方米
帶露臺陽光房二層建房別墅設計圖,13米乘12米,享受農村悠然慢
占地:143.54平方米
160平方米農村實用型二層自建小別墅設計施工圖紙15米*10米
占地:160平方米
自建二層獨棟別墅建筑施工圖,含效果圖和全套設計圖紙
占地:198.72平方米
230平方米豪華歐式二層別墅CAD設計圖紙帶外觀效果圖,21.6×15米
占地:236平方米
農村中式二層雙拼四合院別墅設計圖,兄弟父母三戶典雅大氣
占地:360平方米
新中式農村三層樓房設計圖,帶地下室,主體建筑面積110平米
占地:110平方米
推薦:10套新農村自建房設計圖,2026年最新設計
閱讀次數:4825737次
100套鄉村別墅圖片大全,2026年最新設計
閱讀次數:2492203次
6款農村蓋一層平房的設計圖,10萬元就能建起來
閱讀次數:1852637次
這11個一層農村自建房別墅火爆了朋友圈!我最喜歡戶型十!你呢
閱讀次數:750268次
農村6萬元建一層小別墅圖,你敢相信嗎
閱讀次數:567686次
農村5萬塊就能自建房,6套普通房子設計圖分享,你沒看錯!
閱讀次數:419410次
8套農村漂亮三間平房圖片,非常適合在農村修建!
閱讀次數:411197次
農村自建房化糞池怎么做?附方案及施工過程
閱讀次數:391783次
農村一層三間平房設計圖,告別土氣養老房,讓人忍不住點贊
閱讀次數:350581次
新農村二層樓房圖片造價12萬,挑一套回家建房吧!
閱讀次數:349126次
