
|
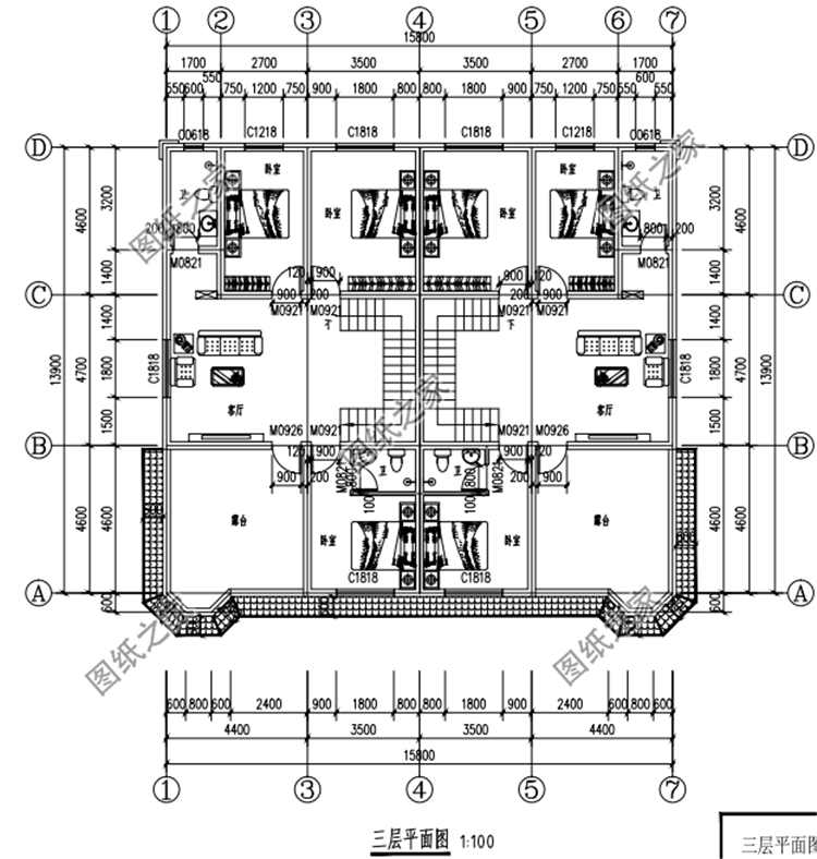
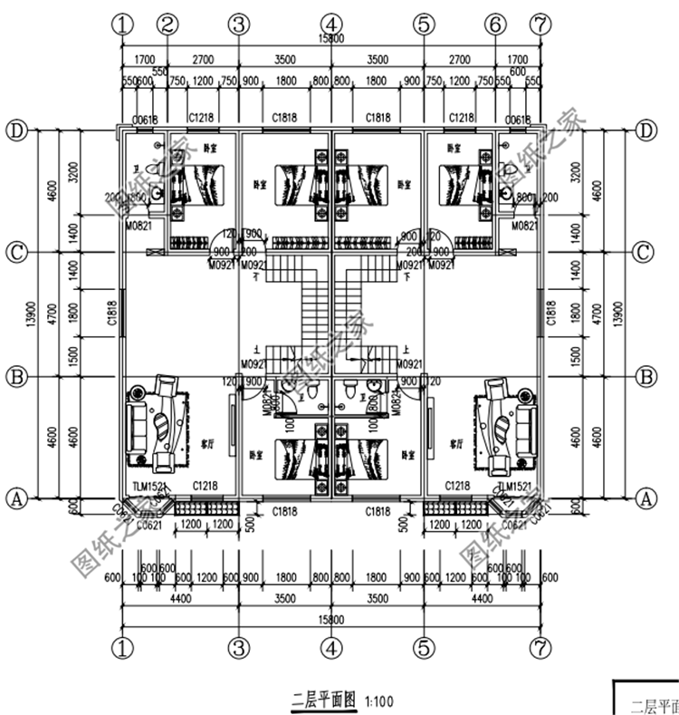
見到了太多的農村自建房戶型了,好看豪華的都非常多。但是真正能在農村流行起來的恐怕沒多少。而且農村家里兄弟多,所以雙拼別墅也成了農村人兄弟和睦的象征,大家都在追求更高的生活品質和更精準的生活要求。今天介紹三款農村兄弟雙拼自建房設計圖,農村家庭都能接受的戶型,好看實用造價不高! 戶型一:農村三層雙拼別墅設計圖,占地150平米左右,兄弟合建房圖紙介紹:這款新款農村三層雙拼自建房占地150平米左右,單戶75平米左右,新款的設計,占地面積不大符合農村的用地政策。戶型合理,雖然面積不大,但房間布局很好,不緊湊,充分了利用了每一寸空間。外觀是偏歐式的風格,高貴氣質和精雕細琢的工藝,散發著獨一無二的魅力。暖黃色的外墻搭配紅色的屋頂,溫馨安逸,這才是中國農村該建的房子。 占地面積:14.4m*10.4m,150平方米左右,單戶75平左右; 建筑層高:三層; 建筑高度:12.6米(含屋頂); 設計功能: 一層:客廳、餐廳、廚房、臥室、衛生間; 二層:客廳、臥室×2、書房、衛生間; 三層:臥室,書房、衛生間、露臺; ![]() ![]() ![]() ![]() 戶型二:農村三層雙拼自建房設計圖,總占地240平米,戶型經典大氣圖紙介紹:這款三層自建雙拼別墅占地240平米左右,戶型經典大氣,很適合南方的宅基地,宅基地小也能建出氣派的房子。外墻用的配色都是比較能看出貴氣的,大門的門樓很重要,氣派性一下子就突顯出來了。 占地面積:18.0m*13.5m,240平方米左右,單戶120平左右; 建筑層高:三層; 建筑高度:13.36米(含屋頂); 設計功能: 一層:玄關、客廳、餐廳、廚房、臥室、衛生間; 二層:起居室、臥室×3、衛生間、陽臺; 三層:臥室×3、衛生間、露臺; ![]() ![]() ![]() ![]() 戶型三:農村三層雙拼別墅設計圖,占地220平米,整體外觀氣派十足圖紙介紹:這款農村三層雙拼別墅占地220平米左右,整體外觀氣派,無論是從結構布局還是材料裝飾等方面是一模一樣的。兄弟兩人,共分一塊宅基地,一人做一棟別墅地基太小,房子建起來略顯擁擠,不夠大氣,做成雙拼,正好可以彌補這些缺陷,一棟雙拼別墅立在村中,村里的人走過都會夸贊恢宏,兄弟情義好。 占地面積:15.8m*13.9m,228平方米左右,單戶114平左右; 建筑層高:三層; 建筑高度:12.1米(含屋頂); 設計功能: 一層:客廳、餐廳、廚房、臥室(帶衛生間)、衛生間; 二層:客廳、主臥(帶衛生間)、臥室×2、衛生間; 三層:客廳、臥室(帶衛生間)、臥室×2、衛生間,露臺; ![]() ![]() ![]() ![]() 不知道這三款戶型大家喜歡哪一款?歡迎評論留言。
圖紙之家-專注農村別墅/自建房設計18年,集合國內200余位經驗豐富的設計師,被評為口碑最好的農村建筑設計公司! |

2026年經典新中式三層別墅設計圖紙,新款自建房戶型圖
占地:158.19平方米
農村四間兩層樓房設計圖,帶車庫,時尚經濟,最適合農村施工的
占地:180平方米
農村實用三層樓房圖片,占地140平米左右,客廳中空
占地:140平方米
新中式農村三層樓房設計圖,帶地下室,主體建筑面積110平米
占地:110平方米
農村二層小別墅圖片,二層別墅效果圖及設計圖
占地:153平方米
120平米農村房屋設計圖,造價20萬左右,別墅造型結構精致
占地:120平方米
田園風格別墅設計圖紙及效果圖,三層鄉村小別墅設計方案
占地:166.4平方米
新農村小戶型4層自建房三層半別墅設計圖,平屋頂設計
占地:95平方米
普通農村二層房子設計圖 ,復式結構,帶車庫,占地160平米左右
占地:160平方米
140平方米現代偏中式實用型三層房屋設計圖紙,新農村建房推薦
占地:142平方米
農村四層樓房外形設計圖,主臥配有陽臺和衣帽間還有衛生間
占地:126平方米
農村三層帶地下室住宅設計圖及圖片,房內設計了兩個套間
占地:210平方米
經濟型實用歐式一層小樓房別墅平房設計圖,11X10米
占地:103平方米
面寬15米的農村三層房屋設計圖,帶別墅效果圖
占地:137平方米左右
2款現代風格農村兩層別墅設計圖,時尚漂亮
占地:多戶型可選
帶車庫農村二層樓房設計圖,外觀漂亮,精致
占地:154平方米
大戶型美觀一層平房自建房設計圖,面寬19米左右
占地:245.1平方米
一層平屋頂自建房圖,簡單而舒適,既省錢不說還不愁沒地曬糧食
占地:106平方米
兩層半雙拼別墅設計方案,超大露臺+歐式風格,好設計別錯過!
占地:175.8平方米
精致小巧新農村二層別墅設計圖紙,占地90平米左右,造價15萬左
占地:90平方米
推薦:10套新農村自建房設計圖,2026年最新設計
閱讀次數:4825737次
100套鄉村別墅圖片大全,2026年最新設計
閱讀次數:2492203次
6款農村蓋一層平房的設計圖,10萬元就能建起來
閱讀次數:1852637次
這11個一層農村自建房別墅火爆了朋友圈!我最喜歡戶型十!你呢
閱讀次數:750268次
農村6萬元建一層小別墅圖,你敢相信嗎
閱讀次數:567686次
農村5萬塊就能自建房,6套普通房子設計圖分享,你沒看錯!
閱讀次數:419410次
8套農村漂亮三間平房圖片,非常適合在農村修建!
閱讀次數:411197次
農村自建房化糞池怎么做?附方案及施工過程
閱讀次數:391783次
農村一層三間平房設計圖,告別土氣養老房,讓人忍不住點贊
閱讀次數:350581次
新農村二層樓房圖片造價12萬,挑一套回家建房吧!
閱讀次數:349126次
