
|
在農村建造屬于自己的自建房是一件讓人開心的事情,但是審批下來的宅基地要是不大的話會令人很難受,這時候也就這能往高里建了,而且農村很多家庭的人很多,或者是直接幾家親人都住在一起,那么需要的房間就要多很多了,今天給大家帶來的是帶陽臺的四層別墅設計圖紙,外觀精美,內部布局合理,人多也能住的下,還能住的開心,住的舒適,一起來看看吧。 別墅圖一:鄉村高檔四層豪華別墅圖片一層不加廚房餐廳,廚房餐廳設計到三層,更適合四層布局,含整套CAD設計施工圖,獨棟別墅氣派豪華。因為占地并不大,只有加樓高,才可以達到家里全部成員的要求。落地玻璃窗和好幾個窗戶設計,提升房間內的光照和自然通風,不會讓屋內看起來陰暗擁擠。除開需要的日常生活作用空間外,該房型還設有了健身會所、活動室、KTV室等休閑娛樂功能,日常生活之余增加休閑活動。
別墅效果圖 占地面積:11.8m*14.1m,147平方米左右; 建筑層高:四層; 建筑高度:16.05米(含屋頂); 設計功能: 一層戶型:大廳、客廳、臥室(帶衛生間)、KTV(帶衛生間)、過道、衛生間、娛樂室; 二層戶型:客廳上空、客廳、臥室(帶衛生間)x3、衣帽間、陽臺; 三層戶型:客廳、餐廳、廚房、臥室(帶衛生間衣帽間)、臥室(帶衣帽間)、臥室、衛生間、露臺; 四層戶型:客廳、娛樂室、健身房、衛生間、露臺;
背面效果圖
鳥瞰效果圖
一層平面圖
二層平面圖
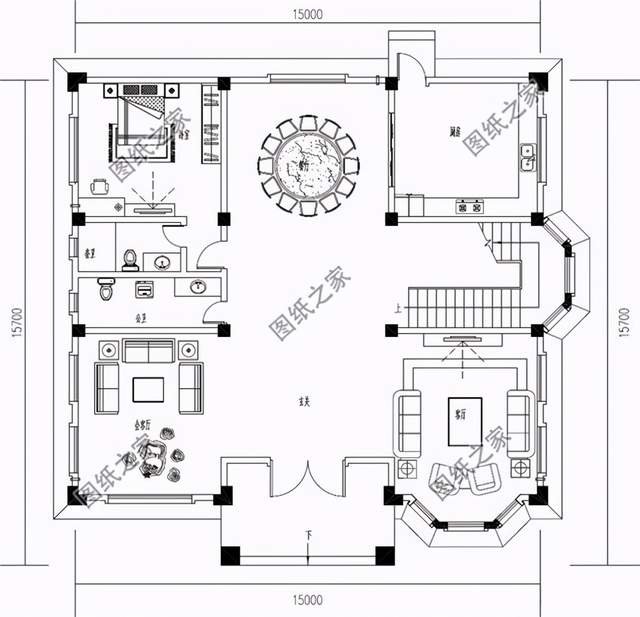
三層平面圖
四層平面圖 別墅圖二: 9x13米一次帶商鋪臨街戶型自建別墅樓房,房屋設計圖紙挑空復式帶大陽臺。一層做為鋪面帶公衛,設計方案朝南室內樓梯進到居住區。二層布局為:基本上的日常生活配備包含餐廳廚房飯店等,戶外設以生活陽臺;三層有三室一廳一衛,裝有一個外接生活陽臺。四層設計了兩室一廳一衛,配上涼亭和陽臺。帶鋪面的房屋,無論是放租,或是自身用于做點小生意也是適合的。
別墅效果圖 占地面積:9.0m*13.0m,133平方米; 建筑層高:四層; 建筑高度:16.82米(含屋頂); 設計功能: 一層戶型: 商鋪,衛生間; 二層戶型:客廳,臥室(帶衛生間,陽臺),廚房,餐廳,衛生間,臥室,儲物間; 三層戶型:客廳上空,臥室(帶陽臺),起居室,臥室,衛生間,兒童房; 四層戶型:露臺,亭子,起居室,臥室X2,衛生間;
背面效果圖
鳥瞰效果圖
一層平面圖
二層平面圖
三層平面圖
四層平面圖 別墅圖三:新款農村四層復式別墅設計圖紙及效果圖建筑立面清爽別具一格,這款獨棟別墅有著傳統的歐式外型,空氣的建筑物線框、巍巍的立柱式設計方案、唯美意境的弧型落地玻璃窗、層級參差的陽臺生活陽臺,總體大氣細節精美。最醒目的制定就源于獨棟別墅的門框設計方案,直達三層,華燈初上,房間內暖烘烘的光線閃爍,肯定是整個鎮子最璀璨奪目的一棟
別墅效果圖 占地面積:15m*15.7m,207平方米左右; 建筑層高:四層; 建筑高度:16.48米(含屋頂); 設計功能: 一層戶型:玄關、客廳、會客廳、廚房、餐廳、臥室(帶衣帽間)、衛生間; 二層戶型:客廳上空、客廳、書房、臥室(帶衛生間)x2、臥室、衛生間; 三層戶型:客廳、書房、儲物間、臥室(帶衛生間)x2、臥室、衛生間; 四層戶型:娛樂廳、KTV、健身房、陽光房、臥室、衛生間、陽臺、露臺;
背面效果圖
鳥瞰效果圖
一層平面圖
二層平面圖
三層平面圖
四層平面圖 以上就是今天分享的全部內容了,有想法的朋友們記得收藏喲。 圖紙之家-專注農村別墅/自建房設計18年,集合國內200余位經驗豐富的設計師,被評為口碑最好的農村建筑設計公司! |

50萬左右農村豪華二層別墅設計圖 ,大廳中空,外觀精美
占地:210平方米
帶架空層的農村二層別墅設計方案,造型大氣漂亮
占地:176平方米
農村13萬元二層小樓圖,簡單易建,造價低
占地:110平方米
地中海風格二層別墅設計圖及效果圖,外觀有格調
占地:125平方米
新農村自建房設計圖及效果圖大全,新農村住宅精選
占地:112平方米
鄉村仿古一層別墅圖片及設計圖,經典實用,占地170平
占地:170平方米
新中式三層雙拼別墅設計圖及效果圖,中式大氣風格
占地:235.26平方米
造價便宜的二層雙拼別墅設計圖,造型簡約大氣,進深10米
占地:SP23059
農村小別墅一層設計圖紙,全套施工圖兩款戶型可選
占地:多種戶型可選
12x10米帶閣樓的農村一層半別墅設計圖,外觀洋氣
占地:110.54平方米
四開間一層自建房設計圖,四臥二廳+棋牌室+書房
占地:181.29平方米
歐式三層小洋樓設計圖,外觀氣派,典雅、高貴
占地:145平方米
農村60萬三層別墅新款式設計圖,外觀和實用性并駕齊驅
占地:170平方米
高端大氣三層歐式別墅設計圖,高檔新款外型圖片美觀時尚
占地:168平方米
兩層半20萬農村自建房,占地120平米左右
占地:120平方米
110平農村二層房屋設計圖,新農村自建房戶型推薦
占地:110平方米
農村兩層新中式別墅圖紙設計圖,外觀圖片大氣,21萬左右
占地:108平方米
鄉村二層簡歐小戶型別墅圖設計,占地90平方米左右
占地:92.12平方米
中式四合院風格別墅設計圖,平屋頂,書房、茶室、健身房一應俱
占地:370平方米
帶庭院的農村一層別墅圖紙設計,外觀時尚好看
占地:多戶型可選
推薦:10套新農村自建房設計圖,2026年最新設計
閱讀次數:4825737次
100套鄉村別墅圖片大全,2026年最新設計
閱讀次數:2492203次
6款農村蓋一層平房的設計圖,10萬元就能建起來
閱讀次數:1852637次
這11個一層農村自建房別墅火爆了朋友圈!我最喜歡戶型十!你呢
閱讀次數:750268次
農村6萬元建一層小別墅圖,你敢相信嗎
閱讀次數:567686次
農村5萬塊就能自建房,6套普通房子設計圖分享,你沒看錯!
閱讀次數:419410次
8套農村漂亮三間平房圖片,非常適合在農村修建!
閱讀次數:411197次
農村自建房化糞池怎么做?附方案及施工過程
閱讀次數:391783次
農村一層三間平房設計圖,告別土氣養老房,讓人忍不住點贊
閱讀次數:350581次
新農村二層樓房圖片造價12萬,挑一套回家建房吧!
閱讀次數:349126次
