
|
家鄉雖然沒有城里發達,但景色特別美麗。而且家鄉的美景是會勾人魂的,而最使我貪戀的莫過于家鄉的夜晚了,輕柔得像湖水,隱約的像薄霧,月光如流水般從天而瀉,靜靜地附在房屋上。雖然我眷戀的家鄉只是中國地圖上一個小小的印記,但我依然深深戀著她,念著她。所以我要重新投入她的懷抱,在外打拼這么多年是時候回去了,回去在那里建一棟自己的房子,一個屬于自己的家,那接下來就跟小貍一起來看一看下面這款即將開建的別墅尺寸及效果圖。 戶型效果圖
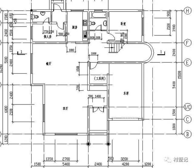
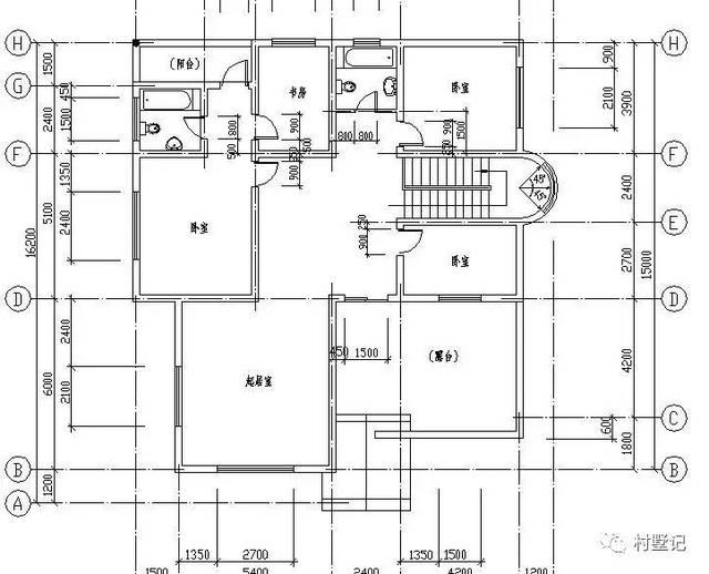
這款農村別墅的窗戶,門廳都設計的非常有特色,大大地屋頂露臺,特別方便晾曬東西,還可以作為休息的地方,舒適又實用。 戶型平面圖
一層設計有客廳,車庫,廚房、餐廳、臥室、衛生間和工具間,還有一間獨立進出的帶衛生間的工人房。
二層設計有3間臥室,起居室、2衛生間、書房和大大的屋頂露臺。室內設計尺寸適宜,空間利用率高。 圖紙之家-專注農村別墅/自建房設計18年,集合國內200余位經驗豐富的設計師,被評為口碑最好的農村建筑設計公司! |

簡單的二層樓房圖片及設計方案,自建樓房必看
占地:140平方米
中國最美的四合院別墅設計圖方案,復式挑空客廳戶型
占地:343.57平方米
現代風格二層別墅設計圖,外觀時尚、大氣
占地:153平方米
180平方米新農村自建二層小別墅設計圖及效果圖,15X13米
占地:183平方米
120平方米帶地下室三層復式別墅戶型圖,現代風格
占地:120.78平方米左
100平內的三層豪華歐式別墅房屋設計圖紙 ,簡歐風格
占地:94平方米左右
二層復式樓房設計圖,平實接地氣的平面布局
占地:180平方米
新農村二層客廳挑高樓房設計圖,外觀歐式風格
占地:178平方米
農村自建三層別墅設計圖,開間17米進深13米,外觀對稱設計
占地:187.6平方米
帶架空層的農村二層別墅設計方案,造型大氣漂亮
占地:176平方米
中式兄弟雙拼別墅設計圖紙,類似合院造型,美爆了
占地:221.9平方米
農村四間二層別墅設計圖,七室二廳帶車庫,室內寬敞鄰居都羨慕
占地:217.1平方米
鄉下二層樓房住宅設計圖紙及效果圖,農村二層小洋樓
占地:140平方米
110平農村二層房屋設計圖,新農村自建房戶型推薦
占地:110平方米
新農村兩層樓房設計圖,占地110平米,戶型簡單實用
占地:110平方米
140平三層自建房別墅設計圖,外觀圖大氣、美觀
占地:140平方米
時尚四開間二層農村別墅,經典大氣,引領建房新潮流!
占地:159.6平方米
農村二層中式三合院設計圖,這才是國人該建的房子
占地:175.58平方米
異形宅基地二層農村別墅設計圖,現代風時尚又大氣
占地:242.03平方米
農村小別墅一層設計圖紙,外觀漂亮極了,130和160兩個戶型
占地:多種戶型可選
推薦:10套新農村自建房設計圖,2026年最新設計
閱讀次數:4825737次
100套鄉村別墅圖片大全,2026年最新設計
閱讀次數:2492203次
6款農村蓋一層平房的設計圖,10萬元就能建起來
閱讀次數:1852637次
這11個一層農村自建房別墅火爆了朋友圈!我最喜歡戶型十!你呢
閱讀次數:750268次
農村6萬元建一層小別墅圖,你敢相信嗎
閱讀次數:567686次
農村5萬塊就能自建房,6套普通房子設計圖分享,你沒看錯!
閱讀次數:419410次
8套農村漂亮三間平房圖片,非常適合在農村修建!
閱讀次數:411197次
農村自建房化糞池怎么做?附方案及施工過程
閱讀次數:391783次
農村一層三間平房設計圖,告別土氣養老房,讓人忍不住點贊
閱讀次數:350581次
新農村二層樓房圖片造價12萬,挑一套回家建房吧!
閱讀次數:349126次
