
|
隨著時代的發展,農村建造自建房的人群也逐步開始向年輕人轉移,年輕人漸漸成為了自建房的主力軍。而最受年輕人歡迎的,還是現代風格的別墅了。干凈的線條,幾何的美學,簡約的觀念無不迎合當代年輕人的喜好。今天給大家帶來三款現代風別墅二層設計圖紙,一起來看看吧。 別墅圖一:150平方米自建現代二層別墅施工設計圖帶外觀圖平頂房設計方案,15x10米,這類超現代簡約的別墅室內設計,新型材料的應用,幾何圖形外形的設計方案,造型藝術裝修的設計方案,獨棟別墅的上下左右都充滿了當代潮流的感覺。房間內空間布局十分有效。二樓是臥房作息時間區,有茶座,三間臥房緊密相連,能夠促進日常溝通交流互動。也有生活陽臺,能夠很好的滿足日常需求,使屋內有很好的光照自然通風效果。
別墅效果圖 占地面積:15m*10m,150平方米左右; 建筑層高:二層; 建筑高度:10.2米(含屋頂); 設計功能: 一層戶型:客廳、廚房、餐廳、臥室(帶衛生間)、儲物間、衛生間; 二層戶型:茶座、臥室(帶衛生間)x2、臥室、衛生間、陽臺;
背面效果圖
鳥瞰效果圖
一層平面圖
二層平面圖
屋頂平面圖 別墅圖二:百看不厭現代風格自建房圖紙,二層別墅設計方案外表簡約時尚潮流,十分美觀大方,融合浪漫與端莊,農村自建房新的篇章大城市蓋別墅一直較為時興現代風,只是鄉村還沒有普遍,顏色單一,但無失藝術美,時尚潮流大氣。表面選用乳白色和深棕色的防水材料,簡潔雅致,科技感十足!文化石的底邊配搭,既保持干凈,又長盛不衰。屋頂用深灰色瓦塊,性價比高,設計方案時尚潮流,看了的人都說好。
別墅效果圖 占地面積:14.06m*13.56m,171.6平方米左右; 建筑層高:二層; 建筑高度:11.203米(含屋頂); 設計功能: 一層戶型:堂屋、客廳、廚房、餐廳、臥室(帶衣帽間)、棋牌室、衛生間; 二層戶型:客廳、臥室(帶衣帽間)x2、臥室x2、陽臺;
一層平面圖
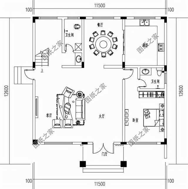
二層平面圖 別墅圖三:130平方米現代簡約農村兩層樓房施工設計圖紙帶外觀圖個性時尚的現代風格,架構和線框,不一樣顏色的深淺,使全部建筑立面精美干凈整潔。大開間的窗戶,與二樓的夾層玻璃護欄互相呼映,襯托出農村的鄉村風光,美麗的景色。
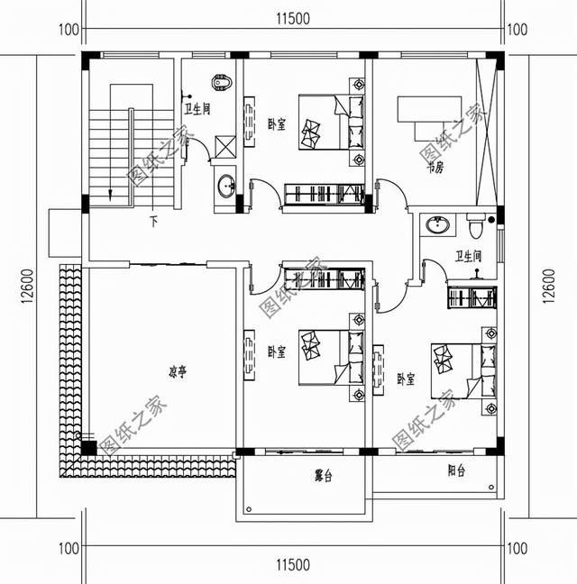
別墅效果圖 占地面積:11.5m*12.6m,126平方米左右; 建筑層高:二層; 建筑高度:9.36米(含屋頂); 設計功能: 一層戶型:大廳、客廳、廚房、餐廳、臥室(帶衛生間)、衛生間; 二層戶型:臥室(帶衛生間)、臥室x2、書房、衛生間、露臺、陽臺、涼亭;
鳥瞰效果圖
背面效果圖
一層平面圖
二層平面圖 這就是今天給大家分享的全部內容了,希望大家喜歡。 圖紙之家-專注農村別墅/自建房設計18年,集合國內200余位經驗豐富的設計師,被評為口碑最好的農村建筑設計公司! |

二層農村雙拼別墅帶露臺設計圖,20×11.8米,單戶110平米
占地:220平方米
135平三層農村樓房設計圖及效果圖,造價20萬左右
占地:135平方米
農村自建四層百萬豪宅別墅設計圖,客廳中空
占地:170平方米
17X12米三層雙拼別墅自建房設計圖,歐式風格,戶型方正
占地:190平方米
10米×13米最好看的農村三層樓房圖,客廳中空
占地:124平方米
中式一層仿古自建平房設計圖,灰墻青瓦,外觀古香古色
占地:168.48平方米
新中式別墅一層自建房設計,戶型實用緊湊
占地:170.54平方米
新中式風格農村自建房二層設計圖,15.5米乘12米
占地:186平方米
130平氣派美觀的二層別墅房屋設計圖,含效果圖
占地:130平方米
新中式三層歐式別墅設計圖,盡顯貴族風范,占地135平
占地:134.37平方米
鄉村典型自建房中式二層四合院別墅設計圖,左右對稱設計
占地:430平方米
三層蓋房子歐式挑空客廳別墅設計圖,外觀漂亮戶型實用
占地:多種戶型
農村蓋房設計大全一層房子的設計圖紙,色調清新靚麗
占地:220平方米
高顏值又實用的一層雙拼鄉村別墅設計圖,舒適度堪比豪宅
占地:217.3平方米
廚房在前,簡約歐式二層農村自建別墅設計圖,戶型個性
占地:143.69平方米
200平米二層自建房別墅設計圖,外觀漂亮布局實用
占地:207.09平方米
最美建筑四合院別墅設計方案,大氣經典,開間19米
占地:168.61平方米
面寬10米左右的三層農村別墅設計案例,低調又奢華
占地:120平方米
16×12米二層歐式帶車庫農村小別墅,既舒適又美觀
占地:180平方米
兩開間自建別墅設計圖,占地小造型簡約,不愁宅基地面寬小了
占地:118.4平方米
推薦:10套新農村自建房設計圖,2026年最新設計
閱讀次數:4825737次
100套鄉村別墅圖片大全,2026年最新設計
閱讀次數:2492203次
6款農村蓋一層平房的設計圖,10萬元就能建起來
閱讀次數:1852637次
這11個一層農村自建房別墅火爆了朋友圈!我最喜歡戶型十!你呢
閱讀次數:750268次
農村6萬元建一層小別墅圖,你敢相信嗎
閱讀次數:567686次
農村5萬塊就能自建房,6套普通房子設計圖分享,你沒看錯!
閱讀次數:419410次
8套農村漂亮三間平房圖片,非常適合在農村修建!
閱讀次數:411197次
農村自建房化糞池怎么做?附方案及施工過程
閱讀次數:391783次
農村一層三間平房設計圖,告別土氣養老房,讓人忍不住點贊
閱讀次數:350581次
新農村二層樓房圖片造價12萬,挑一套回家建房吧!
閱讀次數:349126次
