
|
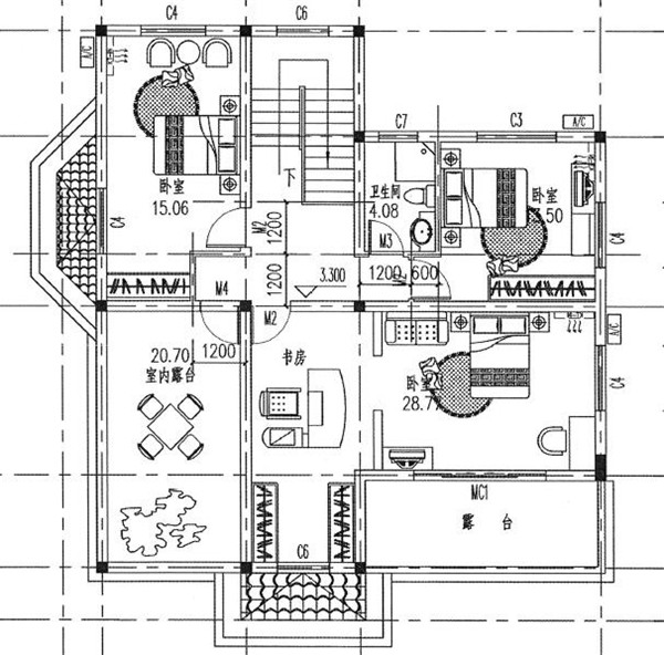
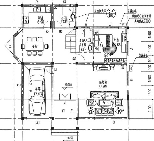
雖然現在農村生活條件越來越好,但拿出幾十萬建房,對于大部分農村朋友還是覺得壓力比較大,小編這次精挑5款農村二層自建別墅方案,農民朋友可以放心建,主體造價20萬左右。 第一款:130平農村兩層房屋設計圖 一層:門廳、起居室、車庫、臥室、衛生間、餐廳、廚房、衛生間; 二層:露臺、室內露臺、書房、3個臥室、衛生間;
第二款:二層地中海別墅設計方案 一 層:客廳、臥室、廚房、餐廳、衛生間、儲物間; 二 層:臥室x3、衛生間、大露臺、陽臺;
一 層:玄關、客廳、臥室、廚房、餐廳、臥室、衛生間、車庫; 二 層:休息區、主臥(帶衛生間)、臥室x2、書房、露臺;【參照一層,可以設置獨立衛生間】
第五套:130平二層農村自建房屋設計圖 一層戶型:玄關、客廳、餐廳、廚房、衛生間、臥室(衛生間)、儲藏間(樓梯下面); 二層戶型:客廳、主臥(帶衛生間和書房或衣帽間)、臥室x2、衛生間、露臺、陽臺;
圖紙之家-專注農村別墅/自建房設計18年,集合國內200余位經驗豐富的設計師,被評為口碑最好的農村建筑設計公司! |

帶庭院的農村一層別墅圖紙設計,外觀時尚好看
占地:多戶型可選
一層共用,二層兄弟雙拼的二層別墅設計圖
占地:182.48平方米
經典四合院別墅設計圖,復式挑空客廳讓四合院更高端
占地:175平方米左右
二層帶地下室樓房設計方案,效果圖+全套施工圖
占地:160平方米
3款簡單舒適二層別墅設計圖,低調配色,造型簡單大氣
占地:多戶型可選
實用三層新農村住宅設計圖,鄉村別墅設計圖(含外觀效果圖)
占地:102.34平方米
簡簡單單一層農村自建別墅方案,布局緊湊又不擁擠
占地:133.55平方米
150平米一層7字型別墅設計方案,功能齊全舒適簡約,設計感十足
占地:154.48平方米
經濟、不張揚!簡單二層別墅設計圖,農村建房直接抄作業
占地:198.58平方米
帶地下室+挑空客廳,農村三層洋樓別墅誰家圖在
占地:97.74平方米
100平方米新農村二層別墅設計圖紙,帶屋頂露臺
占地:100平方米
100平方米二層中式小別墅設計圖紙級效果圖片
占地:99平方米
大戶型三層別墅設計圖,高貴大氣,占地面積將近300平
占地:273.33平方米
帶大露臺二層現代風別墅設計圖,去繁從簡,好看不過時
占地:122.25平方米
新農村田園風格兩層半別墅設計圖,外觀造型非常漂亮
占地:147.8平方米
農村簡單雙拼小戶型,簡單適用,客廳中空,總占地210平方米
占地:210平方米
四開間一層自建房設計圖,四臥二廳+棋牌室+書房
占地:181.29平方米
農村15萬元一層半小樓圖,最新的戶型設計
占地:182.31平方米
全網都在抄的二層別墅!爆款12米面寬設計戶型太實用
占地:139.51平方米
農村建房的“面子天花板”!新中式簡歐結合三層別墅,進門就被
占地:225.98平方米
推薦:10套新農村自建房設計圖,2026年最新設計
閱讀次數:4825737次
100套鄉村別墅圖片大全,2026年最新設計
閱讀次數:2492203次
6款農村蓋一層平房的設計圖,10萬元就能建起來
閱讀次數:1852637次
這11個一層農村自建房別墅火爆了朋友圈!我最喜歡戶型十!你呢
閱讀次數:750268次
農村6萬元建一層小別墅圖,你敢相信嗎
閱讀次數:567686次
農村5萬塊就能自建房,6套普通房子設計圖分享,你沒看錯!
閱讀次數:419410次
8套農村漂亮三間平房圖片,非常適合在農村修建!
閱讀次數:411197次
農村自建房化糞池怎么做?附方案及施工過程
閱讀次數:391783次
農村一層三間平房設計圖,告別土氣養老房,讓人忍不住點贊
閱讀次數:350581次
新農村二層樓房圖片造價12萬,挑一套回家建房吧!
閱讀次數:349126次
