
|
離去現代都市的喧鬧,體會平靜的幸福,和親人好朋友一起返回故鄉。到鄉下生活吧,看一看布滿翠綠色的小山坡,看一看大豐收的原野,聞一聞芬芳混和在空氣中。用生活的設計語言,修建舒適又高雅的農村自建房。 別墅圖一介紹:新中式二層帶小院戶型住宅的主體采用層次化的材料搭配,主體為米黃真石漆,局部的木料點綴,配以房檐、圍墻、陽臺烘托新中式氣氛。二層陽臺玻璃圍欄,不但美觀大方,還能起到一定的保護作用。小庭院為主要活動區域,設置一個戶外休閑亭,一方面可為戶外品茶提供場所,閑談好不愜意。另外一方面能夠滿足家中老人的生活習慣,在小院里種蔬菜、養雞鴨也是很好的選擇。 占地面積:19.76m*13.86m,160.48平方米左右;
正面效果圖
正面效果圖
側面效果圖
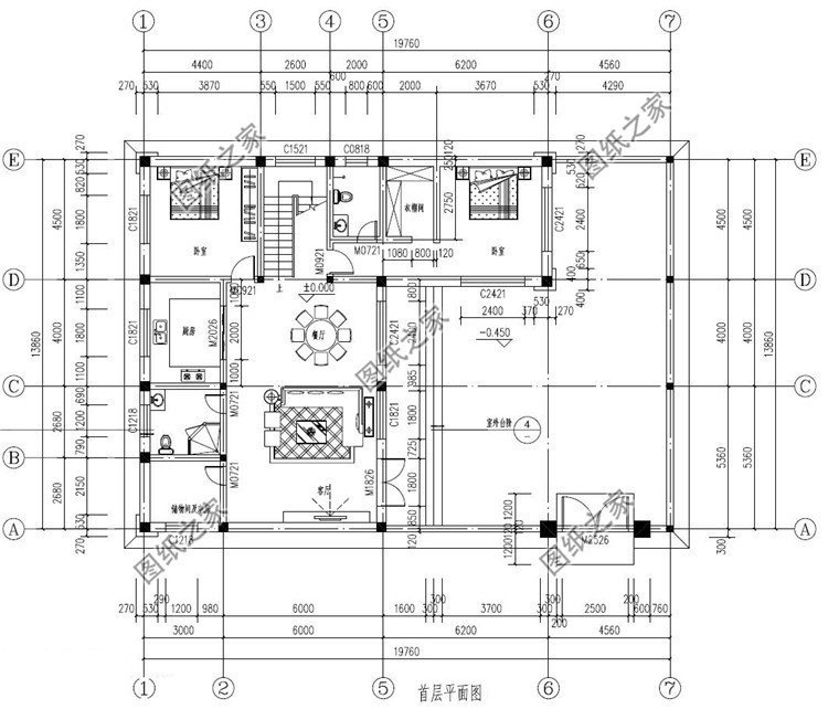
一層戶型圖 一層戶型:客廳、廚房、餐廳、臥室(帶衣帽間、衛生間)、臥室、儲藏間、衛生間;
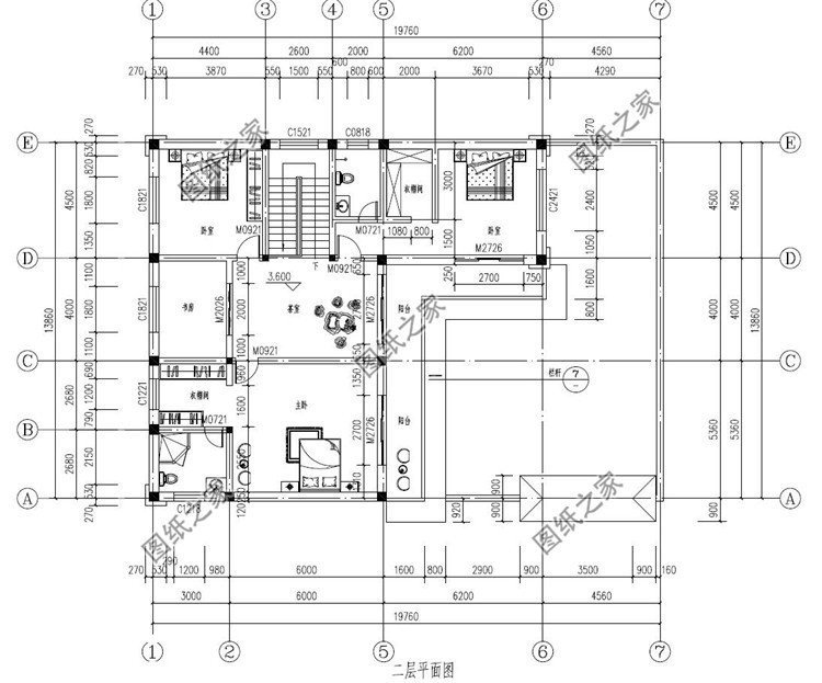
二層戶型圖 二層戶型:茶室、書房、臥室(帶衣帽間、衛生間)、臥室、陽臺; 別墅圖二介紹:農村復式挑空客廳二層四合院設計圖紙,復式兩層四合院戶型圖對稱的造型設計,簡單化構造,施工簡易。深灰色和乳白色二種色彩搭配,簡約中透漏著歷史悠久的文化藝術氣場,二樓陽臺出了木格柵的設計方案,具有了不錯的裝飾效果。入戶口寬敞的庭院,夏天納涼,冬天賞雪,房間內透亮光亮,光照充足,養些花草樹木很養眼的。庭院進大客廳,大客廳里的布藝沙發和飯店是招待親朋好友的好去處。二層的生活露臺總面積寬闊,冬天的午后沐浴在陽光下的感覺不要太舒服,也能成為一個很好的觀景臺在視線上邊寬闊明亮。四室二廳,一家三口,符合日常生活需要。 占地面積:17.2m*11.26m,141.76平方米左右; 建筑層高:二層; 建筑高度:9.5米(含屋頂);
別墅效果圖 設計功能:
一層平面圖 一層戶型:客廳、廚房、餐廳、臥室x3、衛生間;
二層平面圖 二層戶型:客廳上空、臥室(帶衛生間)、臥室、露臺; 別墅圖三介紹:兩層新中式別墅帶庭院選用了中式中較常用的對稱設計方案使房屋更為端莊,突顯歷史的厚重感,頂層的露臺,與庭院相配搭相輔相成,使居住在作用上十分完善。墻體為白色的裝飾物,配上藍房頂,清新自然的感覺撲面而來,正面圍墻上有著兩個龍型浮雕圖案十分威風凜凜。中式住宅注重精美,華麗,是對生活品質的了解與重視。總體合理布局對稱性均衡,擺正穩妥,在裝飾設計細節方面上尊崇傳統文化,窗花,坡屋頂,雕花柵欄,反復轉變,凸顯新中式藝術美學精神實質。 占地面積:18m*13m,181平方米; 建筑層高:二層; 建筑高度:8.7米(含屋頂);
正面效果圖
側面效果圖
鳥瞰效果圖 設計功能:
一層平面圖 一層戶型:臥室(帶衛生間)X2,客廳,儲藏間,衛生間,洗衣間,臥室,庭院,餐廳,廚房 ;
二層平面圖 二層戶型:臥室(帶衛生間)X2,客廳,書房,走道X3,庭院上空,臥室,露臺; 圖紙之家-專注農村別墅/自建房設計18年,集合國內200余位經驗豐富的設計師,被評為口碑最好的農村建筑設計公司! |

農村13萬元二層小樓圖,簡單易建,造價低
占地:110平方米
廚房餐廳在配房的歐式三層農村別墅設計方案,華麗又宜居
占地:177.58平方米
廚房在前,簡約歐式二層農村自建別墅設計圖,戶型個性
占地:143.69平方米
100平方米新農村二層別墅設計圖紙,帶屋頂露臺
占地:100平方米
豪華大氣三層農村房屋設計圖,對稱的主體設計大氣恢宏
占地:240平方米
人氣頗高的三層新中式別墅方案,五種戶型,五種尺寸
占地:120-165平方米
鄉村兄弟二層小戶型雙拼房屋別墅設計圖,造價低,面積小
占地:多種戶型
2026最火的現代別墅設計圖農村三層戶型,帶地下室
占地:119.79平方米
中式二層三合院設計圖紙含外觀效果圖片,大氣又實用
占地:216.04平方米
經典農村三層樓房設計圖,10個不同尺寸戶型,各種戶型供您選擇
占地:多種
一二層都帶廚房餐廳的獨棟二層別墅設計圖,帶雙廚房
占地:143.68平方米
300平大戶型豪華三層別墅設計圖,帶總統套房
占地:300平方米
農村一層小別墅設計圖,經濟大氣,16米乘9米
占地:124.12平方米
開間13米左右新農村2層自建房別墅戶型設計圖,簡潔實用
占地:170平方米
鄉村高檔四層豪華別墅自建房設計圖,一層不帶餐廳廚房戶型
占地:147平方米
鄉村兩層半150平帶閣樓別墅房屋設計圖,客廳大、臥室多
占地:150平方米
農村一層中式三合院太香了!白墻黛瓦,有院有景超宜居
占地:364.72平方米
占地130平三層現代別墅設計圖方案,帶電梯和地下室設計
占地:134.75平方米
適合農村建造的二層房屋設計圖紙及效果圖,帶悶頂層,占地15
占地:150平方米
四層(三層半)豪華歐式別墅房屋設計圖,外觀高端、大氣
占地:150平方米
推薦:10套新農村自建房設計圖,2026年最新設計
閱讀次數:4825737次
100套鄉村別墅圖片大全,2026年最新設計
閱讀次數:2492203次
6款農村蓋一層平房的設計圖,10萬元就能建起來
閱讀次數:1852637次
這11個一層農村自建房別墅火爆了朋友圈!我最喜歡戶型十!你呢
閱讀次數:750268次
農村6萬元建一層小別墅圖,你敢相信嗎
閱讀次數:567686次
農村5萬塊就能自建房,6套普通房子設計圖分享,你沒看錯!
閱讀次數:419410次
8套農村漂亮三間平房圖片,非常適合在農村修建!
閱讀次數:411197次
農村自建房化糞池怎么做?附方案及施工過程
閱讀次數:391783次
農村一層三間平房設計圖,告別土氣養老房,讓人忍不住點贊
閱讀次數:350581次
新農村二層樓房圖片造價12萬,挑一套回家建房吧!
閱讀次數:349126次
