
|
在城市中生活久了,許多人的內心中還是渴望農村老家平淡日子,使得越來越多的選擇回鄉建房。在農村建房不得不提大火的自建別墅了,其中歐式建筑風格一直都是主流。它以設計精良的外觀,布局考究的室內環境收獲到了許多人的喜愛。本期小編就向大家伙們推薦三款歐式農村別墅設計,感興趣的朋友們可以一起來看一看! 別墅圖一展示:占地面積:11.1m*12m,125平方米左右; 建筑層高:二層; 建筑高度:9.95米(含屋頂);
別墅效果圖
鳥瞰效果圖
背面效果圖 設計功能:
一層戶型圖 一層戶型:客廳、廚房、餐廳、臥室x2、衛生間;
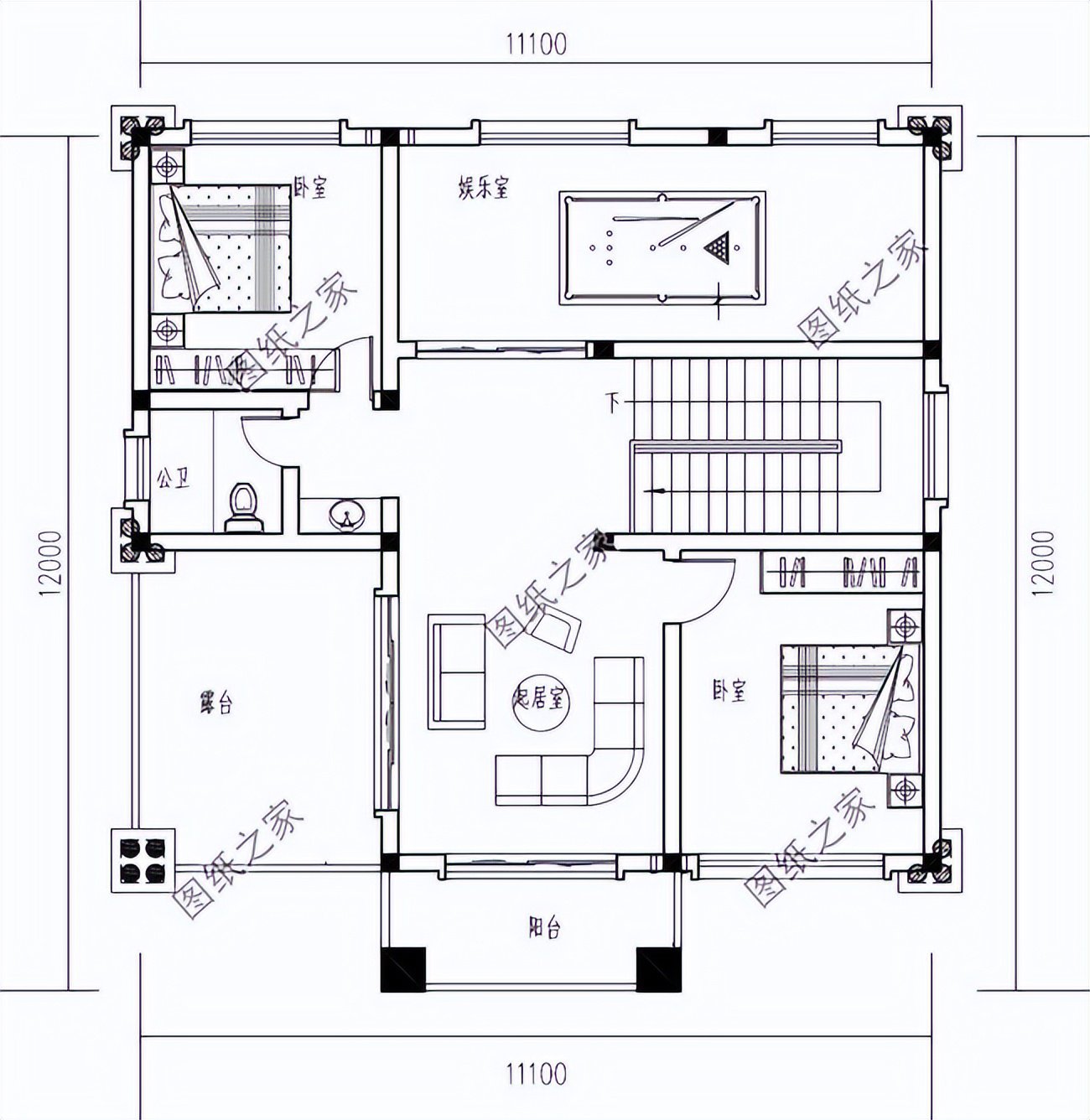
二層戶型圖 二層戶型:起居室、臥室x2、衛生間、娛樂室、陽臺、露臺; 別墅圖二展示:占地面積:10.76m*13.36m,124.3平方米左右; 建筑層高:二層; 建筑高度:9.231米(含屋頂);
別墅效果圖 設計功能:
一層戶型圖 一層戶型:客廳、臥室x3、衛生間;
二層戶型圖 二層戶型:起居室、臥室x3、衣帽間、衛生間、露臺; 別墅圖三展示:占地面積:12.8m*12.5m,147.8平方米左右;
別墅效果圖
一層戶型圖
二層戶型圖 二層戶型:臥室(帶衛生間)x4、露臺; 圖紙之家-專注農村別墅/自建房設計18年,集合國內200余位經驗豐富的設計師,被評為口碑最好的農村建筑設計公司! |

240平方米新農村四合院兩層樓房施工設計圖紙帶外觀圖
占地:234平方米
三間三層房子設計圖,高端三層樓房設計圖,三層兩個大露臺
占地:170平方米
兄弟合建房新農村三層雙拼別墅建筑圖紙及效果圖,300平方米
占地:301平方米
村里蓋房圖紙大廳挑空的三層別墅設計圖,面寬不到10米
占地:122.4平方米
農村四間二層小洋樓設計圖,歐式別墅、現代洋氣
占地:200平方米
2026年最新款四間二層別墅設計圖,15米乘13米
占地:171.01平方米
大氣自建三層雙拼別墅戶型圖方案,完美的戶型就是它
占地:287平方米
150平方米大平層別墅設計圖,時尚大氣舒適實用
占地:149.43平方米
面寬20米四開間二層別墅,火爆全村的戶型,美好生活的起點
占地:245.73平方米
農村25萬別墅款式二層自建房設計圖,外觀簡約大氣
占地:多種戶型
農村四間房屋設計圖經典戶型,這樣設計美觀、實用
占地:169平方米
帶堂屋二層小別墅設計圖紙帶外觀圖,13.6米x9米
占地:122.4平方米
帶車庫四層別墅外觀效果圖及設計圖紙,戶型方正通透
占地:115平方米
新中式高端三層雙拼自建房別墅設計圖,豪華霸氣的外觀
占地:256.02平方米左
帶配房的農村三層別墅設計圖,全家享精致生活
占地:167.29平方米
新中式徽派帶露臺別墅設計圖,構思精巧,自然得體
占地:124.82平方米
四間兩層別墅房屋設計圖,外觀效果圖好看
占地:235平方米
歐式大氣新農村三層別墅豪宅設計圖,外觀高端,對稱設計
占地:225平方米左右
185平方米二層自建別墅設計施工圖紙及外觀效果圖,15x13米
占地:186平方米
小戶型三層別墅房屋設計圖紙,占地80多平米,麻雀雖小五臟俱全
占地:80平方米
推薦:10套新農村自建房設計圖,2026年最新設計
閱讀次數:4825737次
100套鄉村別墅圖片大全,2026年最新設計
閱讀次數:2492203次
6款農村蓋一層平房的設計圖,10萬元就能建起來
閱讀次數:1852637次
這11個一層農村自建房別墅火爆了朋友圈!我最喜歡戶型十!你呢
閱讀次數:750268次
農村6萬元建一層小別墅圖,你敢相信嗎
閱讀次數:567686次
農村5萬塊就能自建房,6套普通房子設計圖分享,你沒看錯!
閱讀次數:419410次
8套農村漂亮三間平房圖片,非常適合在農村修建!
閱讀次數:411197次
農村自建房化糞池怎么做?附方案及施工過程
閱讀次數:391783次
農村一層三間平房設計圖,告別土氣養老房,讓人忍不住點贊
閱讀次數:350581次
新農村二層樓房圖片造價12萬,挑一套回家建房吧!
閱讀次數:349126次
