
|
農村美麗的自然風景,清新的空氣,純樸的民風都是大城市中很難見到的。越來越多的人看中了這幾點都選擇回到農村老家建造房屋。說起農村建房不得要提到農村別墅的發展,近幾年的農村住宅都換成了各式各樣的農村別墅,它比傳統的紅磚房更加美觀室內布局可根據戶主的需隨意搭配從而能最大的保證戶主的日常生活。本期小編就整理了幾款別具一格的農村別墅設計,感興趣的朋友們一起來看一看吧! 別墅圖一展示:大氣方便又實用外觀造型簡單大方,線條干凈利落,整體藝術感十足;特別適合喜歡中式又追求個性的建房者,因為兩種風格完全相融。外墻采用白色涂料,屋頂采用灰色琉璃瓦,多個坡頂,高低有序,層次分明。別墅占地方正,四平八穩,多窗的風格保障室內通風,也增強視覺效果。
別墅效果圖
一層戶型圖
別墅圖二展示:現代風格的小別墅越來越受到歡迎,它時尚漂亮,通透明亮,大大的落地窗,視野開闊,能夠完全地看到外面的景色,與大自然融為一體,也具有現代科技感,讓人心胸寬廣,心情愉悅,引人注目。 占地面積:15.5m*12.9m,179平方米左右; 建筑層高:二層; 建筑高度: 11.149米(含屋頂);
二層戶型圖 設計功能:
一層戶型圖 一層戶型:客廳、書房(可自由安排)、廚房、餐廳、臥室(帶衛生間)、衛生間、儲藏室;
二層戶型圖 二層戶型:臥室x4(帶衛生間)、陽臺;
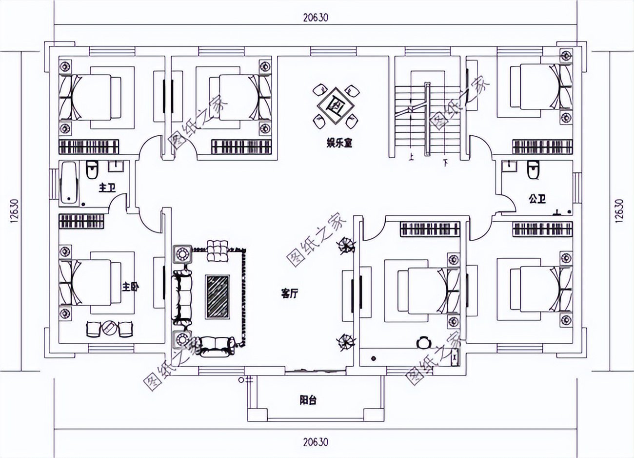
閣樓平面圖 閣樓戶型:套間臥室x2、衛生間、衣帽間x2(可自由安排); 別墅圖三展示:這棟小別墅造型結構精致端莊,外立面中加入石刻裝飾,大落地窗加上螺旋紋裝飾,顯得沉穩大氣,別具一格的風味,灰色的坡屋頂,經典而養眼,體現了自然田野之中的悠閑自在。 占地面積:20.63m*12.63m,265平方米左右; 建筑層高:二層; 建筑高度:10.63米(含屋頂);
正面效果圖
背面效果圖 設計功能:
一層戶型圖 一層戶型:客廳、廚房、餐廳、主臥(帶衛生間)、臥室x4、衛生間;
二層戶型圖 二層戶型:客廳、娛樂室、臥室(帶衛生間)、臥室x5、衛生間、陽臺; 圖紙之家-專注農村別墅/自建房設計18年,集合國內200余位經驗豐富的設計師,被評為口碑最好的農村建筑設計公司! |

高端大氣的三層新中式合院別墅設計圖紙及外觀效果圖
占地:203.4平方米
占地百平三層歐式別墅設計圖,回到家鄉建一棟,大氣美觀有內涵
占地:99.94平方米
地中海風格二層別墅設計圖及效果圖,外觀有格調
占地:125平方米
村里蓋房圖紙大廳挑空的三層別墅設計圖,面寬不到10米
占地:122.4平方米
面寬16米三層法式別墅設計圖,設計新穎別致,建成后美不勝收
占地:162.07平方米
農村三間四層樓房設計圖,農村輕奢型四層別墅
占地:160平方米
200平方米農村二層中式四合院設計圖,含外觀圖片
占地:200平方米
帶庭院中式二層四合院別墅設計效果圖片,方方正正
占地:404平方米
農村二層半新中式小別墅設計圖(帶閣樓層),二層半自建房戶型
占地:144平方米
125平方米復式三層別墅房屋設計圖,房間多,采光好
占地:125平方米
新中式二層農村別墅設計圖紙及外觀圖,面寬15米左右
占地:148.86平方米
2款現代風格農村兩層別墅設計圖,時尚漂亮
占地:多戶型可選
農村自建二層樓房設計圖及效果圖,二層房屋圖推薦
占地:105平方米
260平方米仿歐式二層別墅設計圖紙及效果圖,22X12米
占地:260平方米
占地170平米2026新款三層別墅設計圖片及設計方案
占地:170平方米
面寬18米二層新中式別墅圖紙設計,復式戶型,帶堂屋
占地:269.83平方米
歐式小別墅設計圖紙帶效果圖,二層歐式小別墅設計方案展示
占地:166平方米
農村兩層帶地下室別墅設計圖,還帶庭院規劃,適合農村建
占地:144.5平方米
現代二層農村別墅全套設計圖,大旋轉露臺+超大中空客廳
占地:133平方米
被包工頭夸爆的二層別墅戶型!建好未來幾年必火
占地:189.98平方米
推薦:10套新農村自建房設計圖,2026年最新設計
閱讀次數:4825737次
100套鄉村別墅圖片大全,2026年最新設計
閱讀次數:2492203次
6款農村蓋一層平房的設計圖,10萬元就能建起來
閱讀次數:1852637次
這11個一層農村自建房別墅火爆了朋友圈!我最喜歡戶型十!你呢
閱讀次數:750268次
農村6萬元建一層小別墅圖,你敢相信嗎
閱讀次數:567686次
農村5萬塊就能自建房,6套普通房子設計圖分享,你沒看錯!
閱讀次數:419411次
8套農村漂亮三間平房圖片,非常適合在農村修建!
閱讀次數:411197次
農村自建房化糞池怎么做?附方案及施工過程
閱讀次數:391783次
農村一層三間平房設計圖,告別土氣養老房,讓人忍不住點贊
閱讀次數:350581次
新農村二層樓房圖片造價12萬,挑一套回家建房吧!
閱讀次數:349126次
