
|
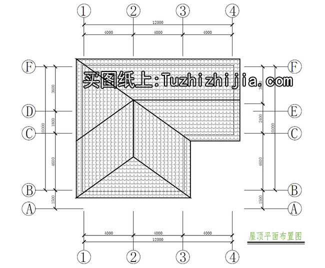
本戶型為占地120平方米的農村房子20萬以下圖片,帶屋頂花園,造價20萬左右,內部設計考慮風水布局,絕對風水好,120平米的設計為主流面積,戶型是經典戶型,設計師主推。
占地面積:12m*10m,120平方米左右;【圖紙尺寸可根據實際情況修改】 建筑層高:二層; 建筑高度:8.60米(含屋頂); 結構形式:磚混結構; 設計功能: 一層戶型設計:客廳(堂房)、臥室、廚房、餐廳、衛生間、雜物房 二層戶型設計:客廳、娛樂室、臥室x3、露臺 圖紙之家-專注農村別墅/自建房設計18年,集合國內200余位經驗豐富的設計師,被評為口碑最好的農村建筑設計公司! |

經典的農村三層小樓房設計圖,外觀圖片時尚、精致
占地:100平方米
100平新農村三層復式房屋別墅設計圖紙,造價30萬左右
占地:106平方米
150平方米自建現代二層別墅施工設計圖帶外觀圖,15x10米
占地:多戶型可選
中式古風別墅設計圖,一層三合院設計,經濟舒適,時尚與傳統的
占地:275.7平方米
農村二層半樓房設計圖及效果圖,歐式風格
占地:150平方米
鄉村三層別墅CAD建筑設計圖,110平方米戶型,帶效果圖和全套施工
占地:110平方米
14x12.5米二層農村別墅設計圖,布局完美獨立,顏值高又實用
占地:153.95平方米
2026年最新款四間二層別墅設計圖,15米乘13米
占地:171.01平方米
150平米農村兩層樓房設計圖,簡單大氣時尚
占地:150平方米
20萬左右農村雙拼別墅住宅設計圖,簡單小戶型設計
占地:120平方米
2026最好看的農村三層樓房圖片及施工圖紙,客廳寬敞
占地:120平方米
160平米三層別墅設計圖,功能齊全,外觀漂亮,適合和父母同住
占地:160平方米
自建小樓二層農村別墅設計圖,大氣好看,13米乘14米
占地:181.62
農村二層帶電梯別墅設計圖,歐式風格,避免老人上下樓的麻煩
占地:179.94平方米
四層自建別墅設計圖,有車庫帶露臺,時尚大氣給你一個五星級的
占地:152.51平方米
面寬10米左右的三層農村別墅設計案例,低調又奢華
占地:120平方米
140平二層帶閣樓別墅設計方案圖,外觀圖片色彩明快
占地:140平方米
35萬內三層自建別墅設計圖,外觀美觀,戶型舒適
占地:135平方米
農村一層養老別墅設計圖,兩個戶型方案可選
占地:多種戶型
偏中式徽派的二層房屋農村別墅設計圖,馬頭墻小青瓦
占地:123.36平方米
推薦:10套新農村自建房設計圖,2026年最新設計
閱讀次數:4825737次
100套鄉村別墅圖片大全,2026年最新設計
閱讀次數:2492203次
6款農村蓋一層平房的設計圖,10萬元就能建起來
閱讀次數:1852637次
這11個一層農村自建房別墅火爆了朋友圈!我最喜歡戶型十!你呢
閱讀次數:750268次
農村6萬元建一層小別墅圖,你敢相信嗎
閱讀次數:567686次
農村5萬塊就能自建房,6套普通房子設計圖分享,你沒看錯!
閱讀次數:419410次
8套農村漂亮三間平房圖片,非常適合在農村修建!
閱讀次數:411197次
農村自建房化糞池怎么做?附方案及施工過程
閱讀次數:391783次
農村一層三間平房設計圖,告別土氣養老房,讓人忍不住點贊
閱讀次數:350581次
新農村二層樓房圖片造價12萬,挑一套回家建房吧!
閱讀次數:349126次
