
|
農村建房子在選擇戶型時往往會對同一戶型的不同外觀搭配有些糾結,下面這兩套別墅戶型就是這樣,它們是同一個戶型,有兩個不同的外觀,很多人都喜歡第二套,難道只是因為它帶一個小院?
此戶型占地尺寸13X11米,建筑面積241平方米。為滿足不同人的審美需求,設計師設計了兩種配色方案。第一種如上圖,紅色坡屋頂,白色乳膠漆和米黃色文化石相間的外墻,色彩分明、清新靚麗
第二種是上面這套,它的配色相對低調,暗紅色屋頂,外墻配色也不夸張,色調相近。在農村,這樣低調的配色還是很受老百姓歡迎的,這樣的配色不管住幾年也不會很快就過時,并且干凈、易打理。另外,它還帶一個小院,小院里有停車位、花園和菜園,生活和諧,布局好。所以受到很多人的喜歡。
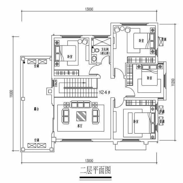
平面布局圖: 此戶型布局好,空間使用率高,一層設有門廊、客廳、餐廳、廚房、洗衣房、放農具和柴的倉庫和2個臥室。
此戶型實用性很好,二層主要用于居住,設有4個臥室、1起居室、1衛生間和一個露臺。休閑、晾曬都可以在這里進 圖紙之家-專注農村別墅/自建房設計18年,集合國內200余位經驗豐富的設計師,被評為口碑最好的農村建筑設計公司! |

最新歐式三層別墅設計圖紙,超漂亮,預算30到40萬
占地:160平方米
中式兄弟雙拼別墅設計圖紙,類似合院造型,美爆了
占地:221.9平方米
2026二層農村新款別墅設計圖,帶車庫,帶鍋爐房
占地:180平方米
130平方米新農村三層房屋設計圖紙,外觀簡單大方
占地:130平方米
辦公居住共用的一層別墅設計圖,簡約優雅,精致生活新體驗
占地:265.3平方米
13X13米新農村中式風三層別墅設計方案,內部布局緊湊溫馨
占地:168.43平方米
120平米二層別墅樓設計圖,簡約省錢也能建的漂亮
占地:121.74平方米
歐式四層(三層半)獨棟別墅設計圖復式,設計豪華時尚
占地:194平方米
二層歐式別墅設計圖,挑空客廳+柴火灶,12.5米乘12米
占地:131.25平方米
135平復式別墅房屋設計圖,外觀時尚、漂亮
占地:135平方米
200平米二層自建房別墅設計圖,外觀漂亮布局實用
占地:207.09平方米
帶地下室獨棟三層高端別墅房圖紙設計圖,復式客廳旋轉樓梯
占地:146.145平方米
小面寬的農村簡單四層2建平屋頂別墅設計圖,農村自建房首選
占地:109.29平方米
農村15萬元二層小樓設計圖,15萬農村兩層小別墅圖片
占地:120平方米
大氣自建三層雙拼別墅戶型圖方案,完美的戶型就是它
占地:287平方米
一層帶閣樓農村別墅設計圖,多得一層可變空間,太值了!
占地:165.89平方米
經典農村三層樓房設計圖,10個不同尺寸戶型,各種戶型供您選擇
占地:多種
地中海風格二層別墅設計圖及效果圖,外觀有格調
占地:125平方米
二層新中式別墅設計施工圖,廚房在配房,占地140平米
占地:141平方米
仿古中式四合院別墅設計戶型圖,外觀圖古典風格
占地:524平方米
推薦:10套新農村自建房設計圖,2026年最新設計
閱讀次數:4825737次
100套鄉村別墅圖片大全,2026年最新設計
閱讀次數:2492203次
6款農村蓋一層平房的設計圖,10萬元就能建起來
閱讀次數:1852637次
這11個一層農村自建房別墅火爆了朋友圈!我最喜歡戶型十!你呢
閱讀次數:750268次
農村6萬元建一層小別墅圖,你敢相信嗎
閱讀次數:567686次
農村5萬塊就能自建房,6套普通房子設計圖分享,你沒看錯!
閱讀次數:419410次
8套農村漂亮三間平房圖片,非常適合在農村修建!
閱讀次數:411197次
農村自建房化糞池怎么做?附方案及施工過程
閱讀次數:391783次
農村一層三間平房設計圖,告別土氣養老房,讓人忍不住點贊
閱讀次數:350581次
新農村二層樓房圖片造價12萬,挑一套回家建房吧!
閱讀次數:349126次
