圖紙介紹:本戶型為預算15萬左右農村兩層小別墅設計方案(預算不含人工費),含全套施工圖+高清效果圖,本方案戶型簡單、實用,外觀美觀、耐看。
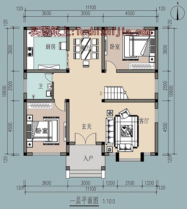
占地面積:11.1m*10.6m,120平方米左右;
建筑層高:二層(含悶頂層);
建筑高度:10.13米(含屋頂);
設計功能:
一層房屋戶型:玄關、客廳、餐廳、廚房、臥室x2、、衛生間;
二層房屋戶型:起居室、主臥(帶書房/衣帽間)、次臥x3、衛生間;
悶頂層
圖紙目錄:
建 筑 圖:建筑施工說明、建筑構造設計說明、一層平面圖、二層平面圖、屋頂平面圖、正立面圖、背立面圖、左立面圖、右立面圖、1-1剖面圖、門斗大樣圖、樓梯大樣圖、節點大樣圖、門窗表等;
結 構 圖:結構設計說明、結構常用大樣圖、基礎平面布置圖、一層頂梁結構平面圖、一層頂板結構平面圖、閣樓層梁結構平面圖、閣樓層板結構平面圖、坡屋頂梁結構平面圖、坡屋頂板結構平面圖、樓梯配筋大樣圖等;
給排水圖:給排水設計說明、一層給排水平面圖、二層給排水平面圖、屋頂給排水平面圖、衛生間給排水詳圖、給排水系統圖等;
電 氣 圖:電氣設計說明、配電系統圖、一層照明平面圖、二層照明平面圖、一層插座平面圖、二層插座平面圖、一層弱電平面圖、二層弱電平面圖、基礎接地平面圖、屋頂防雷平面圖等;
全套圖紙+高清效果圖,拿到即可施工!

































































































