圖紙介紹:新農村簡歐三層樓房設計圖,自建三層別墅施工設計圖及效果圖,經典的歐式外觀,人建人愛,戶型實用布局超贊的,村里蓋一棟鄉親都羨慕不已!紅色的坡屋頂,錯落有致,大露臺觀景視野極佳,樓上功能空間齊備,戶型方正舒適,外觀簡約耐看,造價實惠,絕對的小宅地蓋房的首選
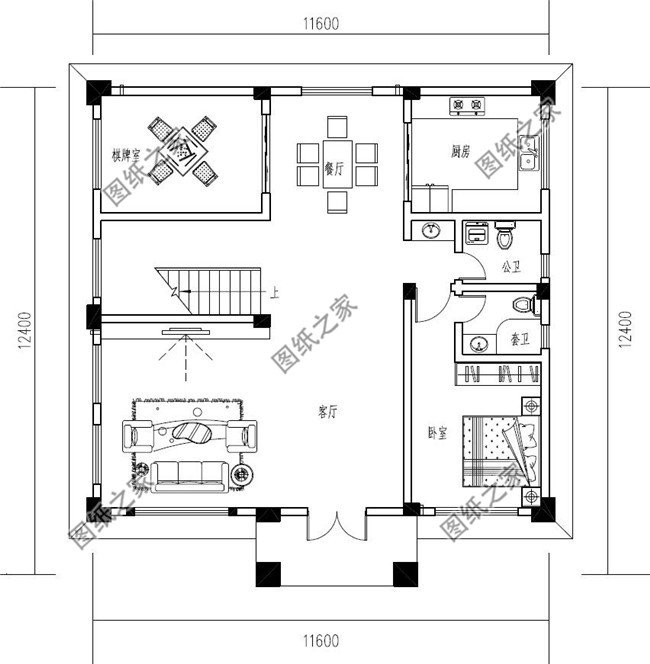
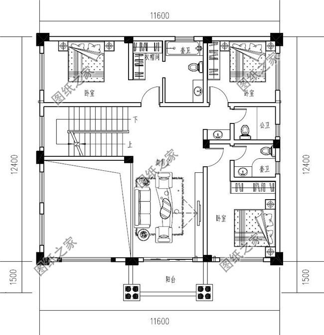
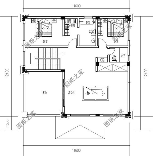
占地面積:11.6m*12.4m,126平方米左右;
建筑層高:三層;
建筑高度:12.3米(含屋頂);
設計功能:
一層戶型:客廳、餐廳、廚房、臥室(帶衛生間)、棋牌室、衛生間;
二層戶型:客廳上空、起居室、臥室(帶衛生間衣帽間)、臥室套衛、臥室、衛生間、陽臺;
三層戶型:活動廳、臥室(帶衛生間衣帽間)、臥室、衛生間、露臺;
圖紙目錄:
建 筑 圖:建筑設計說明、一層平面圖、二層平面圖、三層平面圖、屋頂平面圖、正立面圖、背立面圖、左立面圖、右立面圖、1-1剖面圖、樓梯大樣圖、門斗大樣圖、節點大樣圖、門窗詳圖、門窗表等;
結 構 圖:結構設計說明、基礎平面布置圖、基礎大樣圖、一層梁結構平面圖、二層梁結構平面圖、三層梁結構平面圖、屋頂梁結構平面圖、二層板結構平面圖、三層板結構平面圖、屋面板結構平面圖、樓梯大樣圖、節點大樣圖等;
給排水圖:給排水設計說明、一層給排水平面圖、二層給排水平面圖、三層給排水平面圖、屋頂給排水平面圖、衛生間大樣圖、給排水系統圖等;
電 氣 圖:電氣設計說明、配電系統圖、弱電系統圖、配電干線系統圖、一層照明平面圖、二層照明平面圖、三層照明平面圖、一層插座平面圖、二層插座平面圖、三層插座平面圖、一層弱電平面圖、二層弱電平面圖、三層弱電平面圖、接地平面圖、屋頂防雷平面圖等;
本套方案包含全套A3設計圖+彩色效果圖。



































































































