
|
平面布局圖: 此戶型是個很實用的戶型,一層就有3個臥室,陽面的臥室有衣帽間,可做老人房,老人房對面就是衛生間和盥洗室,方便老人行動。一層只有餐廳、沒有客廳,但是餐廳足夠大,做客廳使用也沒有什么不妥的地方。
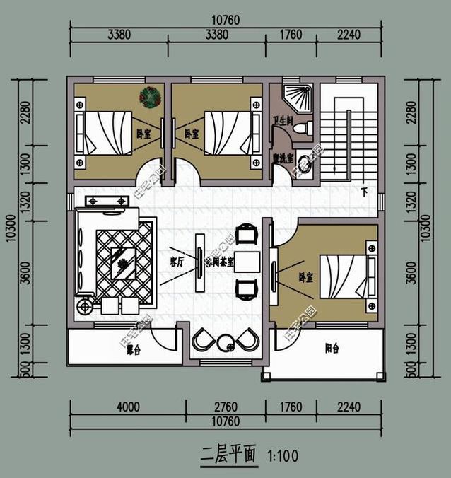
二層在同樣的位置同樣有3個臥室,這層不僅有客廳,還有休閑茶室,二層安靜又干凈,家人在一起的活動可以在這層的客廳進行。此外,這層還有一個陽臺和一個露臺,居住起來很舒適。
大家感覺這套別墅怎么樣? 圖紙之家-專注農村別墅/自建房設計18年,集合國內200余位經驗豐富的設計師,被評為口碑最好的農村建筑設計公司! |

農村五間房子設計圖,大戶型別墅設計圖推薦
占地:240平方米
方正對稱二層農村自建別墅施工圖,經濟實用舒適大氣
占地:129.6平方米
五間二層別墅設計圖紙,樓梯設計的無比大氣
占地:300平方米
爆款農村一層別墅圖紙設計,看過的都說漂亮實用
占地:144.91平方米
超現代風格平頂別墅設計圖,外觀時尚,80、90很喜歡
占地:112.18平方米
經濟實惠一層戶型圖,農村養老房舒適至上,簡約而不失溫馨
占地:147.5平方米
140平方米農村三層復式房屋設計施工圖,開放式廚房
占地:143平方米
140平方米三層半新農村房屋別墅設計圖,帶車庫
占地:140平方米
帶車庫農村二層樓房設計圖,外觀漂亮,精致
占地:154平方米
農村三層復式自建樓房設計圖,外觀圖大氣
占地:130平方米
帶車庫鄉下雙拼別墅設計圖,三層造型漂亮大全
占地:256平方米
中式古風別墅設計圖,一層三合院設計,經濟舒適,時尚與傳統的
占地:275.7平方米
一層農村三合院平房設計圖,可以倆兄弟或和父母兒女一起住
占地:202.79平方米
三層新農村小別墅設計圖紙,占地120平米,客廳中空,帶大露臺
占地:120平方米
精致農村別墅圖,150平米一層三合院設計,四臥二廳舒適宜居
占地:149.43平方米
農村蓋房三層自建別墅設計圖紙,11米乘12米戶型方案
占地:132.55平方米
小型農村二層自建樓房設計圖,面寬10米小占地經濟
占地:78.54平方米
2026新款新式農村50萬三層別墅圖片,帶地下室,美觀大氣
占地:130平方米左右
現代風格精致兩層農村自建房住宅設計圖,帶儲藏室
占地:163平方米
農村120平米三間三層樓房設計圖紙,農村理想住房設計圖
占地:120平方米
推薦:10套新農村自建房設計圖,2026年最新設計
閱讀次數:4825737次
100套鄉村別墅圖片大全,2026年最新設計
閱讀次數:2492203次
6款農村蓋一層平房的設計圖,10萬元就能建起來
閱讀次數:1852637次
這11個一層農村自建房別墅火爆了朋友圈!我最喜歡戶型十!你呢
閱讀次數:750268次
農村6萬元建一層小別墅圖,你敢相信嗎
閱讀次數:567686次
農村5萬塊就能自建房,6套普通房子設計圖分享,你沒看錯!
閱讀次數:419410次
8套農村漂亮三間平房圖片,非常適合在農村修建!
閱讀次數:411197次
農村自建房化糞池怎么做?附方案及施工過程
閱讀次數:391783次
農村一層三間平房設計圖,告別土氣養老房,讓人忍不住點贊
閱讀次數:350581次
新農村二層樓房圖片造價12萬,挑一套回家建房吧!
閱讀次數:349126次
