圖紙介紹:帶車庫雙拼別墅設計圖,三層外觀造型設計,室內空間利用率高,不可多得的好戶型,別墅戶型占地面積適中,歐式的外觀,三層設計凸顯大氣,也保證了室內空間足夠大,占地方正,設計有車庫,平時會農村停車方便,入戶門廳用雙羅馬柱裝飾,豪華大氣,整體外墻用米棕色漲勢涂料裝飾,搭配棕色窗框層次豐富。紅色屋頂更顯明艷亮麗。三層兩個超大的露臺是亮點,用于晾曬的同時,還有露天環境用于休閑和賞景,再合適不過。
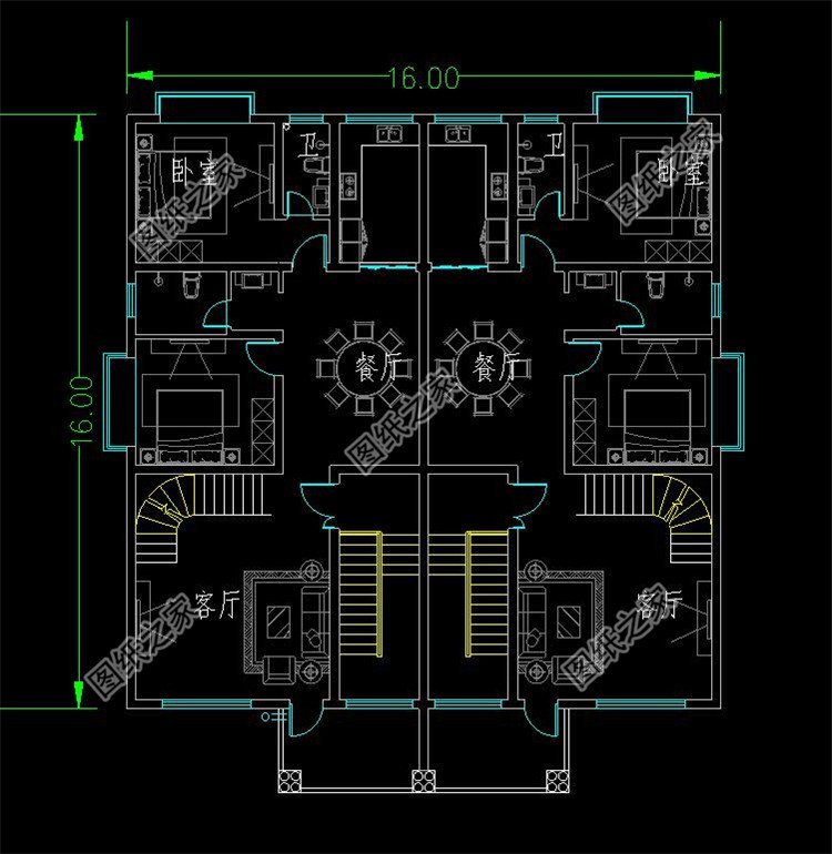
占地面積:16m*16m,256平方米,單戶128平左右;
建筑層高:三層;
建筑高度:14.335米(含屋頂);
設計功能:
一層:車庫、客廳、餐廳、廚房、臥室、衛生間;
二層:客廳、餐廳、廚房、臥室(帶衛生間)、臥室、衛生間;
三層:客廳、臥室x3、書房、衛生間、露臺;
圖紙目錄:
建 筑 圖:建筑施工說明、建筑構造設計說明、一層平面圖、二層平面圖、三層平面圖、屋頂平面圖、正立面圖、背立面圖、左立面圖、右立面圖、1-1剖面圖、樓梯大樣圖、節點大樣圖、門窗大樣圖、門窗表等;
結 構 圖:結構設計說明、大樣圖、基礎平面布置圖、一層柱配筋圖、二層柱配筋圖、三層柱配筋圖、一層頂梁平法施工圖、二層頂梁平法施工圖、頂層梁平法施工圖、一層頂板結構平面圖、二層頂板結構平面圖、頂層板結構平面圖、樓梯配筋圖等;
給排水圖:給排水設計說明、一層給排水平面圖、二層給排水平面圖、三層給排水平面圖、衛生間大樣圖、給排水系統圖等;
電 氣 圖:電氣設計說明、電氣設備材料表、等電位聯結做法、配電系統圖、弱電系統圖、配電干線系統圖、一層照明平面圖、二層照明平面圖、三層照明平面圖、一層插座平面圖、二層插座平面圖、三層插座平面圖、一層弱電平面圖、二層弱電平面圖、三層弱電平面圖、基礎接地平面圖、屋頂防雷平面圖等
本方案為A3施工圖+彩色效果圖,拿到即可施工。



























































































