
|
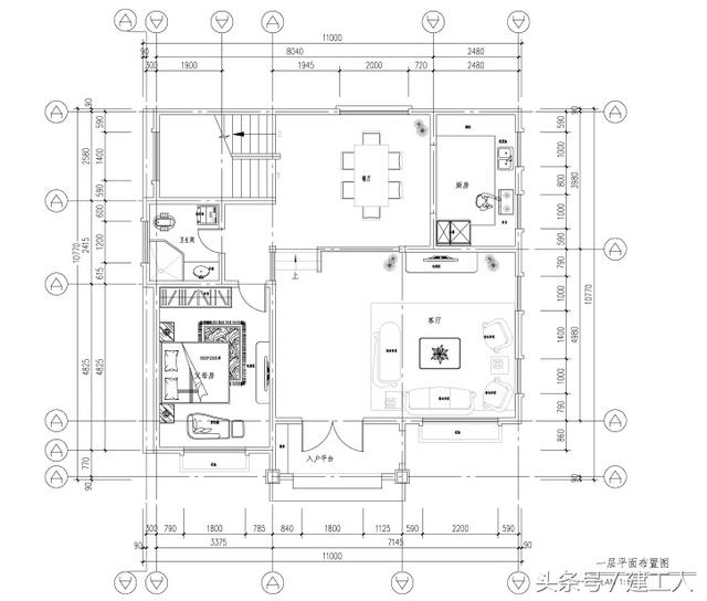
一層:入戶平臺、客廳、父母房、衛生間、餐廳、廚房; 二層:陽臺、客廳、主臥室、2個臥室、更衣室、2個衛生間、雜物間; 三層:活動室、衛生間、臥房、雜物間。 建筑規格:11x10.77米; 建筑層數:三層; 建筑高度:10.9米(含屋頂)坡屋頂; 建筑結構:磚混結構; 別墅占地面積:118.47平方米
別墅外觀效果:
圖紙之家-專注農村別墅/自建房設計18年,集合國內200余位經驗豐富的設計師,被評為口碑最好的農村建筑設計公司! |

小戶型二層農村別墅設計圖,占地140平經典漂亮
占地:139.54平方米
經典三層歐式造型別墅圖紙,功能房豐富,挑空客廳
占地:180平方米
300平大戶型豪華三層別墅設計圖,帶總統套房
占地:300平方米
帶柴火房農村一層自建房設計圖,戶型布局接地氣
占地:126.29平方米
兩層半20多萬復式農村自建房設計圖,經典不過時戶型
占地:120平方米
帶車庫簡約二層小別墅房屋設計圖紙,占地120平米,彎彎的樓梯打
占地:120平方米
農村三間三層豪宅設計圖,自建別墅推薦戶型,帶地下室
占地:170平方米
歐式三層農村別墅設計圖,占地130平方米自建房,低調又奢華鄉村
占地:129.8平方米
11×10米農村二層別墅圖,百平占地經典實用舒適大氣
占地:103.47平方米
帶車庫二層165平別墅房屋設計圖,含效果圖
占地:165平方米
新中式一層別墅設計圖紙,農村自建平房戶型方案圖
占地:183.7平方
實用型二層別墅設計圖,簡單大方最耐看,16.5米乘11米
占地:150.94平方米
農村自建三間三層樓房設計圖,帶露臺,經典實用
占地:135平方米
新農村帶陽臺三層樓房圖紙,占地180平米左右,豪華大氣
占地:180平方米
簡單漂亮實用的三層自建房設計圖,帶露臺,占地170平方米
占地:170平方米
占地90平米四層超現代風別墅設計圖,享受高品質生活
占地:3.76平方米
小戶型經濟型三層雙拼小別墅施工設計圖紙,單戶100平內
占地:150平方米
二層帶地下室樓房設計方案,效果圖+全套施工圖
占地:160平方米
新農村二層帶庭院的小別墅設計圖及效果圖
占地:137平方米
超實用超現代兩層自建小樓圖,純粹極簡風格
占地:184平方米左右
推薦:10套新農村自建房設計圖,2026年最新設計
閱讀次數:4825737次
100套鄉村別墅圖片大全,2026年最新設計
閱讀次數:2492203次
6款農村蓋一層平房的設計圖,10萬元就能建起來
閱讀次數:1852637次
這11個一層農村自建房別墅火爆了朋友圈!我最喜歡戶型十!你呢
閱讀次數:750268次
農村6萬元建一層小別墅圖,你敢相信嗎
閱讀次數:567686次
農村5萬塊就能自建房,6套普通房子設計圖分享,你沒看錯!
閱讀次數:419410次
8套農村漂亮三間平房圖片,非常適合在農村修建!
閱讀次數:411197次
農村自建房化糞池怎么做?附方案及施工過程
閱讀次數:391783次
農村一層三間平房設計圖,告別土氣養老房,讓人忍不住點贊
閱讀次數:350581次
新農村二層樓房圖片造價12萬,挑一套回家建房吧!
閱讀次數:349126次
