圖紙介紹:高端四間(小五間)兩層別墅設計圖紙,開間20米自建房設計效果圖,這棟小別墅造型結構精致端莊,外立面中加入石刻裝飾,大落地窗加上螺旋紋裝飾,顯得沉穩大氣,別具一格的風味,灰色的坡屋頂,經典而養眼,體現了自然田野之中的悠閑自在。
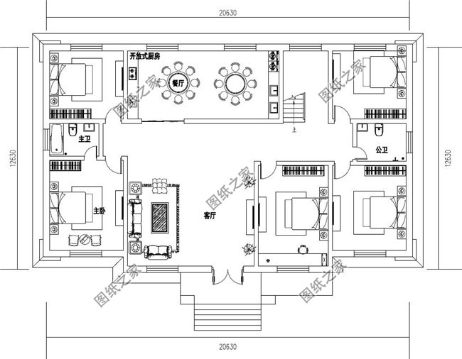
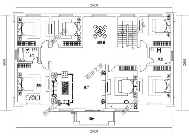
占地面積:20.63m*12.63m,265平方米左右;
建筑層高:二層;
建筑高度:10.63米(含屋頂);
設計功能:
一層戶型:客廳、廚房、餐廳、主臥(帶衛生間)、臥室x4、衛生間;
二層戶型:客廳、娛樂室、臥室(帶衛生間)、臥室x5、衛生間、陽臺;
圖紙目錄:
建 筑 圖:建筑設計說明、一層平面圖、二層平面圖、屋頂平面圖、正立面圖、背立面圖、左立面圖、右立面圖、1-1剖面圖、樓梯大樣圖、門斗大樣圖、節點大樣圖、門窗詳圖、門窗表等;
結 構 圖:結構設計說明、基礎平面布置圖、基礎大樣圖、一層梁結構平面圖、二層梁結構平面圖、、屋頂梁結構平面圖、二層板結構平面圖、屋面板結構平面圖、樓梯大樣圖、節點大樣圖等;
給排水圖:給排水設計說明、一層給排水平面圖、二層給排水平面圖、屋頂給排水平面圖、衛生間大樣圖、給排水系統圖等;
電 氣 圖:電氣設計說明、配電系統圖、弱電系統圖、配電干線系統圖、一層照明平面圖、二層照明平面圖、一層插座平面圖、二層插座平面圖、一層弱電平面圖、二層弱電平面圖、接地平面圖、屋頂防雷平面圖等;
本套方案包含全套A3設計圖+彩色效果圖。




































































































