
|
現在農村蓋房的人很多,是真的多,不信去農村走走看看,全都是水泥砂漿攪拌的聲音,施工隊忙著吆喝砌磚,房主也不能閑著,要招呼它們,開春果然是一個建房的好時機,今天圖紙之家想大家所想,給打算建房的老百姓整理了這8套新款農村三層樓房圖片展示,有喜歡的可要抓緊時間收藏了,說不準有適合自己的在這里面。
戶型一:
平面布局圖: 第一套戶型占地13X12米,布局方正規劃合理,上下水對其降低施工難度,法式風情彰顯的淋漓盡致。
戶型二: 第二套戶型面寬12米, 進深10米,占地12X10米,坡頂工藝,露臺展示,大理石工藝令外墻表面更顯別致。
平面布局圖:
戶型三: 第三套戶型占地10X12米,大面積使用落地窗使居室更加透亮,光照與通風都不在話下。
平面布局圖:
戶型四: 第四套戶型面寬8米,進深10米,占地面積僅需要80平米左右,二樓三樓多房間,更加符合農村人的生活習性。
平面布局圖:
戶型五: 第五套戶型設有車庫與雙露臺,9X13米布局,狹長地形,經過設計師合理規劃,令別墅更有一種生活感覺。
平面布局圖:
戶型六: 第6套戶型占地10X12米,現代風格為主,外墻無多色設計,很簡單大氣,室內布局也多以精簡為主,彰顯出不俗的設計功底。
平面布局圖:
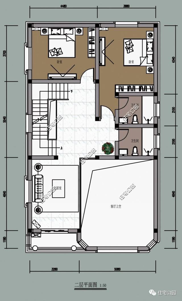
第七套: 第七套戶型占地12米x12米,占地面積145平方米,建筑面積354平方米,總高度12.6米,共設6室 5廳 5衛 1廚 1車庫 3陽臺 2露臺,適合三四代人居住。
平面布局圖:
第八套: 這最后一套戶型占地10米x12米,占地面積135㎡,建筑面積360㎡,總高度12.2m,共設7室 4廳 3衛 1廚 1書房 1陽臺 1露臺。
平面布局圖:
圖紙之家-專注農村別墅/自建房設計18年,集合國內200余位經驗豐富的設計師,被評為口碑最好的農村建筑設計公司! |

簡單二層農村別墅設計圖,占地適中,簡約造型,實用又經濟!
占地:128.4平方米
農村一層四開間自建別墅,美麗住宅如詩如畫里15米乘10米
占地:142平方米
農村四間一層房屋設計圖,160平方米,用來養老正合適!
占地:160平方米
最美中式農村別墅二層三間的房子圖,帶土灶房,娛樂室,大露臺
占地:180平方米
20萬以內二層歐式小別墅設計方案,全套施工圖+效果圖
占地:115平方米
雙拼豪華高端三層別墅設計圖,外觀效果圖大氣
占地:300平方米
獨棟三層樓房設計圖紙及效果圖,農村蓋房推薦
占地:125平方米
120平方房子設計圖及外觀圖片,12x10經典設計
占地:120平方米
2026最新款50萬左右農村三層別墅設計圖,客廳中空
占地:160平方米
平屋頂現代風格三層蓋別墅設計圖紙,面寬18米
占地:235.34平方米
回農村建養老房,還是一層平頂戶型最合適,不單單只是省錢
占地:102.24平方米
農村120方三層自建房子圖,好看又不貴的三層農村別墅
占地:120平方米
農村帶地下室二層半自建房屋設計圖,樓中樓設計,歐式風格
占地:140平方米
帶地下室的三層歐式別墅戶型設計圖,帶地下室農村自建房
占地:139.256平方米
新農村二層帶庭院的小別墅設計圖及效果圖
占地:137平方米
帶庭院中式二層四合院別墅設計效果圖片,方方正正
占地:404平方米
小開間三層新中式小別墅設計圖,外觀圖優雅大氣,讓人心動!
占地:103.18平方米
帶院子的四間二層別墅房屋設計圖,帶獨立車庫
占地:350平方米
農村一層7字型平房別墅設計圖,“L”自行戶型,外觀簡約低調
占地:213.39平方米
一層自建別墅設計圖,占地70平不大功能很齊全,非常適合農村養
占地:69.61平方米
推薦:10套新農村自建房設計圖,2026年最新設計
閱讀次數:4825737次
100套鄉村別墅圖片大全,2026年最新設計
閱讀次數:2492203次
6款農村蓋一層平房的設計圖,10萬元就能建起來
閱讀次數:1852637次
這11個一層農村自建房別墅火爆了朋友圈!我最喜歡戶型十!你呢
閱讀次數:750268次
農村6萬元建一層小別墅圖,你敢相信嗎
閱讀次數:567686次
農村5萬塊就能自建房,6套普通房子設計圖分享,你沒看錯!
閱讀次數:419410次
8套農村漂亮三間平房圖片,非常適合在農村修建!
閱讀次數:411197次
農村自建房化糞池怎么做?附方案及施工過程
閱讀次數:391783次
農村一層三間平房設計圖,告別土氣養老房,讓人忍不住點贊
閱讀次數:350581次
新農村二層樓房圖片造價12萬,挑一套回家建房吧!
閱讀次數:349126次
