
|
今天為大家分享的這套樓房設計圖從建筑結構上來說,磚混結構和框架結構都可以建造;從外墻設計上來說,設計師多采用新型材料對別墅進行裝修,比如文化石的墻壁、二層窗戶拐角處木質材料的使用和一層入戶平臺豎線條金屬元素的設計,都是對別墅一種很好的藝術裝飾,這也增加了別墅的藝術感和現代感。
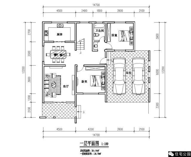
平面布局圖: 在別墅的一層,有客廳、廚房、餐廳、衛生間、車庫和兩個臥室,其中一個臥室可做老人房,車庫處有入口,方便停放車輛的人進出室內。
別墅二層一上來就是起居室,起居室四周分布著一個主臥室、一個兒童房和兩個次臥室、1娛樂棋牌室、1衛生間。主臥和兒童房在南側陽面,主臥有獨立的衛生間,室外有轉角露臺。居室的人不僅可以在起居室談心、聊天,還可以共同娛樂嬉戲。 室內裝修不需要多么的奢華,以舒適為主,在舒適的居室中享受一個寧靜、安詳的美好時光不正是每個人的追求嗎? 餐廳: 設計師用玻璃的桌面做餐桌,餐桌對面是一扇落地窗,窗外有綠植,室內有盆栽,室內外的美景印在餐桌上,是一種很好的視覺盛宴。
客廳以暖色調為主,木制的地板、木制的家具,暖暖的、接近自然。 客廳不僅有影視墻,設計師也合理的利用了室內墻壁,設置嵌入式書柜,正好也能兼顧書房的功能。
衛生間干凈整潔,放上一束紅色的插花,居室更有一種別樣的生機。
設計師的這個設計,您還滿意嗎? 圖紙之家-專注農村別墅/自建房設計18年,集合國內200余位經驗豐富的設計師,被評為口碑最好的農村建筑設計公司! |

120平方米農村一層平房別墅設計圖紙,含外觀效果圖
占地:125平方米
兩層三間農村房屋設計圖,新農村住宅方案推薦
占地:155平方米
新農村住宅設計圖紙含效果圖,方方正正的別墅方案
占地:134平方米左右
歐式漂亮農村三層自建房設計圖紙,兩個戶型方案可選
占地:多戶型可選
造價30萬左右的三層樓房設計圖,占地120平米左右
占地:120平方米
150平米農村兩層樓房設計圖,簡單大氣時尚
占地:150平方米
農村別墅220-240平米的雙拼自建房設計圖,屋頂帶老虎窗
占地:220平方米
私人經濟小別墅設計圖,農村自建小洋樓100平左右戶型
占地:104平方米
三層奢華歐式別墅圖片及全套設計圖,帶地下室和車庫
占地:208平方米左右
農村二層半樓房設計圖及效果圖,歐式風格
占地:150平方米
帶地下室+挑空客廳,農村三層洋樓別墅誰家圖在
占地:97.74平方米
新農村二層歐式別墅設計圖,外觀漂亮,主體18萬起建
占地:115.2平方米
造價65萬左右的三層歐式別墅房屋設計施工CAD圖紙及效果圖
占地:178平方米
經典三層歐式造型別墅圖紙,功能房豐富,挑空客廳
占地:180平方米
一層帶架空層的農村別墅設計圖,防潮、停車、放農具全都滿足
占地:163.78平方米
農村自建二層半樓房效果圖,美觀大氣布局合理,很適合農村人自
占地:160.11平方米
150平米左右農村二層房屋設計圖,造價25萬左右漂亮實用
占地:150平方米
造價便宜的二層雙拼自建房設計方圖案,一塊宅基地建兩戶
占地:224平方米
不帶廚房餐廳的二層別墅設計圖,農村建房很多人都這樣做
占地:124平方米左右
130平左右三層樓房設計圖,新農村住宅自建推薦
占地:128平方米
推薦:10套新農村自建房設計圖,2026年最新設計
閱讀次數:4825737次
100套鄉村別墅圖片大全,2026年最新設計
閱讀次數:2492203次
6款農村蓋一層平房的設計圖,10萬元就能建起來
閱讀次數:1852637次
這11個一層農村自建房別墅火爆了朋友圈!我最喜歡戶型十!你呢
閱讀次數:750268次
農村6萬元建一層小別墅圖,你敢相信嗎
閱讀次數:567686次
農村5萬塊就能自建房,6套普通房子設計圖分享,你沒看錯!
閱讀次數:419410次
8套農村漂亮三間平房圖片,非常適合在農村修建!
閱讀次數:411197次
農村自建房化糞池怎么做?附方案及施工過程
閱讀次數:391783次
農村一層三間平房設計圖,告別土氣養老房,讓人忍不住點贊
閱讀次數:350581次
新農村二層樓房圖片造價12萬,挑一套回家建房吧!
閱讀次數:349126次
