
|
戶型一:
戶型二:
圖紙之家-專注農村別墅/自建房設計18年,集合國內200余位經驗豐富的設計師,被評為口碑最好的農村建筑設計公司! |

農村四層樓房設計圖及外觀效果圖,造價60萬左右
占地:163.84平方米
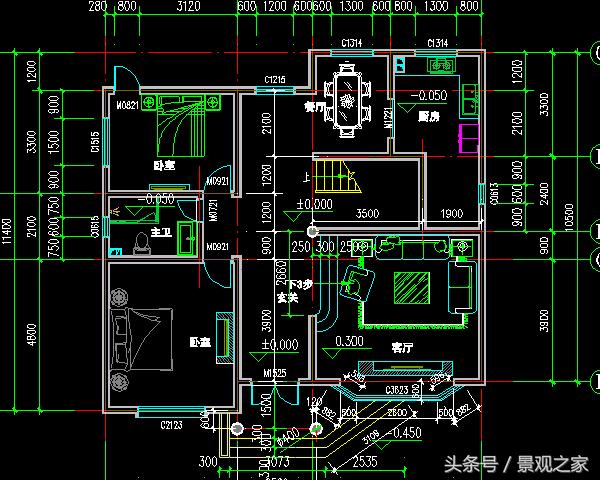
12.8x10米二層自建房別墅設計圖,大氣美觀實用,建造無憂
占地:128平方米
兩層中式三合院別墅設計圖紙,堂屋套臥全都有,蓋一棟面子十足
占地:181.93平方米
漂亮的農村三層小樓房設計圖,簡單大氣,帶車庫
占地:150平方米
三層平頂現代風格,農村自建房設計圖,可帶電梯,百看不厭
占地:259.55平方米
時尚典雅歐式三層自建房設計圖,美觀大氣簡單舒適,好看到沒得
占地:153.12平方米
120平現代實用三層別墅房屋設計圖,含外觀效果圖
占地:120平方米
180平方米新農村三層別墅設計圖紙,效果圖+全套cad施工圖
占地:180平方米
一層帶閣樓農村別墅設計圖,多得一層可變空間,太值了!
占地:165.89平方米
150平方米大平層別墅設計圖,時尚大氣舒適實用
占地:149.43平方米
農村兩開間農村別墅設計圖,典雅大氣,完全不輸大戶型
占地:116.26平方米
210平方米新農村三層雙拼全套別墅設計圖紙帶效果圖
占地:207.25平方米
30萬預算三層別墅設計圖紙及效果圖,新農村自建推薦
占地:110平方米
80平方米鄉村一層半帶閣樓自建別墅設計圖,帶車庫
占地:80平方米
簡單經濟一層自建養老房,12米乘9.5米,溫暖舒適施工簡單
占地:103.2平方米
時尚現代的二層農村別墅設計圖,年輕人建房的不二之選
占地:131.76平方米
給爸媽建養老房?100 平人字坡一層房太合適!簡約低調還實用
占地:102.6平方米
二層農村別墅新風尚,簡約實用,性價比高,美麗又實惠
農村建房兄弟雙拼兩層住宅設計圖,單戶150平米左右
占地:300平方米
新農村三層樓房住宅設計方案,戶型圖、效果圖、全套施工圖
占地:180平方米
推薦:10套新農村自建房設計圖,2026年最新設計
閱讀次數:4825737次
100套鄉村別墅圖片大全,2026年最新設計
閱讀次數:2492203次
6款農村蓋一層平房的設計圖,10萬元就能建起來
閱讀次數:1852637次
這11個一層農村自建房別墅火爆了朋友圈!我最喜歡戶型十!你呢
閱讀次數:750268次
農村6萬元建一層小別墅圖,你敢相信嗎
閱讀次數:567686次
農村5萬塊就能自建房,6套普通房子設計圖分享,你沒看錯!
閱讀次數:419410次
8套農村漂亮三間平房圖片,非常適合在農村修建!
閱讀次數:411197次
農村自建房化糞池怎么做?附方案及施工過程
閱讀次數:391783次
農村一層三間平房設計圖,告別土氣養老房,讓人忍不住點贊
閱讀次數:350581次
新農村二層樓房圖片造價12萬,挑一套回家建房吧!
閱讀次數:349126次
