
|
一層:客廳、玄關、廚房、餐廳、臥室x3、衛生間; 二層:臥室x4、衛生間x2、客廳、室、書房、陽臺、露臺。
圖紙之家-專注農村別墅/自建房設計18年,集合國內200余位經驗豐富的設計師,被評為口碑最好的農村建筑設計公司! |

實用型農村120平米二層樓房設計圖,小巧美觀實用
占地:120平方米
110平方米農村三層復式房屋施工圖,通透時尚,低調又奢華
占地:107.98平方米
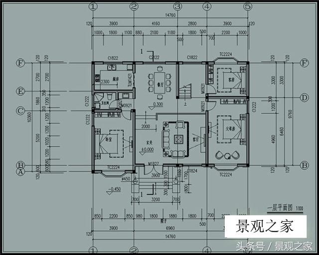
農村二層半房子設計圖 ,占地110平米和160多平兩個戶型圖
占地:多種戶型
好看實用農村2開間二層別墅設計圖,主體19萬
占地:117.36平方米
造型對稱的簡約二層別墅設計圖紙,戶型布局好,13x13米5室2廳
占地:151.94平方米
帶車位的鄉村二層別墅建筑結構設計圖,全套施工圖140平
占地:139.85平方米
小型農村二層自建樓房設計圖,面寬10米小占地經濟
占地:78.54平方米
二層自建房屋設計圖,帶小院,帶地下室,外觀現代、時尚,內部
占地:200平米
造價65萬左右的三層歐式別墅房屋設計施工CAD圖紙及效果圖
占地:178平方米
四開間兩層別墅設計圖,農村自建住著舒適的好方案!
占地:187.04平方米
一層帶小院自建房設計,穩重經濟,適合老人自住養老
占地:179.19平方米
130平氣派美觀的二層別墅房屋設計圖,含效果圖
占地:130平方米
古典韻味的四層房屋設計圖,占地140平米左右,這樣的外觀配上紅
占地:140平方米
網紅中式一層三合院別墅設計圖,白墻黛瓦古典大氣,讓人心曠神
占地:248.82平方米
一層合院中式小別院設計圖,白墻灰瓦,愜意十足!
占地:219平方米
美式風格鄉村兩層小別墅自建房設計圖,外觀圖好看
占地:150平方米
農村2開間三層經濟別墅設計圖,9.6米面寬,實用布局
占地:127.68平方米
農村一層房屋設計圖,自建一層房子圖紙推薦
占地:200平方米
兄弟雙拼四間三層別墅設計圖,農村自建推薦戶型方案
占地:260平方米
農村17萬元一層自建別墅設計圖,外觀簡潔,戶型方正
占地:163平方米
推薦:10套新農村自建房設計圖,2026年最新設計
閱讀次數:4825737次
100套鄉村別墅圖片大全,2026年最新設計
閱讀次數:2492203次
6款農村蓋一層平房的設計圖,10萬元就能建起來
閱讀次數:1852637次
這11個一層農村自建房別墅火爆了朋友圈!我最喜歡戶型十!你呢
閱讀次數:750268次
農村6萬元建一層小別墅圖,你敢相信嗎
閱讀次數:567686次
農村5萬塊就能自建房,6套普通房子設計圖分享,你沒看錯!
閱讀次數:419410次
8套農村漂亮三間平房圖片,非常適合在農村修建!
閱讀次數:411197次
農村自建房化糞池怎么做?附方案及施工過程
閱讀次數:391783次
農村一層三間平房設計圖,告別土氣養老房,讓人忍不住點贊
閱讀次數:350581次
新農村二層樓房圖片造價12萬,挑一套回家建房吧!
閱讀次數:349126次
