
|
這款樓房設計圖稱不上有多漂亮,但是最大的特點,就是比較適合農村,我們的宅基地尺寸,也不是太大,就這款比較適合了,
在外墻色彩上的搭配屬于簡單的真石漆就可以達到的效果,有門斗,造型簡約,有雙露臺,滿足您室外晾曬的要求, 下面是平面圖 一層平面圖上有老人房,而且在東南角采光比較好,方便老人,還有農具間,要是不做農具的話,完全可以做一個棋牌室,
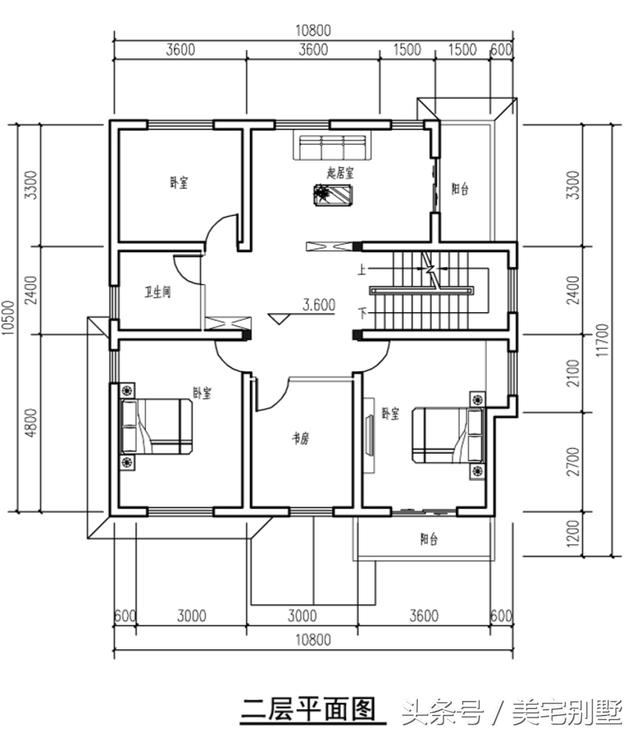
二層的布局也是相當的合理,沒有浪費空間的地方,緊湊實用,書房在正南方,采光較好,有些人會說為什么二樓的衛生間在一樓的客廳的上面,這是因為為了排水方便,也只有這樣安排戶型才是最合理的,利用率最高的。
三層最大的特點就是有兩個露臺,看起來整個房間都比較明亮,此戶型適合南方地區,還有一個大大的活動室,滿足您娛樂的需求,
下面是立面圖
您看這款怎么樣?適不適合您的建房需求呢 圖紙之家-專注農村別墅/自建房設計18年,集合國內200余位經驗豐富的設計師,被評為口碑最好的農村建筑設計公司! |

好看又簡單的二層小樓設計圖,農村自建20萬元左右
占地:130平方米
農村自建三層別墅設計圖,開間17米進深13米,外觀對稱設計
占地:187.6平方米
農村一層房屋設計圖,自建一層房子圖紙推薦
占地:200平方米
鄉村高檔四層豪華別墅自建房設計圖,一層不帶餐廳廚房戶型
占地:147平方米
新農村現代簡約別墅建筑設計圖紙(含外觀效果圖),28萬左右
占地:107平方米
新農村中式二層樓房設計圖紙及效果圖,125,150,170三個戶型可行
占地:多種戶型
農村蓋平房設計大全圖,鄉下建房一層戶型圖及效果圖
占地:160平方米
農村15萬元二層小樓設計圖,造價低,簡潔、好看
占地:90平方米
現代一層(帶悶頂)別墅住宅設計圖,外觀現代時尚
占地:160平方米
時尚大方的農村二層自建房屋設計圖紙,占地120平米左右
占地:120平米
95平米二層別墅必蓋戶型圖,造型洋氣,布局接地氣,趕緊回村建
占地:95.38平方米
三層平頂現代別墅設計圖,實用不花冤枉錢,建好倍有面子
占地:113.02平方米
最新歐式三層別墅設計圖紙,超漂亮,預算30到40萬
占地:160平方米
農村15萬元二層小樓設計圖,外觀簡潔、樸素,造價低
占地:138平方米
120平方房子設計圖,農村120平建房設計圖推薦
占地:122平方米
2026年獨棟三層雙拼別墅戶型圖,總占地面積300平方米左右
占地:300平方米
一層中式四合院別墅設計圖,符合國人審美,簡單大氣穩妥沉穩
占地:388平方米
農村60萬三層別墅新款式設計圖,外觀和實用性并駕齊驅
占地:170平方米
90平方米新農村住宅設計二層小別墅設計圖紙11x9米
占地:90平方米
新中式一層合院別墅圖,15米×15.8米,主體造價低至15萬
占地:183.08平方米
推薦:10套新農村自建房設計圖,2026年最新設計
閱讀次數:4825737次
100套鄉村別墅圖片大全,2026年最新設計
閱讀次數:2492203次
6款農村蓋一層平房的設計圖,10萬元就能建起來
閱讀次數:1852637次
這11個一層農村自建房別墅火爆了朋友圈!我最喜歡戶型十!你呢
閱讀次數:750268次
農村6萬元建一層小別墅圖,你敢相信嗎
閱讀次數:567686次
農村5萬塊就能自建房,6套普通房子設計圖分享,你沒看錯!
閱讀次數:419410次
8套農村漂亮三間平房圖片,非常適合在農村修建!
閱讀次數:411197次
農村自建房化糞池怎么做?附方案及施工過程
閱讀次數:391783次
農村一層三間平房設計圖,告別土氣養老房,讓人忍不住點贊
閱讀次數:350581次
新農村二層樓房圖片造價12萬,挑一套回家建房吧!
閱讀次數:349126次
