
|
農村人建房子講究物美價廉,但是高性價比的房子實在是難得。今天給大家分享3套200平米左右的農村二層房屋設計圖,占地面積不大,毛坯房建好20萬左右,10萬室內簡單裝修,30萬應該就能入住了。不僅價格實惠,而且別墅外觀和房屋布局也絕對時尚美觀,包你滿意,一起來看下吧! 戶型一:
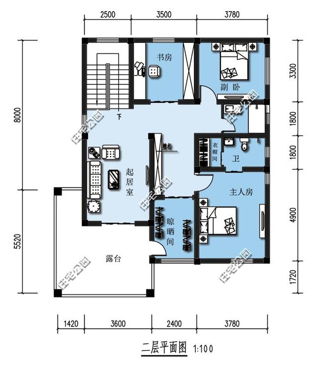
典型的田園風格,溫馨而親切,造型簡潔,構造規整,非常適合自建。 平面圖: 貼切的車庫設計,滿足為業主的出行提供便利。老人房、書房、晾曬間等功能性房間的布局,完美為業主提供舒適便捷的居家生活。
戶型二:
造型時尚的別墅外觀,將流暢優美的線條元素和文化石裝飾完美結合,西式的羅馬柱設計,讓房子更洋氣。 平面圖: 房子的功能性布局劃分簡潔而實用,二樓多臥室的設計保留房間的基礎功能性的同時,最大程度地開發房子的空間。
戶型三: 這套面積稍微大一點,250平米左右,30萬有點緊,但建個毛坯房應該也夠了。
這棟房子非常別致,既有中國傳統建筑的娟秀靈氣,也有現代建筑簡美素雅的氣質,天然渾成的美感。 平面圖:
看完這3套200平的別墅戶型圖,是不是有點心動呢? 圖紙之家-專注農村別墅/自建房設計18年,集合國內200余位經驗豐富的設計師,被評為口碑最好的農村建筑設計公司! |

140平方米歐式三層別墅建筑設計圖紙,復式結構
占地:140平方米
鄉村一層帶閣樓歐式小別墅,“L”型七字設計戶型
占地:194.218平方米
帶車庫徽派風格三層別墅房屋設計圖,新農村住宅設計推薦
占地:140平方米
共用中堂雙拼兄弟三層別墅設計圖,簡歐式風格
占地:230平方米
帶框架層的四層別墅設計圖,框架層功能布局很多,很實用
占地:169.09平方米
獨立餐廳廚房,平屋頂現代風格三層別墅設計圖
占地:159.02平方米
3款簡單舒適二層別墅設計圖,低調配色,造型簡單大氣
占地:多戶型可選
倆兄弟蓋房子的雙拼設計圖,小宅基地設計方案
占地:151.91平方米
160平小開間大進深農村三層別墅設計圖紙
占地:158.73平方米
農村27萬二層自建別墅設計圖,占地140平米左右,戶型極好
占地:140平方米
經典簡約三層農村自建房設計圖,功能實用簡單大氣,比城里鴿子
占地:144平方米
一層農村房子設計圖,含外觀效果圖,自建推薦戶型
占地:200平方米
帶架空層的農村一層小別墅設計圖,大氣穩重又很實用
占地:123.5平方米
舒適大方三層房屋設計圖紙及圖片,占地150平米,布局合理,臥室
占地:150平方米
農村三間二層別墅設計圖,外觀簡約左右對稱
占地:170.06平方米
帶KTV的四開間的二層別墅設計圖,造型美觀經濟實用
占地:240.22平方米
適合回鄉建的三合院平房設計圖,舒適又接地氣
占地:213.96平方米
帶堂屋新農村三層房屋別墅設計圖紙,帶外觀效果圖
占地:214平方米
占地170平米2026新款三層別墅設計圖片及設計方案
占地:170平方米
二層農村小別墅設計圖,造價經濟實惠,參考價30萬以內
占地:140平方米
推薦:10套新農村自建房設計圖,2026年最新設計
閱讀次數:4825737次
100套鄉村別墅圖片大全,2026年最新設計
閱讀次數:2492203次
6款農村蓋一層平房的設計圖,10萬元就能建起來
閱讀次數:1852637次
這11個一層農村自建房別墅火爆了朋友圈!我最喜歡戶型十!你呢
閱讀次數:750268次
農村6萬元建一層小別墅圖,你敢相信嗎
閱讀次數:567686次
農村5萬塊就能自建房,6套普通房子設計圖分享,你沒看錯!
閱讀次數:419410次
8套農村漂亮三間平房圖片,非常適合在農村修建!
閱讀次數:411197次
農村自建房化糞池怎么做?附方案及施工過程
閱讀次數:391783次
農村一層三間平房設計圖,告別土氣養老房,讓人忍不住點贊
閱讀次數:350581次
新農村二層樓房圖片造價12萬,挑一套回家建房吧!
閱讀次數:349126次
