
|
隨著時代的變化,人們對住宅的要求也在不斷地發展,房子不只是一個睡覺的地方,更要追求高質量的舒適生活。現在城里的房價這么高,全款買房對大多數家庭來說都是不可能的,貸款的話又很容易影響自己的生活質量,所以很多家庭都選擇的農村自建房,不僅更加經濟實惠,對自己生活的影響也更小。 接下來給大家分享5套占地130平米左右的農村二層別墅,造價只要25萬,經濟又實惠! 第一套
正面效果圖
背面效果圖
鳥瞰效果圖 占地面積:13.2m*10.0m,130平方米左右; 建筑層高:二層; 建筑高度:10.28米(含屋頂); 設計功能: 一層戶型:大廳、客廳、餐廳、廚房、衛生間、主臥、洗衣房; 二層戶型:大廳上空、休息區、主臥(帶書房)、臥室(帶衣帽間)、臥室、衛生間、陽臺; 閣樓戶型:功能自定義;
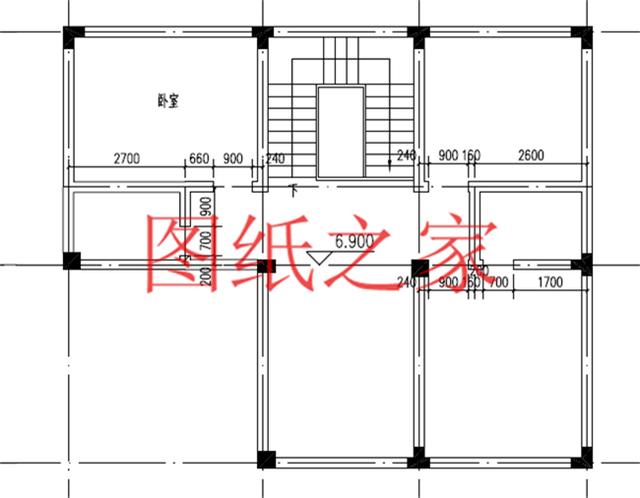
一層平面圖
二層平面圖
閣樓平面圖 第二套
正面效果圖
背面效果圖
側面效果圖 占地面積:12.6m*11.7m,134平方米左右; 建筑層高:二層; 建筑高度:10.37米(含屋頂); 設計功能: 一層戶型:客廳、餐廳、廚房、衛生間、臥室、車庫; 二層戶型:起居室、臥室x3、衛生間、陽臺、露臺;
一層平面圖
二層平面圖 第三套
正面效果圖
背面效果圖
鳥瞰效果圖 占地面積:12.0m*11.6m,125平方米左右; 建筑層高:二層; 建筑高度:8.7米(含屋頂); 設計功能: 一層戶型:堂屋、客廳、餐廳、廚房、衛生間、臥室×2; 二層戶型:休閑廳、小廳、主臥(帶衛生間)、臥室x2、衛生間、陽臺、大露臺; 閣樓戶型:功能自定義;
一層平面圖
二層平面圖
三層平面圖 第四套
正面效果圖
背面效果圖
鳥瞰效果圖 占地面積:11.6m*12.2m,124平方米左右; 建筑層高:二層; 建筑高度:9.06米(含屋頂); 設計功能: 一層戶型:客廳、餐廳、廚房、衛生間、臥室×2; 二層戶型:休閑廳、主臥(帶衛生間)、臥室x2、衛生間、書房、陽臺、大露臺;
一層平面圖
二層平面圖 第五套
正面效果圖
背面效果圖
鳥瞰效果圖 占地面積:10.2m*11.5m,120平方米左右; 建筑層高:二層; 建筑高度:9.7米(含屋頂); 設計功能: 一層戶型:客廳、餐廳、廚房、衛生間、棋牌室; 二層戶型:書房、主臥(帶衣帽間,衛生間)、臥室(帶衛生間)x2、陽臺;
一層平面圖
二層平面圖 這幾套別墅的設計圖,你最喜歡哪一套? 圖紙之家-專注農村別墅/自建房設計18年,集合國內200余位經驗豐富的設計師,被評為口碑最好的農村建筑設計公司! |

帶雙車庫的新中式二層四合院別墅設計圖,戶型布局實用
占地:321平方米
經典實用的新農村三層房屋設計圖紙,推薦自建使用
占地:165平方米
18米寬一層中式小院設計圖,三合院戶型布局寬敞大氣
占地:232.75平方米
三層平頂現代別墅設計圖,實用不花冤枉錢,建好倍有面子
占地:113.02平方米
125平方米三層新農村房屋建筑施工設計圖帶外觀圖
占地:126平方米
新款鄉村二層半別墅設計圖紙帶效果圖,三層別墅外觀圖片大全
占地:108.795平方米
新中式高端豪宅三層別墅自建房設計圖,大戶型經典
占地:270平方米左右
經濟、不張揚!簡單二層別墅設計圖,農村建房直接抄作業
占地:198.58平方米
農村一層自建房子設計圖紙及效果圖,戶型方正
占地:多戶型可選
新農村三層樓房住宅設計方案,戶型圖、效果圖、全套施工圖
占地:180平方米
全套三層農村房屋設計圖紙,客廳中空,大大的窗戶,采光極好,
占地:160平米
青瓦仿古中式大型三層別墅設計圖,韻味十足復古大氣
占地:300平方米
農村二層住宅別墅設計圖,貼心實用,12.8米乘14.5米
占地:156.16平方米
平屋頂四間一層農村自建房設計圖紙,經濟時尚
占地:144平方米
私人經濟小別墅設計圖,農村自建小洋樓100平左右戶型
占地:104平方米
80平方米鄉村一層半帶閣樓自建別墅設計圖,帶車庫
占地:80平方米
中式兄弟雙拼別墅設計圖紙,類似合院造型,美爆了
占地:221.9平方米
大氣的150平方米新中式三層別墅建筑圖及效果圖
占地:150平方米左右
180平方米新農村自建二層小別墅設計圖及效果圖,15X13米
占地:183平方米
農村平屋頂三層現代風別墅戶型圖,簡約實用經濟顏值高
占地:111.9平方米
推薦:10套新農村自建房設計圖,2026年最新設計
閱讀次數:4825737次
100套鄉村別墅圖片大全,2026年最新設計
閱讀次數:2492203次
6款農村蓋一層平房的設計圖,10萬元就能建起來
閱讀次數:1852637次
這11個一層農村自建房別墅火爆了朋友圈!我最喜歡戶型十!你呢
閱讀次數:750268次
農村6萬元建一層小別墅圖,你敢相信嗎
閱讀次數:567686次
農村5萬塊就能自建房,6套普通房子設計圖分享,你沒看錯!
閱讀次數:419410次
8套農村漂亮三間平房圖片,非常適合在農村修建!
閱讀次數:411197次
農村自建房化糞池怎么做?附方案及施工過程
閱讀次數:391783次
農村一層三間平房設計圖,告別土氣養老房,讓人忍不住點贊
閱讀次數:350581次
新農村二層樓房圖片造價12萬,挑一套回家建房吧!
閱讀次數:349126次
