
|
農村三層樓房新款圖片展示:
這是一款經濟實用的別墅戶型,尺寸非常大眾化。
圖紙之家-專注農村別墅/自建房設計18年,集合國內200余位經驗豐富的設計師,被評為口碑最好的農村建筑設計公司! |

150平方米自建現代二層別墅施工設計圖帶外觀圖,15x10米
占地:多戶型可選
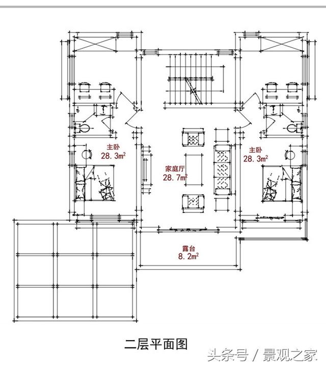
二層歐式小別墅設計方案,全套建筑設計圖紙+外觀效果圖
占地:146平方米
鄉村兄弟二層小戶型雙拼房屋別墅設計圖,造價低,面積小
占地:多種戶型
最新三層農村別墅設計圖紙,推薦農村自建
占地:106平方米
農村二層帶電梯別墅設計圖,歐式風格,避免老人上下樓的麻煩
占地:179.94平方米
漂亮實用三層新農村小別墅設計圖紙,占地150平米,帶露臺,從哪
占地:150平方米
造價40萬三層大氣自建房設計圖紙,鄉村別墅建造圖
占地:159.609平方
經濟實用二層農村自建房設計圖,新中式風格12x11米
占地:114平方米
氣派的帶旋轉樓梯三層別墅房屋設計圖,戶型很好
占地:150平方米
面寬15米一層四間現代風別墅,外觀漂亮布局實用,養老度假超巴
占地:180平方米
全套三層農村房屋設計圖紙,客廳中空,大大的窗戶,采光極好,
占地:160平米
三層農村小別墅設計圖,一層帶商鋪,占地110平米,經濟實用
占地:110平方米
小型農村二層自建樓房設計圖,面寬10米小占地經濟
占地:78.54平方米
農村120方三層自建房子圖,好看又不貴的三層農村別墅
占地:120平方米
新式三層別墅設計圖,客廳中空,占地125平米左右
占地:125平米
高顏值農村二層別墅設計圖,顏值在線造價不高,建房好選擇!
占地:216.93平方米
豪華高端三層帶地下室別墅設計圖,可帶電梯
占地:210平方米
三層奢華歐式別墅圖片及全套設計圖,帶地下室和車庫
占地:208平方米左右
一層中式仿古三合院設計圖,實用又大氣,百年不過時
占地:366.67平方米
11x9三層別墅房屋設計圖,含效果圖片
占地:97平方米
推薦:10套新農村自建房設計圖,2026年最新設計
閱讀次數:4825737次
100套鄉村別墅圖片大全,2026年最新設計
閱讀次數:2492203次
6款農村蓋一層平房的設計圖,10萬元就能建起來
閱讀次數:1852637次
這11個一層農村自建房別墅火爆了朋友圈!我最喜歡戶型十!你呢
閱讀次數:750268次
農村6萬元建一層小別墅圖,你敢相信嗎
閱讀次數:567686次
農村5萬塊就能自建房,6套普通房子設計圖分享,你沒看錯!
閱讀次數:419410次
8套農村漂亮三間平房圖片,非常適合在農村修建!
閱讀次數:411197次
農村自建房化糞池怎么做?附方案及施工過程
閱讀次數:391783次
農村一層三間平房設計圖,告別土氣養老房,讓人忍不住點贊
閱讀次數:350581次
新農村二層樓房圖片造價12萬,挑一套回家建房吧!
閱讀次數:349126次
