
|
五一回了趟老家,看看這家鄉的變化,差點連家都沒找到,因為那里基本家家都蓋好新房子,但遺憾的是我覺得房子造型外觀千遍一律,很少可以看到有別墅造型的,好啦,今天小編要發十套福利了,套套都實用型的,套套美哭你。 第一套
效果圖
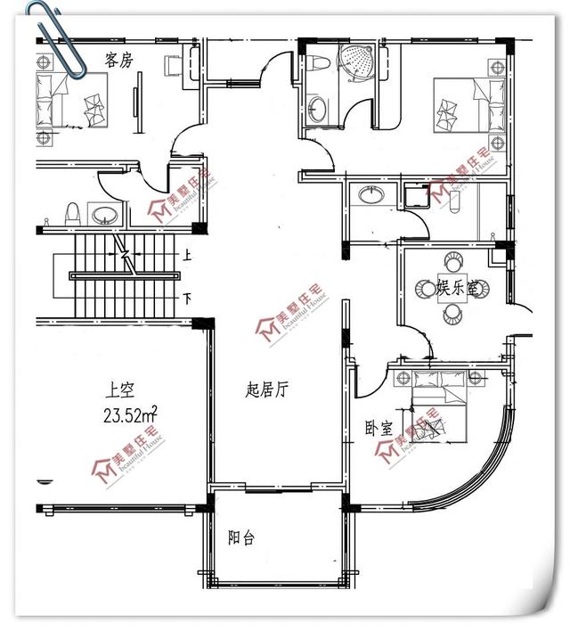
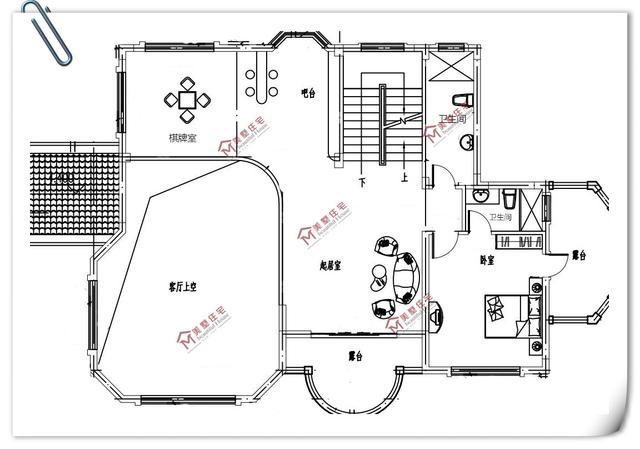
一層戶型圖
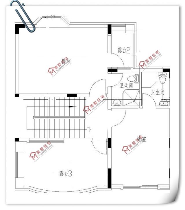
二層戶型圖
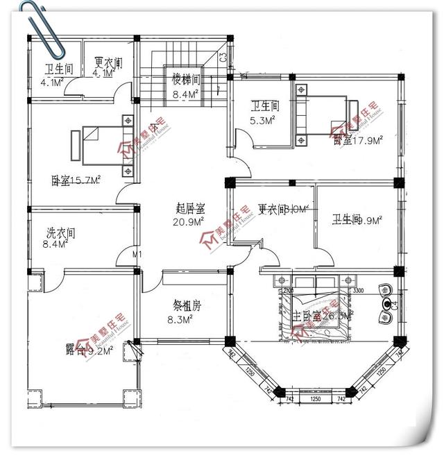
三層戶型圖 第二套
別墅基本信息簡介 編號:MS1703002 風格:復式別墅 結構:框架結構 占地尺寸:8×11.6米 占地面積:88.7平方米 建筑面積:220.9平方米 建筑高度:10.7米 參考造價:22.1萬左右
效果圖
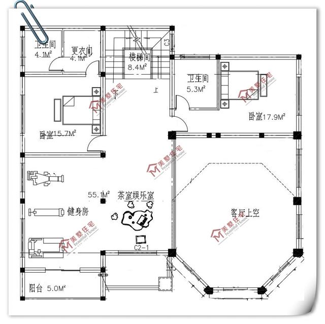
一層戶型圖
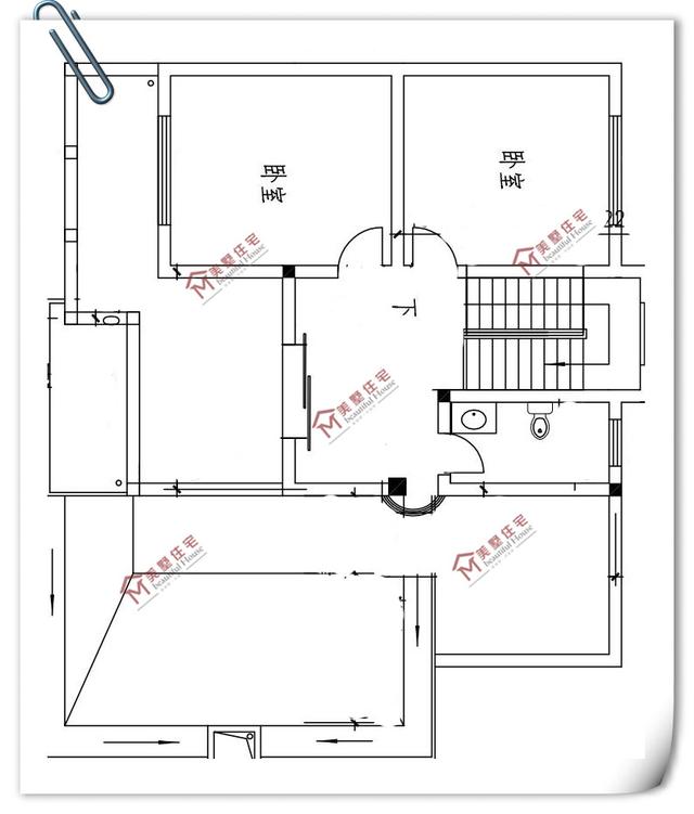
二層戶型圖
三層戶型圖 第三套
別墅基本信息簡介 編號:MS1703003 風格:獨棟別墅 結構:框架結構 占地尺寸:18.44×12.5米 占地面積:200.26平方米 建筑面積:595.26平方米 建筑高度:13.6米 參考造價:60萬左右
效果圖
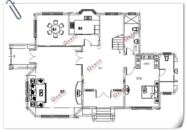
一層戶型圖
二層戶型圖
三層戶型圖 第四套
別墅基本信息簡介 編號:MS1703004 風格:獨棟別墅 結構:框架結構 占地尺寸:13.3×14.6米 占地面積:182平方米 建筑面積:366.4平方米 建筑高度:11.1米
效果圖
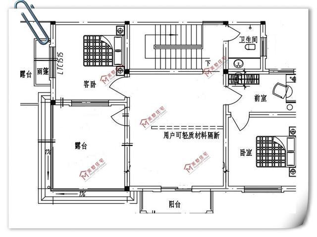
一層戶型圖
二層戶型圖
三層戶型圖 第五套
別墅基本信息簡介 編號:MS1703005 風格:獨棟別墅 結構:磚混結構 占地尺寸:14.4×14.4米 占地面積:190.9平方米 建筑面積:558.1平方米 建筑高度:11.1米 參考造價:44.6萬左右
效果圖
一層戶型圖
二層戶型圖
三層戶型圖 第六套
別墅基本信息簡介 編號:MS1703006 風格:獨院式別墅 結構:主要磚混結構 占地尺寸:13.8×8.34米 占地面積:109.46平方米 建筑面積:298.36平方米 建筑高度:11.8米 參考造價:23.8萬左右
效果圖
一層戶型圖
二層戶型圖
三層戶型圖 第七套
別墅基本信息簡介 編號:MS1703007 風格:獨院式別墅 結構:磚混結構 占地尺寸:11.5×10.1米 占地面積:109.68平方米 建筑面積:287.82平方米 建筑高度:11.8米 參考造價:23萬左右
效果圖
一層戶型圖
二層戶型圖
三層戶型圖 第八套
別墅基本信息簡介 編號:MS1703008 風格:獨棟別墅 結構:混合結構 占地尺寸:10.4×13.7米 占地面積:125.10平方米 建筑面積:410.45平方米 建筑高度:10.5米 參考造價:23萬左右
效果圖
一層戶型圖
二層戶型圖
三層戶型圖 第九套
別墅基本信息簡介 編號:MS1703009 風格:獨棟別墅 結構:混合結構 占地尺寸:13.2×12.8米 占地面積:170.38平方米 建筑面積:412.72平方米 建筑高度:10.65米
效果圖
一層戶型圖
二層戶型圖
三層戶型圖 第十套
別墅基本信息簡介 編號:MS1703010 風格:獨棟別墅 結構:框架結構 占地尺寸:12.84×12.54米 占地面積:140平方米 建筑面積:354.5平方米 建筑高度:10.8米 參考造價:28.3萬左右
效果圖
一層戶型圖
二層戶型圖
三層戶型圖
九江春橋某村的航拍圖
圖紙之家-專注農村別墅/自建房設計18年,集合國內200余位經驗豐富的設計師,被評為口碑最好的農村建筑設計公司! |

簡單漂亮實用的三層自建房設計圖,帶露臺,占地170平方米
占地:170平方米
帶地下室的一層別墅設計圖,農村自建很實用
占地:192平方米
100平方米自建房二層設計圖紙及效果圖,12x9米
占地:100平方米
農村二層半別墅圖片大全,二層半別墅設計圖推薦
占地:160平方米
農村四間兩層別墅房屋設計圖,含外觀圖片
占地:160平方米
農村四間兩層樓房設計圖,含外觀圖片
占地:138平方米
造價30萬左右的三層樓房設計圖,占地120平米左右
占地:120平方米
徽派120平新農村住宅設計方案,帶外觀效果圖
占地:120平方米
農村四層樓房外形設計圖,主臥配有陽臺和衣帽間還有衛生間
占地:126平方米
新農村共用堂屋和樓梯的雙拼別墅設計圖紙,戶型布局空間利用率
占地:207平方米左右
2026年簡單實用二層農村別墅,經典大氣真的香
占地:165.98平方米
農村二層住宅設計圖,大窗戶客廳,一起享受大面積采光的溫暖
占地:220平方米
120平農村三層房屋設計圖,含外觀圖片
占地:120平方米
農村200平一層別墅房屋設計圖,外觀圖片時尚、漂亮
占地:200平方米
方方正正的二層農村別墅設計圖,普通農村人都能建
占地:201.05平方米
20萬農村一層半小洋樓圖,自建別墅設計方案推薦
占地:155平方米
200平農村二層別墅設計圖,外觀現代簡約
占地:204平方米
160平小開間大進深農村三層別墅設計圖紙
占地:158.73平方米
仿古中式三合院設計圖紙,帶堂屋,適合農村自建
占地:173平方米
170平方米農村二層房屋設計施工圖,外觀圖時尚、好看
占地:172平方米
推薦:10套新農村自建房設計圖,2026年最新設計
閱讀次數:4825737次
100套鄉村別墅圖片大全,2026年最新設計
閱讀次數:2492203次
6款農村蓋一層平房的設計圖,10萬元就能建起來
閱讀次數:1852637次
這11個一層農村自建房別墅火爆了朋友圈!我最喜歡戶型十!你呢
閱讀次數:750268次
農村6萬元建一層小別墅圖,你敢相信嗎
閱讀次數:567686次
農村5萬塊就能自建房,6套普通房子設計圖分享,你沒看錯!
閱讀次數:419410次
8套農村漂亮三間平房圖片,非常適合在農村修建!
閱讀次數:411197次
農村自建房化糞池怎么做?附方案及施工過程
閱讀次數:391783次
農村一層三間平房設計圖,告別土氣養老房,讓人忍不住點贊
閱讀次數:350581次
新農村二層樓房圖片造價12萬,挑一套回家建房吧!
閱讀次數:349126次
