
|
房屋基本信息 戶型規格:18.44米*12.5米 建筑高度:13.656米 占地面積:200.26平方米 建筑面積:595.26平方米 結構形式:框架結構 主體造價:50-60萬
外觀設計說明 本戶型采用坡屋面,外觀造型古樸大方,色彩清新淡雅,富有古色古香的韻味;房間尺度設計適宜,空間利用率高,明廚明衛,各使用空間都有較好的采光通風。 各外立面
南立面圖
北立面圖
東立面圖
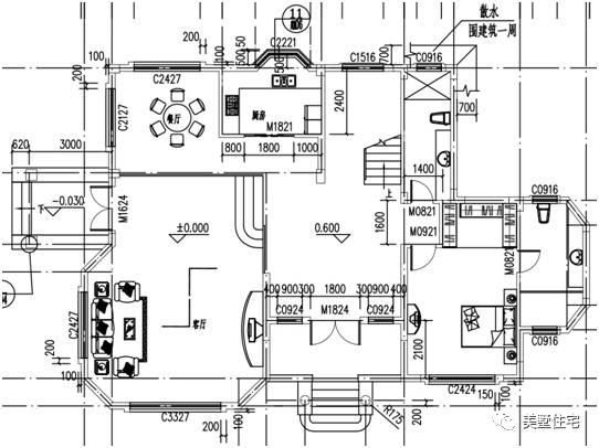
西立面圖 平面布局圖
一層設有客廳、餐廳、廚房、臥室(帶衣柜和獨立衛生間)、衛生間。
二層設有起居室(帶露臺)、1樓懸空客廳、餐廳、吧臺、廚房、衛生間、臥室(帶獨立衛生間和衣柜);
三層設有起居室、3間臥室(帶獨立衛生間、衣柜和露臺)、衛生間; 此戶型設有5個陽臺,對于農村要曬曬被子是相當的方便,非常實用,每到冬天要曬曬陽光啥的,在每個樓層都能享受到陽光的沐浴,有這樣一套房子設計圖,都不想回城市生活。 圖紙之家-專注農村別墅/自建房設計18年,集合國內200余位經驗豐富的設計師,被評為口碑最好的農村建筑設計公司! |

簡單農村二層自建房子設計圖,主體18萬就能建好,太心動了!
占地:124.53
150平歐式別墅房屋設計圖,外觀精美、氣派
占地:150平方米
面寬8米也能建別墅,小面寬農村三層別墅設計圖
占地:93.83平方米
一層中式七字型房屋設計圖,帶院子經典設計,耐看不過時
占地:163.18平方米
辦公居住共用的一層別墅設計圖,簡約優雅,精致生活新體驗
占地:265.3平方米
140平方米歐式三層別墅建筑設計圖紙,復式結構
占地:140平方米
二層新中式別墅設計施工圖,廚房在配房,占地140平米
占地:141平方米
帶車庫簡約二層小別墅房屋設計圖紙,占地120平米,彎彎的樓梯打
占地:120平方米
新農村二層自建房設計圖帶外觀圖片,自建戶型大全
占地:160平方米
徽派自建房一層設計圖,七字型設計,獨立餐廚便捷實用
占地:171.65平方米
造價65萬左右的三層歐式別墅房屋設計施工CAD圖紙及效果圖
占地:178平方米
農村二層住宅樓房設計圖紙,全套方案(施工圖+效果圖)
占地:113平方米
帶土灶房一層四開間別墅設計方案,溫馨舒適的雅舍
占地:164.34平方米
鄉村最美三層別墅設計圖自建房戶型,外觀圖精致漂亮
占地:134平方米
四層(三層半)豪華歐式別墅房屋設計圖,外觀高端、大氣
占地:150平方米
農村中式兩層雙拼別墅房屋設計圖,含效果圖片
占地:200平方米
經典二層農村自建房屋別墅設計圖紙,占地110平米左右
占地:110平方米
160平方米二層小別墅設計圖紙及效果圖大全,12X13米
占地:162平方米
農村120方三層自建房子圖,好看又不貴的三層農村別墅
占地:120平方米
農村二層半別墅圖片大全,二層半別墅設計圖推薦
占地:160平方米
推薦:10套新農村自建房設計圖,2026年最新設計
閱讀次數:4825737次
100套鄉村別墅圖片大全,2026年最新設計
閱讀次數:2492203次
6款農村蓋一層平房的設計圖,10萬元就能建起來
閱讀次數:1852637次
這11個一層農村自建房別墅火爆了朋友圈!我最喜歡戶型十!你呢
閱讀次數:750268次
農村6萬元建一層小別墅圖,你敢相信嗎
閱讀次數:567686次
農村5萬塊就能自建房,6套普通房子設計圖分享,你沒看錯!
閱讀次數:419410次
8套農村漂亮三間平房圖片,非常適合在農村修建!
閱讀次數:411197次
農村自建房化糞池怎么做?附方案及施工過程
閱讀次數:391783次
農村一層三間平房設計圖,告別土氣養老房,讓人忍不住點贊
閱讀次數:350581次
新農村二層樓房圖片造價12萬,挑一套回家建房吧!
閱讀次數:349126次
