
|
我和我這同事是在2012年認識的,當時是我的第一份工作,他是個碼農,在阿里巴巴工作,據他現在交代年薪都已經50萬了,真的是幾年不見,變化沒得說,小編還拿著他零頭工資呢,不多扯了,我要努力工作了,他今年回家要建房,接下來看看我年薪50萬朋友的眼光怎么樣? 項目名稱:簡歐風格獨棟別墅設計 占地尺寸:15.4米*13.6米 占地面積:246.97平方米 地下室建筑面積:250.78平方米 總建筑面積:682.4平方米 總高度:12.3米
本戶型為2層半獨棟別墅,外觀造型簡潔大方,色彩明快,功能分區合理,房間尺度設計適宜,采光通風良好,富有時代氣息。
在農村設有半地下層,整個村子里也唯獨他一家,有錢銀的象征,就是要與眾不同,但話說回來也很實用的,在農村里還是需要放到雜物的,你應該同意我的觀點吧,啊哈哈~~
一層設有客廳、廚房、早餐廳、正餐廳、書房、衛生間3間、臥室2間、會客廳、2間衣帽間;二層設有主臥室、2間臥室、3個衛生間、活動室、起居室、4個衣帽間和一個梳妝臺;
二層設有主臥室、2間臥室、3個衛生間、活動室、起居室、4個衣帽間和一個梳妝臺;
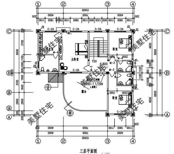
三層設有1主臥2次臥3衛生間1陽臺,在農村里每到過年,親戚都會有串門,想必大家都有過,親戚來了過夜要打地鋪的經歷吧,看看這戶型是不是人性化了呢,這點有沒有打動你。
看到的朋友都來評論一下這套房子設計圖,你覺得怎么樣? 圖紙之家-專注農村別墅/自建房設計18年,集合國內200余位經驗豐富的設計師,被評為口碑最好的農村建筑設計公司! |

農村實用型一層半樓房圖片效果圖,占地140平米左右
占地:140平方米
120平米三層別墅房屋設計圖,帶車庫,帶閣樓
占地:120平方米
開間20米雙拼別墅三層設計圖,兄弟合建省時省力又省心
占地:205.8平方米
高端四間五間兩層別墅設計圖紙,開間20米自建房效果圖
占地:265平方米
歐式四層(三層半)獨棟別墅設計圖復式,設計豪華時尚
占地:194平方米
100平復式三層別墅房屋設計圖,客廳挑高,采光好,臥室多
占地:100平方米
新古典中式風格別墅設計圖,全套施工圖+效果圖
占地:188平方米
大氣新中式三層雙拼別墅設計圖及外觀,總面寬20米多
占地:205.76平方米
帶地下室的一層別墅設計圖,農村自建房比較合適
占地:206平方米
農村四間二層別墅設計方案圖,外觀精致、時尚
占地:152平方米
面寬13米簡簡單單一層農村自建別墅設計圖,方正大氣經濟宜居
占地:126.1平方米
省錢美觀一層自建房子設計圖,父母養老住很適合
占地:117平方米
120平米農村三層房屋設計圖,客廳中空,戶型合理
占地:120平方米
小型農村二層自建樓房設計圖,面寬10米小占地經濟
占地:78.54平方米
小面寬的農村簡單四層2建平屋頂別墅設計圖,農村自建房首選
占地:109.29平方米
農村自建一層房子設計圖,大開間小進深,20米x10米
占地:188平方米
人字坡紅磚一層別墅設計圖,簡約低調超實用,這樣的房子人人能
占地:136.51平方米
100來平復式旋轉樓梯二層簡歐別墅設計圖,戶型實用
占地:101.523平方米
120平米簡單實用型農村小別墅設計圖,二層屋頂為全露臺,小開間
占地:120平方米
最美農村一層合院設計圖紙,自建一棟火遍十里八鄉
占地:190平方米左右
推薦:10套新農村自建房設計圖,2026年最新設計
閱讀次數:4825737次
100套鄉村別墅圖片大全,2026年最新設計
閱讀次數:2492203次
6款農村蓋一層平房的設計圖,10萬元就能建起來
閱讀次數:1852637次
這11個一層農村自建房別墅火爆了朋友圈!我最喜歡戶型十!你呢
閱讀次數:750268次
農村6萬元建一層小別墅圖,你敢相信嗎
閱讀次數:567686次
農村5萬塊就能自建房,6套普通房子設計圖分享,你沒看錯!
閱讀次數:419410次
8套農村漂亮三間平房圖片,非常適合在農村修建!
閱讀次數:411197次
農村自建房化糞池怎么做?附方案及施工過程
閱讀次數:391783次
農村一層三間平房設計圖,告別土氣養老房,讓人忍不住點贊
閱讀次數:350581次
新農村二層樓房圖片造價12萬,挑一套回家建房吧!
閱讀次數:349126次
