
|
經典的田園歐式自建房,既有恢弘大氣的外觀,又有清新自然的質感。選取優質的材料建造,運用優質的工藝建筑,造就別墅非凡的品質。時尚又接地氣的房屋設計,自然深受廣大農村朋友的喜愛。今天就特別介紹一款12X14米三層田園歐式別墅戶型,一起來看下吧! 該戶型占地14米*12.5米,占地面積:165平方米,建筑面積達412平方米,共設有6室3廳3衛1雜物間1儲藏間1廚房1洗衣房1大露臺。
活潑俏皮的色調,肌理分明的文化石,西式風格的羅馬柱,經典的造型洋溢著無限的活力與朝氣。
立面圖: 外觀規整有序,開闊的弧形采光窗,不僅有利于室內采光充分,而且讓房子更加通透高挑。
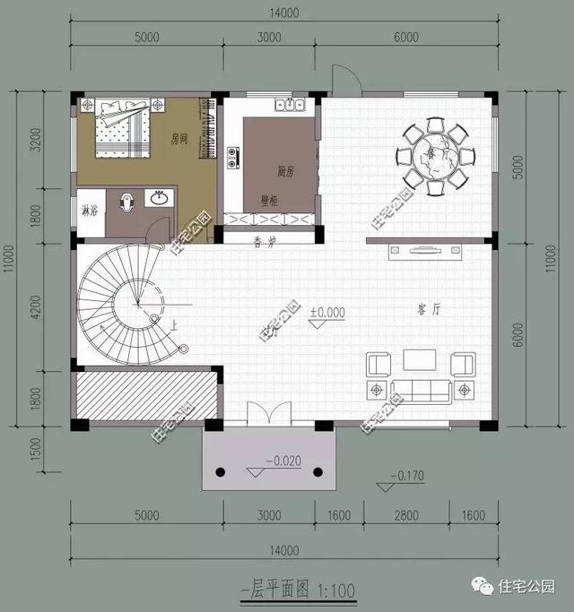
平面布局圖: 說明: 布局簡單實用,入戶即客廳,方便招待客人;廚房與餐廳相連,就餐便利。
臥室設計功能齊全,自帶獨立衛生間和淋浴,干濕分區,讓居家生活更加舒適,大臥室設計更豪華,還有衣帽間。
奢華精細的旋轉樓梯設計,讓空間更加開闊;大露臺的設計符合農村實際需求,方便日常晾曬,或是乘涼小憩。
別墅外觀清雅富麗,內里設計高端大氣,內外兼備的美令人贊嘆!看了這么好看的戶型,是不是有點小心點呢?要不照著圖紙來一套唄? 圖紙之家-專注農村別墅/自建房設計18年,集合國內200余位經驗豐富的設計師,被評為口碑最好的農村建筑設計公司! |

120平米三層小別墅設計方案和效果圖,端莊大氣很經典
占地:120平方米
新式三層別墅設計圖,客廳中空,占地125平米左右
占地:125平米
開間13米左右新農村2層自建房別墅戶型設計圖,簡潔實用
占地:170平方米
130平新農村二層住宅設計圖,外觀精致、漂亮
占地:130平方米
11X10米三層別墅農村自建房設計圖,復式挑空客廳
占地:119.08平方米
大氣新中式三層雙拼別墅設計圖及外觀,總面寬20米多
占地:205.76平方米
新中式三層雙拼別墅設計圖,外觀圖片美觀、大氣
占地:176平方米
二層半房子設計圖及效果圖,客廳中空,南北通透
占地:160平方米
農村三間兩層樓房設計圖,背面不開窗,氣勢上就勝人一籌
占地:153.7平方米
二層半大客廳復式別墅房屋設計圖,客廳寬闊明亮
占地:125平方米
自建帶電梯的三層豪華別墅設計圖,建好有面子,面寬16米
占地:194平方米左右
超大氣的農村一層雙拼自建別墅設計方案,絕對讓人羨慕的“平房
占地:424平方米
小型雙拼一層平房設計圖,外觀古樸
占地:100平方米
時尚大氣的三層現代風別墅設計圖,露臺+挑空客廳
占地:321平方米
一層5間歐式平房小洋樓建筑設計圖紙,大戶型一層別墅戶型
占地:216平方米
農村三層雙拼別墅設計圖,兄弟建房開間20米,單戶80平方
占地:160平方米
新農村自建三層樓房設計圖紙,外觀簡單大方
占地:137平方米
私人自建三層別墅設計圖紙帶效果圖,歐式風格、外觀大氣
占地:209.44平方米
最接農村地氣的二層農村小別墅,造價30萬左右,經濟實用
占地:170平方米
經濟實用二層農村自建房設計圖,新中式風格12x11米
占地:114平方米
推薦:10套新農村自建房設計圖,2026年最新設計
閱讀次數:4825737次
100套鄉村別墅圖片大全,2026年最新設計
閱讀次數:2492203次
6款農村蓋一層平房的設計圖,10萬元就能建起來
閱讀次數:1852637次
這11個一層農村自建房別墅火爆了朋友圈!我最喜歡戶型十!你呢
閱讀次數:750268次
農村6萬元建一層小別墅圖,你敢相信嗎
閱讀次數:567686次
農村5萬塊就能自建房,6套普通房子設計圖分享,你沒看錯!
閱讀次數:419410次
8套農村漂亮三間平房圖片,非常適合在農村修建!
閱讀次數:411197次
農村自建房化糞池怎么做?附方案及施工過程
閱讀次數:391783次
農村一層三間平房設計圖,告別土氣養老房,讓人忍不住點贊
閱讀次數:350581次
新農村二層樓房圖片造價12萬,挑一套回家建房吧!
閱讀次數:349126次
