
|
從農村走出來的人都希望能在熱鬧繁華的城市定居,過上豐富多彩的生活。不過當自己在城里站穩腳跟之后,又會懷念鄉村生活,想著回老家修建一棟小別墅,不僅能讓父母住得舒服,自己也能隨時回去度假。 下邊給大家分享4套三層新農村自建房,豪華大氣,建成之后肯定給你長臉! 第一套
別墅效果圖 占地面積:13.50m*12.60m,160平方米左右; 建筑層高:三層; 建筑高度:12.75米(含屋頂); 設計功能: 一 層:門廳、客廳、廚房、餐廳、衛生間、主臥(帶衛生間)、次臥、車庫; 二 層:起居室、主臥(帶衛生間)、次臥x2、書房、衛生間、露臺; 三 層:大廳、主臥(帶衛生間)、次臥x2、衛生間、儲藏間、露臺;
一層平面圖
二層平面圖
三層平面圖 第二套
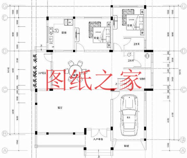
別墅效果圖 占地面積:14.5m*12.4m,175平方米左右; 建筑層高:三層; 建筑高度:14.33米(含屋頂); 設計功能: 一 層:大廳、客廳、廚房、餐廳、主臥(帶衛生間)、臥室、衛生間、儲藏間(樓梯下面); 二 層:客廳、臥室(帶書房)、臥室x3(都帶衛生間,可以根據情況選擇不帶)、衛生間; 三 層:客廳、臥室x4(其中2個帶衛生間)、衛生間、露臺;
一層平面圖
二層平面圖
三層平面圖 第三套
別墅效果圖 占地面積:12.5m*15m,187平方米左右; 建筑層高:三層; 建筑高度:13.27米(含屋頂); 設計功能: 一 層:門廳、客廳、餐廳、廚房、棋牌室、儲藏室、主臥(衛生間)、次臥、衛生間; 二 層:客廳、餐廳、廚房、臥室(衛生間)、陽臺x2、書房、儲藏室、臥室x2、衛生間; 三 層:臥室x2、會客室、衛生間、陽臺、大露臺、涼亭;
一層平面圖
二層平面圖
三層平面圖 第四套
別墅效果圖 占地面積:13.96m*14.74m,200平方米左右; 建筑層高:三層; 建筑高度:11.83米(含屋頂); 設計功能: 一 層:客廳、餐廳、廚房、臥室、主臥(帶衛生間)、衛生間、入戶花園、雜物間; 二 層:客廳、主臥(衛生間)、臥室x3(其中1個臥室帶陽臺)、書房、衛生間; 三 層:活動室、臥室x2、書房、衛生間、大露臺x2;
一層平面圖
二層平面圖
三層平面圖 這幾套別墅的設計圖,你最喜歡哪一套? 圖紙之家-專注農村別墅/自建房設計18年,集合國內200余位經驗豐富的設計師,被評為口碑最好的農村建筑設計公司! |

農村20萬左右三層住房設計圖,小宅基地首選
占地:95平方米
鄉下一層門面二層別墅設計圖紙,帶門面的自建房方案
占地:198.4平方米
最新設計的三層農村別墅圖紙,帶車庫,帶露臺,占地150平米左右
占地:150平方米
130平方米現代簡約農村兩層樓房施工設計圖紙帶外觀圖
占地:126平方米
簡單實用二層自建房子設計圖,主體造價僅17萬
占地:106.387平方米
農村一層平房設計圖及效果圖,一層房屋設計方案推薦
占地:270平方米
一層帶地下室雙拼別墅設計圖,理想鄉村生活的標配
占地:416平方米
農村蓋房三層自建別墅設計圖紙,11米乘12米戶型方案
占地:132.55平方米
農村三層私人住宅設計圖紙及效果圖,帶車庫,帶露臺
占地:150平方米
占地70平方米的三層獨棟別墅設計圖,小戶型自建房屋效果圖
占地:70平方米左右
一層合院中式小別院設計圖,白墻灰瓦,愜意十足!
占地:219平方米
兩層半30萬農村自建房別墅設計圖紙,客廳挑空,帶大露臺
占地:130平方米
帶車庫二層165平別墅房屋設計圖,含效果圖
占地:165平方米
一層自建別墅設計圖,占地70平不大功能很齊全,非常適合農村養
占地:69.61平方米
8.5×12米四層歐式房屋設計圖紙,占地100平,落地窗中嵌入了雕花
占地:100平方米
六開間三層農村自建別墅設計圖,盡享豪華舒適生活
占地:341.91平方米
四層雙拼豪華別墅設計圖及外觀效果圖,貴族氣質爆棚
占地:188.5平方米
農村三間兩層樓房設計圖,背面不開窗,氣勢上就勝人一籌
占地:153.7平方米
三層別墅設計施工圖紙(含外觀效果圖)帶大露臺
占地:160平方米
130平方米復式三層別墅房屋設計圖,含外觀效果圖
占地:130平方米
推薦:10套新農村自建房設計圖,2026年最新設計
閱讀次數:4825737次
100套鄉村別墅圖片大全,2026年最新設計
閱讀次數:2492203次
6款農村蓋一層平房的設計圖,10萬元就能建起來
閱讀次數:1852637次
這11個一層農村自建房別墅火爆了朋友圈!我最喜歡戶型十!你呢
閱讀次數:750268次
農村6萬元建一層小別墅圖,你敢相信嗎
閱讀次數:567686次
農村5萬塊就能自建房,6套普通房子設計圖分享,你沒看錯!
閱讀次數:419410次
8套農村漂亮三間平房圖片,非常適合在農村修建!
閱讀次數:411197次
農村自建房化糞池怎么做?附方案及施工過程
閱讀次數:391783次
農村一層三間平房設計圖,告別土氣養老房,讓人忍不住點贊
閱讀次數:350581次
新農村二層樓房圖片造價12萬,挑一套回家建房吧!
閱讀次數:349126次
