
|
這款圖紙在今年建房中非常的受歡迎,外觀別致大方,配色清新時尚,圓弧型的入戶亭非常的時尚,又實用,屋頂露臺和多陽臺的組合,把實用性和舒適性結合的非常好。
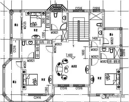
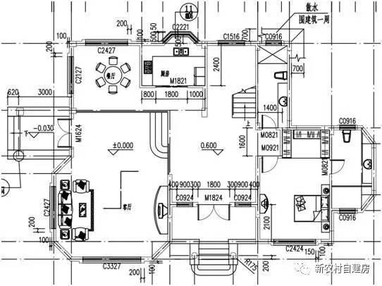
別墅開間為18.4米,進深為12.5米,占地面積為200平方米,建筑面積595平方米,為三層框架結構建筑,主體造價50萬左右。 戶型布局非常的舒適實用,一層有舒適的大客廳,主臥室帶衣帽間和衛生間,另有廚房、客廳和次衛。
二層設計有起居室、主臥室帶衣帽間和衛生間,吧臺和餐廳,次衛。
三層別墅設計有三間臥室均帶有衛生間,起居室和公衛。
各立面圖
圖紙之家-專注農村別墅/自建房設計18年,集合國內200余位經驗豐富的設計師,被評為口碑最好的農村建筑設計公司! |

四層復式別墅設計方案,外觀氣派布局實用,舒適宜居美極了!
占地:204.64平方米
新中式二層別墅設計圖,農村最適合建的兩層小樓,13×12米
占地:143平方米
最漂亮的一層平房圖片及設計圖,造價18萬左右,結構簡單易于施
占地:186平方米
150平米二層鄉村小別墅圖,戶型合理,外觀清新淡雅
占地:150平方米
農村二層別墅設計圖,帶外觀效果圖,兄弟自建推薦
占地:多種戶型
農村40萬房子圖片外觀設計效果圖,帶地下室,外觀時尚大氣
占地:110平方米
農村高端中式三層雙拼全套房屋施工設計圖,效果圖很大氣
占地:340平方米
農村三層樓房設計圖紙及效果圖,經典自建圖紙
占地:201平方米
占地70平米一層小戶型別墅設計圖,功能齊全造價低,耐看實用
占地:70.19平方米
帶堂屋設計一層三合院設計圖,白墻黛瓦古韻悠悠,比高層舒服接
占地:179.37平方米
兩間二層農村自建房設計圖,面積雖小功能齊全,布局緊湊。
占地:118.75平方米
帶車庫,帶露臺的三層復式樓房設計圖,新農村房屋方案推薦
占地:140平方米
150平方米農村二層房屋建筑設計圖,15.2x9.4米
占地:148平方米
經典實用的新農村三層房屋設計圖紙,推薦自建使用
占地:165平方米
時尚大方的農村二層自建房屋設計圖紙,占地120平米左右
占地:120平米
農村蓋平房設計大全圖,鄉下建房一層戶型圖及效果圖
占地:160平方米
鄉村最美四合院設計圖及外觀效果圖片,國人的理想住宅
占地:280.62平方米
2026新農村三層雙拼房屋設計圖紙平面圖與效果圖,帶堂屋
占地:190平方米
120平米三層30萬別墅圖片大全及全套施工圖,外觀簡潔大方
占地:120平方米
農村建房的“面子天花板”!新中式簡歐結合三層別墅,進門就被
占地:225.98平方米
推薦:10套新農村自建房設計圖,2026年最新設計
閱讀次數:4825737次
100套鄉村別墅圖片大全,2026年最新設計
閱讀次數:2492203次
6款農村蓋一層平房的設計圖,10萬元就能建起來
閱讀次數:1852637次
這11個一層農村自建房別墅火爆了朋友圈!我最喜歡戶型十!你呢
閱讀次數:750268次
農村6萬元建一層小別墅圖,你敢相信嗎
閱讀次數:567686次
農村5萬塊就能自建房,6套普通房子設計圖分享,你沒看錯!
閱讀次數:419410次
8套農村漂亮三間平房圖片,非常適合在農村修建!
閱讀次數:411197次
農村自建房化糞池怎么做?附方案及施工過程
閱讀次數:391783次
農村一層三間平房設計圖,告別土氣養老房,讓人忍不住點贊
閱讀次數:350581次
新農村二層樓房圖片造價12萬,挑一套回家建房吧!
閱讀次數:349126次
