圖紙介紹:本戶型為三層三間別墅設計方案,簡歐風格,帶屋頂花園,藍色屋頂顯得清新脫俗,寬大的窗戶提供足夠的采光,視野極佳。室內布局的功能區域劃分明確,動靜分離。
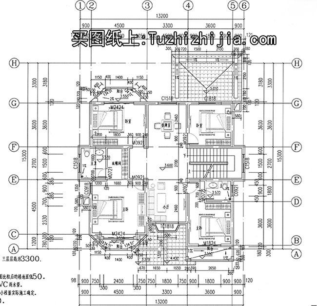
占地面積:13.2m*15.3m,201平方米左右;
建筑層高:三層;
建筑高度:12.51米(含屋頂);
設計功能:
一層戶型展示:前廳、客廳、老人房、臥室、儲藏室x2、廚房、餐廳、衛生間、倉庫
二層戶型展示:小廳、棋牌室、主臥x2、衣帽間、臥室x2、衛生間、陽臺
三層戶型展示:休閑廳、書房、臥室x2、衛生間、娛樂室、露臺
圖紙目錄:
建筑圖:建筑施工總說明、建筑構造設計說明、一層平面圖、二層平面圖、三層平面圖、屋頂平面圖、正立面圖、背立面圖、左立面圖、右立面圖、1-1剖面圖、樓梯大樣圖、門斗大樣圖、節點大樣圖、門窗表
結 構 圖:結構設計總說明、結構常用大樣圖、基礎平面布置圖、一層頂梁結構平面圖、一層頂板結構平面圖、二層頂梁結構平面圖、二層頂板結構平面圖、閣樓層梁結構平面圖、閣樓層板結構平面圖、坡屋頂梁結構平面圖、坡屋頂板結構平面圖、樓梯配筋大樣圖、節點大樣圖
給排水圖:給排水設計總說明、一層給排水平面圖、二層給排水平面圖、三層給排水平面圖、屋頂給排水平面圖、衛生間大樣圖、給排水系統圖
電 氣 圖:電氣設計說明、設備材料表、等電位聯結做法、配電系統圖、弱電系統圖、一層照明平面圖、二層照明平面圖、三層照明平面圖、一層插座平面圖、二層插座平面圖、三層插座平面圖、一層弱電平面圖、二層弱電平面圖、三層弱電平面圖、基礎接地平面圖、屋頂防雷平面圖
本套圖紙共69張A3圖紙+高清效果圖,大戶型推薦


































































































