
|
一般來說,農村蓋房子基本上是想花小錢蓋大房,但事實上看下來,錢還是不能省,尤其是在自建房上面,更是如此;花大價錢蓋出來的房子,就是要比那些隨便設計的要強,而且還好看;住進去自己舒適,在村里人眼里也長臉,要不說下面這棟10米×10米房屋設計圖,花了55萬的造價,可一點都不貴呢
別墅仿照托斯卡納風格自建而成,濃郁的歐式風情顯露無遺,看來房主一個頗具心思之人,外觀上采用了文化石與紅磚的配色,更加霸氣,適合農村!
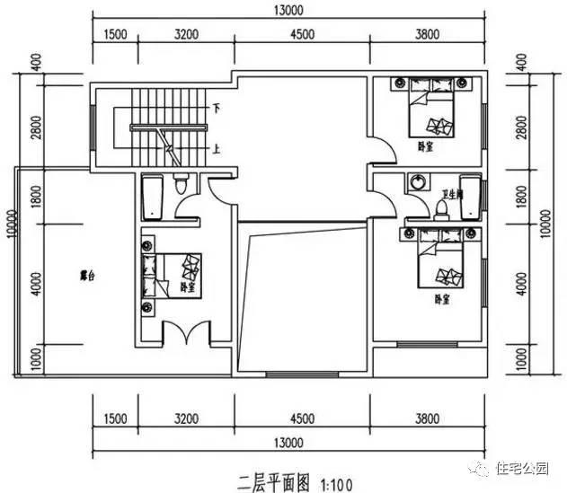
平面布局圖: 別墅占地15X10米,建筑總面積325平方米,三層的設計滿足了農村日常生活所需,首層空間豐盈通透,布局完善,各個功能房間與居室嚴格按照生活進行了妥善的布置!
二層三層則是房屋主要的居住空間,四間臥室一個休息空間的設計滿足了生活需要,三層的超大露臺,也讓生活更加富有趣味!
三層布局:
在農村有一棟這樣的房子,真心不錯,比擠破腦袋想去貸款買商品房的人好太多,生活無憂無慮,這就是我們想要的! 圖紙之家-專注農村別墅/自建房設計18年,集合國內200余位經驗豐富的設計師,被評為口碑最好的農村建筑設計公司! |

新中式農村三層樓房設計圖紙,全套圖紙設計,線條錯落有致
占地:130平方米
新農村兩層帶露臺自建房設計圖,造價30萬內
占地:170平方米
農村四間兩層樓房設計圖,含外觀圖片
占地:138平方米
面寬15米的農村三層房屋設計圖,帶別墅效果圖
占地:137平方米左右
二層雙拼別墅外觀效果圖及施工圖,帶露臺,14乘12米
占地:168平方米
農村小戶型三層復式樓房設計圖,100平左右
占地:100平方米
新中式農村三層四合院別墅設計圖,四合院風格的別墅圖
占地:177平方米
南方新農村三層別墅設計圖紙,含效果圖,帶車庫
占地:120平方米
網紅款兩層別墅圖紙設計圖,外觀簡單好看,后面不開窗
占地:171平方米左右
占地200平米簡歐三層農村別墅設計圖,既顯華麗又接地氣
占地:209.27平方米
實用型農村120平米二層樓房設計圖,小巧美觀實用
占地:120平方米
130平米最新氣派農村四層樓房設計圖,四層樓房圖片
占地:130平方米
簡單實用二層雙拼樓房設計圖,造價30萬左右
占地:180平方米
中國最美的四合院別墅設計圖方案,復式挑空客廳戶型
占地:343.57平方米
120平方米農村漂亮實用的兩層別墅設計圖紙,含外觀圖片
占地:120平方米
鄉村中式四合院二層別墅設計圖,中式韻味十足
占地:223平方米左右
農村兄弟倆雙拼別墅房屋設計圖,外觀質樸
占地:195平方米
新中式三層雙拼別墅設計圖及效果圖,中式大氣風格
占地:235.26平方米
170平方米雙拼別墅戶型建筑設計圖紙及外觀效果圖,復式單戶85平
占地:170平方米
小戶型三層別墅設計圖,戶型經典,外觀精致、美觀
占地:95平方米
推薦:10套新農村自建房設計圖,2026年最新設計
閱讀次數:4825737次
100套鄉村別墅圖片大全,2026年最新設計
閱讀次數:2492203次
6款農村蓋一層平房的設計圖,10萬元就能建起來
閱讀次數:1852637次
這11個一層農村自建房別墅火爆了朋友圈!我最喜歡戶型十!你呢
閱讀次數:750268次
農村6萬元建一層小別墅圖,你敢相信嗎
閱讀次數:567686次
農村5萬塊就能自建房,6套普通房子設計圖分享,你沒看錯!
閱讀次數:419410次
8套農村漂亮三間平房圖片,非常適合在農村修建!
閱讀次數:411197次
農村自建房化糞池怎么做?附方案及施工過程
閱讀次數:391783次
農村一層三間平房設計圖,告別土氣養老房,讓人忍不住點贊
閱讀次數:350581次
新農村二層樓房圖片造價12萬,挑一套回家建房吧!
閱讀次數:349126次
