
|
并不是說宅地越大就越好,相反,面寬進深都差不多10米左右的宅地是最合適的,方正的宅地面積不怕建不出好房子,再按照圖紙要求對其進行細節處理,出來的效果保證比城里的商品房要好看的多。
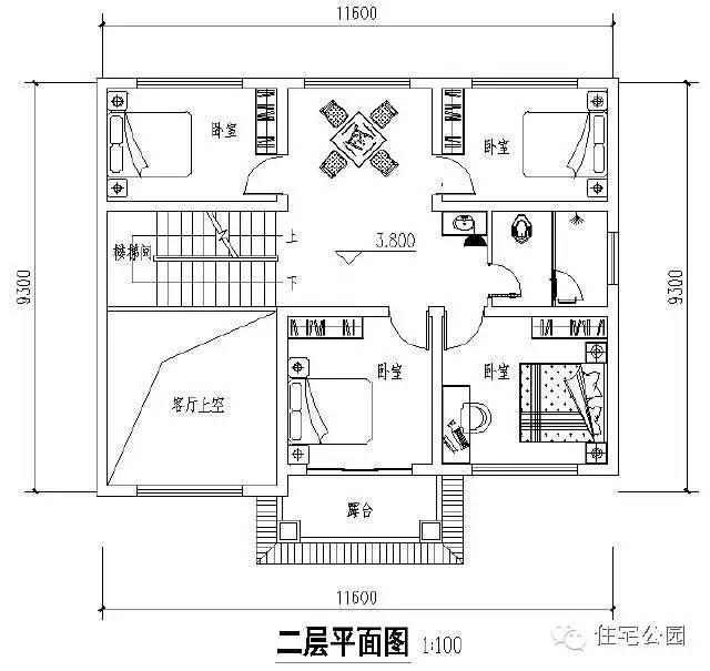
今天的這套農村自建房戶型占地11.8米X9.5米,建筑面積288平方米,建筑高度12.6米,三層的格局能滿足絕大多數農村家庭生活,房子四周有天然植被空間,保證居室生活更加宜人。 立面效果圖:
房屋外立面采用淺黃色文化石鋪設而成,素雅清新的顏色很是惹人喜愛;屋頂選用橙色西班牙防水波形瓦,搭配鐵藝欄桿與裝飾柱,分明的樓層線腳令別墅造型更顯美感。
平面布局圖:
室內空間充盈有余,各功能用房與居室之間相互依托相互聯系,房子雖小但五臟齊全,配以各種生活化器具,樓梯間設計與客廳相通,非常敞亮,保證居室生活舒心宜居不受外在因素打擾。
圖紙之家-專注農村別墅/自建房設計18年,集合國內200余位經驗豐富的設計師,被評為口碑最好的農村建筑設計公司! |

農村三層帶地下室住宅設計圖及圖片,房內設計了兩個套間
占地:210平方米
新農村中式三層四合院別墅設計戶型圖,農村自建四合院效果圖
占地:多種戶型
最新農村三層樓房設計圖紙,客廳中空,采用暖黃色為主色
占地:160平方米
新式三層別墅設計圖,客廳中空,占地125平米左右
占地:125平米
現代一層(帶悶頂)別墅住宅設計圖,外觀現代時尚
占地:160平方米
300平大戶型豪華三層別墅設計圖,帶總統套房
占地:300平方米
農村一層雙拼別墅設計方案,豐富的室內空間配置,滿足您的生活
占地:358.46平方米
帶閣樓的一層半平房設計圖,比樓房還舒適,12米×13米
占地:170.1平方米
經濟小戶型二層中式四合院(三合院)設計圖紙,帶堂屋和庭院
占地:143.544平方米
185平米自建三層別墅房屋施工設計圖紙及效果圖
占地:187平方米
145平方米新農村二層別墅設計效果圖及施工圖,12.6米x11.4米
占地:147平方米
150平米經典二層中式別墅設計圖 ,現代中式相結合
占地:154平方米左右
帶配房的農村三層別墅設計圖,全家享精致生活
占地:167.29平方米
爆火農村養老房設計:16 米面寬一層戶型,自住養老全拿捏
占地:169.87平方米
地中海風格二層別墅房屋設計圖,帶外觀效果圖
占地:150平方米
新農村三層帶露臺自建房設計施工圖,農村自建別墅推薦
占地:112平方米
120平米農村40萬三層別墅自建房款式,簡歐風格
占地:120平方米
2026年新款別墅外觀圖,新中式風格,比簡歐大氣,時尚
占地:135平方米
三層平頂現代風格,農村自建房設計圖,可帶電梯,百看不厭
占地:259.55平方米
農村房子設計圖三層獨棟別墅方案,占地130平方米
占地:130平方米
推薦:10套新農村自建房設計圖,2026年最新設計
閱讀次數:4825737次
100套鄉村別墅圖片大全,2026年最新設計
閱讀次數:2492203次
6款農村蓋一層平房的設計圖,10萬元就能建起來
閱讀次數:1852637次
這11個一層農村自建房別墅火爆了朋友圈!我最喜歡戶型十!你呢
閱讀次數:750268次
農村6萬元建一層小別墅圖,你敢相信嗎
閱讀次數:567686次
農村5萬塊就能自建房,6套普通房子設計圖分享,你沒看錯!
閱讀次數:419410次
8套農村漂亮三間平房圖片,非常適合在農村修建!
閱讀次數:411197次
農村自建房化糞池怎么做?附方案及施工過程
閱讀次數:391783次
農村一層三間平房設計圖,告別土氣養老房,讓人忍不住點贊
閱讀次數:350581次
新農村二層樓房圖片造價12萬,挑一套回家建房吧!
閱讀次數:349126次
