
|
在城里買房子有很大的局限性,開發商怎么建造你就得怎么去居住,沒辦法根據自己的意愿去布置些什么。相反地,當你在農村老家自己建房子時,是不是恨不得想把自己所想全都呈現在這套房子里,將原有的宅基地最大化利用呢?今天為大家介紹的這套戶型,下有地下室、上有陽光房,還有柴火房、茶室等等,功能齊全,還有5個臥室,真是實用! 此戶型開間17.04米,進深16.02米,占地面積235平方米,建筑面積522平方米,建筑高度11.2米,設有5室 3廳 6衛 1廚 1茶室 1柴火房 1陽光房 雙車庫 2露臺 360°旋轉圖: 農村二層樓房實景圖外觀造型優美,線條流暢硬朗,構造修長整潔,選用淡雅的色彩進行深淺的過渡,帶來靈動的視覺之美。室內布局經典、功能用間豐富,不僅有地下室、陽光房,還有柴火房、茶室等,功能齊全,居住干好。
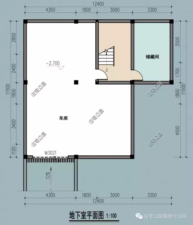
立面圖: 超大落地采光窗讓房子更顯通透,視覺上拉升了住宅的高度,大氣的坡屋頂+玻璃陽光房,格外的美,很是養眼。 平面布局圖: 地下室的設計將有限的空間最大化利用,是限高的地區想將空間最大化利用的首選。此戶型地下室設車庫和儲藏間,既方便了日常的出行,又滿足了儲物的需求。 戶型坐北朝南,正入戶門在南側,外設走廊、花池,增加房子美感;西側也有一個入戶門,可以通向柴火房,柴火房很符合農村的生活習慣,設計實用接地氣;東側是老人房和臥室,皆配有獨立衛生間,居家生活更加舒適便捷。一層除了在陽面中間有一個大客廳外,還有一個茶室,如果說客廳是歡樂的場所,那么,茶室就是修身養性的地方。
在安靜的二層,設3臥室1客廳,另有玻璃陽光房和露臺,將居室與陽光結合,充分享受日光,親近自然,生活更加美好愜意。
戶型經濟技術指標:
圖紙之家-專注農村別墅/自建房設計18年,集合國內200余位經驗豐富的設計師,被評為口碑最好的農村建筑設計公司! |

農村17萬元一層自建別墅設計圖,外觀簡潔,戶型方正
占地:163平方米
農村15萬元二層小樓圖,經濟實用小別墅設計圖
占地:105平方米
一層中式四合院別墅設計方案圖,含外觀效果圖
占地:360平方米含院子
漂亮實用的新農村二層小樓圖,造價20萬左右,超大景觀露臺
占地:130平方米
人氣頗高的三層新中式別墅方案,五種戶型,五種尺寸
占地:120-165平方米
15×12米一層農村寶藏戶型,適合養老房,看完鄰居直接要圖紙!
占地:180平方米
辦公居住共用的一層別墅設計圖,簡約優雅,精致生活新體驗
占地:265.3平方米
三層新農村住宅設計圖及效果圖,三層樓房設計圖展示
占地:140平方米
農村中式兩層雙拼別墅房屋設計圖,含效果圖片
占地:200平方米
簡單二層農村別墅設計圖,占地適中,簡約造型,實用又經濟!
占地:128.4平方米
七字形農村自建房二層設計圖,“L”型別墅設計,簡約時尚!
占地:209平米左右
130平新農村三層房屋設計圖紙,預算30萬以內,蓋房推薦
占地:132平方米
新農村二層小別墅全套設計圖紙(含外觀效果圖)
占地:85.6平方米
200多平方米新農村雙拼別墅設計圖紙,堂屋和樓梯共用
占地:207平方米左右
簡單大方二層小別墅設計圖,占地180平米,造型美觀,構造整齊有
占地:180平方米
備受好評二層半歐式別墅設計圖,五開間對稱設計,布局合理又實
占地:192.48平方米
農村120方三層自建房子圖,好看又不貴的三層農村別墅
占地:120平方米
極簡大氣二層別墅設計圖,15米面寬,簡約大氣,年輕人的最愛!
占地:150平方米
獨棟經濟型二層小別墅房屋設計圖,含全套施工圖效果圖
占地:多種戶型
帶車庫徽派風格三層別墅房屋設計圖,新農村住宅設計推薦
占地:140平方米
推薦:10套新農村自建房設計圖,2026年最新設計
閱讀次數:4825737次
100套鄉村別墅圖片大全,2026年最新設計
閱讀次數:2492203次
6款農村蓋一層平房的設計圖,10萬元就能建起來
閱讀次數:1852637次
這11個一層農村自建房別墅火爆了朋友圈!我最喜歡戶型十!你呢
閱讀次數:750268次
農村6萬元建一層小別墅圖,你敢相信嗎
閱讀次數:567686次
農村5萬塊就能自建房,6套普通房子設計圖分享,你沒看錯!
閱讀次數:419410次
8套農村漂亮三間平房圖片,非常適合在農村修建!
閱讀次數:411197次
農村自建房化糞池怎么做?附方案及施工過程
閱讀次數:391783次
農村一層三間平房設計圖,告別土氣養老房,讓人忍不住點贊
閱讀次數:350581次
新農村二層樓房圖片造價12萬,挑一套回家建房吧!
閱讀次數:349126次
