
|
一套完美的房子,能夠讓你身份倍增,在農村里就是如此,很多看事情都是看外表,如果你家里建得房子是村里最好的,大家都會對你們客氣一點,今天有一套農村自建房別墅設計,如果把它建在村里,肯定能夠讓你的家,在村里鶴立雞群!那咱們就一起來看看這套別墅吧!
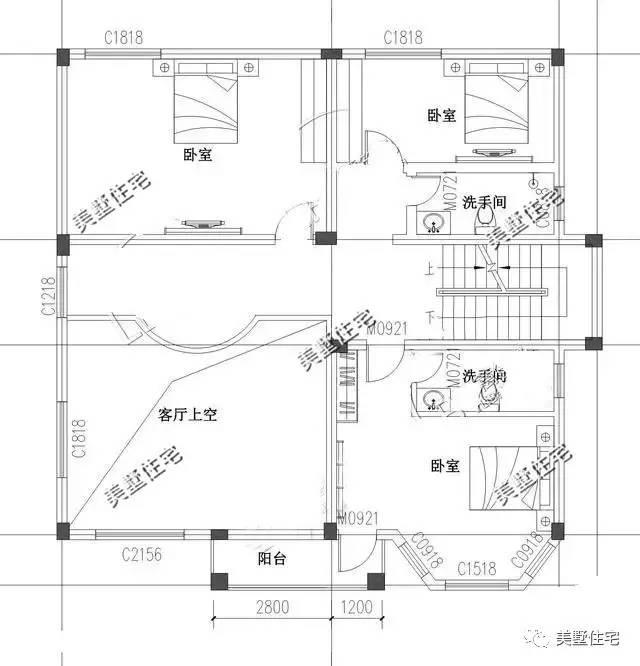
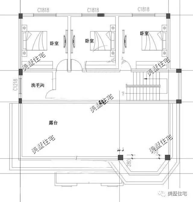
別墅特點:外觀豪氣大方,簡歐風格又帶點時尚風,米色真石漆讓整棟房子顯得高貴,個性化的窗戶設計猶如畫龍點睛之筆,如果這樣的房子建在村里,說話都有底氣!
尺寸:開間11.4米X進深11.8米 占地面積:146平米 建筑面積:381平米 造價預估:40萬左右 這套別墅土豪選擇的比較多,因為它的造價相對來講比較貴,如果外立墻用干掛石材,更能夠凸顯檔次,如果你家要建房,會選擇建這樣一棟? 圖紙之家-專注農村別墅/自建房設計18年,集合國內200余位經驗豐富的設計師,被評為口碑最好的農村建筑設計公司! |

簡單實用新農村三層住宅房屋設計圖,時尚大氣,低調
占地:140平方米
三間三層樓房設計圖紙,復試的設計,漂亮的一塌糊涂
占地:175平方米
平屋頂現代風格三層蓋別墅設計圖紙,面寬18米
占地:235.34平方米
120平方兩層房子設計圖及圖片,外觀大方好看,內部結構合理
占地:120平方米
中國最美的四合院別墅設計圖方案,復式挑空客廳戶型
占地:343.57平方米
大氣農村三層歐式雙拼別墅全套施工圖紙,帶堂屋設計,外觀圖片
占地:196.056平方米
12米寬三間二層農村自建房設計圖,左右對稱布局緊湊看著就舒服
占地:144.94平方米
現代三層農村民房設計圖及圖片,外觀高端、大氣
占地:196平方米
農村兩層半樓房設計圖,平面功能分區明確,布置合理
占地:180平方米
簡單二層農村別墅設計圖,占地適中,簡約造型,實用又經濟!
占地:128.4平方米
165平方米農村帶陽光房的二層小別墅設計圖紙帶外觀圖18.16米*9.
占地:166平方米
120平面三層鄉村樓房設計圖及效果圖,歐式風格
占地:120平方米
農村三間兩層樓房設計圖,背面不開窗,氣勢上就勝人一籌
占地:153.7平方米
被包工頭夸爆的二層別墅戶型!建好未來幾年必火
占地:189.98平方米
農村四層雙拼別墅房屋設計圖,造型現代、大氣
占地:220平方米
性價比超高一層農村自建別墅設計圖,戶型耐看不用爬樓
占地:158.6平方米
農村最漂亮二層歐式別墅設計圖,面寬16.5米(含車庫)
占地:180.366
12x10三層別墅設計圖,農村自建房推薦戶型
占地:120平方米
歐式大戶型三層農村房屋設計圖紙,歐式住宅圖推薦
占地:178平方米
170平方米農村二層房屋設計施工圖,外觀圖時尚、好看
占地:172平方米
推薦:10套新農村自建房設計圖,2026年最新設計
閱讀次數:4825737次
100套鄉村別墅圖片大全,2026年最新設計
閱讀次數:2492203次
6款農村蓋一層平房的設計圖,10萬元就能建起來
閱讀次數:1852637次
這11個一層農村自建房別墅火爆了朋友圈!我最喜歡戶型十!你呢
閱讀次數:750268次
農村6萬元建一層小別墅圖,你敢相信嗎
閱讀次數:567686次
農村5萬塊就能自建房,6套普通房子設計圖分享,你沒看錯!
閱讀次數:419410次
8套農村漂亮三間平房圖片,非常適合在農村修建!
閱讀次數:411197次
農村自建房化糞池怎么做?附方案及施工過程
閱讀次數:391783次
農村一層三間平房設計圖,告別土氣養老房,讓人忍不住點贊
閱讀次數:350581次
新農村二層樓房圖片造價12萬,挑一套回家建房吧!
閱讀次數:349126次
