
|
在農村這些年,隨著生活水平的提高,和醫療的進步,人均壽命也的到了顯著的提高。很多家庭往往開始出現四代同堂,甚至五代同堂,家中人口增多,原先的住房就不太適用了,于是很多家庭就開始迫切的要改善自己的居住條件了,也就是蓋新房。不過家里因為有高齡老人的存在,很多現代化的住宅不能滿足需求,很多人可謂是傷透了腦筋!不過大家不用擔心,因為今天,小編就要給大家帶來一款,能夠滿足家庭多個年齡段需求的中式別墅!話不多說,我們直接上圖!
這是一款非常大氣中式別墅,外屋檐直接延伸了1.5米,看上去十分張揚,極具氣勢。黑色的窗套和屋頂卻又充滿了中式建筑的韻味。可謂是適合多個年齡段的人群!不管你是18歲的青年,還是30歲的壯年,或亦是60歲的老人,都會喜愛這款別墅吧!
整個別墅的開窗,采用了大面積的連體窗,保證了絕對的舒適性和透氣性! 平面布局圖:
因為家里可能會有老人,所以一樓肯定是需要一個老人房的,為了照顧老人的起居生活,所以有單獨的衛生間給到老人。并且考慮到老人家喜愛打牌下棋,邊上就是棋牌室和茶水間,可謂是非常方便,老人家也有自己私人空間。客廳和茶室連在一起,客廳是復試的,很大!餐廳分為大小兩個桌子,這樣家里就算是來人都是有足夠的場地用餐的!最可貴的是考慮到老人家爬樓梯很辛苦,雖然只有三層但是還是裝了一個電梯!
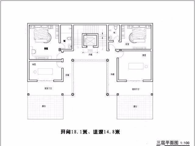
二樓有兩個房間,一般作為主人家所住,追都非常奢華,不僅有超大的洗浴衛生間,還配有大的衣帽間,和大書房!
三層一般為子女居住,這樣可以都有自己獨立的空間,不會互相打擾,雙露臺的設計小編非常喜歡,冬天的時候在露臺上曬曬太陽一定很舒服吧! 內部裝修實景圖: 景觀走廊和電梯
天井
過道
大門
水池
影壁
客廳
實木家具
餐廳
書房
家具
臥室
床頭柜 圖紙之家-專注農村別墅/自建房設計18年,集合國內200余位經驗豐富的設計師,被評為口碑最好的農村建筑設計公司! |

一層半復式帶閣樓別墅設計圖,含外觀圖片
占地:150平方米
占地百平三層歐式別墅設計圖,回到家鄉建一棟,大氣美觀有內涵
占地:99.94平方米
三層農村自建別墅設計圖紙及效果圖,占地110平米,外觀精致又大
占地:110平方米
新中式三層樓房設計圖,外觀精致布局也是相當的樸實
占地:140平方米
帶屋頂平臺的一層農村小別墅圖,有閣樓有露臺
占地:152平方米
帶堂屋設計一層三合院設計圖,白墻黛瓦古韻悠悠,比高層舒服接
占地:179.37平方米
開間9到10米簡約別墅設計圖紙帶效果圖,全套別墅設計方案
占地:122平方米
普通農村二層房子設計圖 ,復式結構,帶車庫,占地160平米左右
占地:160平方米
不帶廚房餐廳的二層別墅設計圖,農村建房很多人都這樣做
占地:124平方米左右
新款鄉村二層半別墅設計圖紙帶效果圖,三層別墅外觀圖片大全
占地:108.795平方米
鄉村兄弟二層小戶型雙拼房屋別墅設計圖,造價低,面積小
占地:多種戶型
農村自建房就選它!一層新中式設計,日常居住需求全搞定
占地:128.45平方米
鄉下建房一層半戶型圖,占地160平米,帶閣樓
占地:多種戶型
簡單農村二層自建房子設計圖,主體18萬就能建好,太心動了!
占地:124.53
三層獨棟別墅設計圖紙帶效果圖,全套施工方案(建筑圖+結構圖
占地:144平方米
現代三層農村房屋設計圖紙及效果圖,帶全套cad建筑圖
占地:95平方米
130平方米復式三層別墅房屋設計圖,含外觀效果圖
占地:130平方米
帶院子的一層農村別墅設計圖,造價不高,養老房首選!
占地:144.819平方米
一層帶地下室雙拼別墅設計圖,理想鄉村生活的標配
占地:416平方米
復式別墅農村四層霸氣豪宅設計圖紙,建好你就是村里第一
占地:136.356平方米
推薦:10套新農村自建房設計圖,2026年最新設計
閱讀次數:4825737次
100套鄉村別墅圖片大全,2026年最新設計
閱讀次數:2492203次
6款農村蓋一層平房的設計圖,10萬元就能建起來
閱讀次數:1852637次
這11個一層農村自建房別墅火爆了朋友圈!我最喜歡戶型十!你呢
閱讀次數:750268次
農村6萬元建一層小別墅圖,你敢相信嗎
閱讀次數:567686次
農村5萬塊就能自建房,6套普通房子設計圖分享,你沒看錯!
閱讀次數:419410次
8套農村漂亮三間平房圖片,非常適合在農村修建!
閱讀次數:411197次
農村自建房化糞池怎么做?附方案及施工過程
閱讀次數:391783次
農村一層三間平房設計圖,告別土氣養老房,讓人忍不住點贊
閱讀次數:350581次
新農村二層樓房圖片造價12萬,挑一套回家建房吧!
閱讀次數:349126次
