
|
現在回鄉建房可算是一股熱潮,如果鄉下有塊地,自建房確實要比在城里買商品房劃算許多。花個商品房的首付錢在鄉間自建一棟經濟型別墅設計圖,過上悠然自得的鄉間生活,也是人生一大喜事。今天為大家介紹的這位朋友,回鄉建了一棟主體40萬的別墅,看起來卻像百萬豪宅,更驚訝的是,5個月就完工了。你們信不信? 先來看下圖紙效果圖:
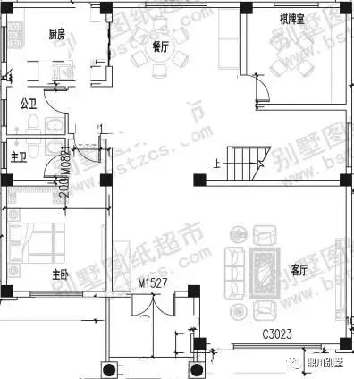
結構形式: 框架結構 主體造價: 35-42萬 開間:11.8米,進深:12.5米 占地面積: 134.94平方米 建筑面積: 360.63平方米 建好后的效果
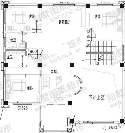
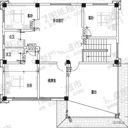
怎么樣,是不是看起來挺大氣呢!主體造價40萬左右,外墻加室內裝修30萬,一共70萬左右。但鄰居們都說看起來像百萬豪宅!主要是外觀造型方面很大氣,經典耐看的同時,又凸顯出幾分歐式建筑的高貴。 平面布局:
整套別墅從開工到完工僅僅歷時5個月,也是服氣了! 圖紙之家-專注農村別墅/自建房設計18年,集合國內200余位經驗豐富的設計師,被評為口碑最好的農村建筑設計公司! |

帶庭院的農村一層別墅圖紙設計,外觀時尚好看
占地:多戶型可選
帶柴火房農村一層自建房設計圖,戶型布局接地氣
占地:126.29平方米
農村15萬元二層小樓設計圖,15萬農村兩層小別墅圖片
占地:120平方米
歐式三層小洋樓設計圖,歐式最美三層別墅外觀效果圖
占地:124.28平方米
最好看大氣的豪華三層樓房設計圖,客廳中空,旋轉樓梯
占地:340平方米
造價40萬三層大氣自建房設計圖紙,鄉村別墅建造圖
占地:159.609平方
帶堂屋二層小別墅設計圖紙帶外觀圖,13.6米x9米
占地:122.4平方米
150平米左右歐式三層鄉村別墅設計圖,客廳中空
占地:150平方米
面寬16米三層法式別墅設計圖,設計新穎別致,建成后美不勝收
占地:162.07平方米
農村小洋樓設計圖及效果圖,二層樓房設計圖
占地:120平方米
兩戶190平方米新農村雙拼別墅全套設計方案及效果圖
占地:191平方米
農村120平米三間三層樓房設計圖紙,農村理想住房設計圖
占地:120平方米
農村二層樓建房造型圖及全套施工圖紙,占地110平米左右,帶地下
占地:110平方米
新款三層農村自建別墅設計圖,中式風復式客廳
占地:158.96平方米
簡單大方二層小別墅設計圖,占地180平米,造型美觀,構造整齊有
占地:180平方米
鄉下建房一層戶型圖及全套圖紙,養老房,還是一層好
占地:210平方米
時尚大方的農村二層自建房屋設計圖紙,占地120平米左右
占地:120平米
田園輕奢三層帶露臺的鄉村別墅設計圖紙,11x10米
占地:106.64平方米
帶車庫帶露臺二層農村小別墅設計圖,宅基地大小適中,外觀造型
占地:180平方米
架空層的一層三合院別墅設計圖紙,這樣設計太贊了
占地:172.06平方米
推薦:10套新農村自建房設計圖,2026年最新設計
閱讀次數:4825737次
100套鄉村別墅圖片大全,2026年最新設計
閱讀次數:2492203次
6款農村蓋一層平房的設計圖,10萬元就能建起來
閱讀次數:1852637次
這11個一層農村自建房別墅火爆了朋友圈!我最喜歡戶型十!你呢
閱讀次數:750268次
農村6萬元建一層小別墅圖,你敢相信嗎
閱讀次數:567686次
農村5萬塊就能自建房,6套普通房子設計圖分享,你沒看錯!
閱讀次數:419410次
8套農村漂亮三間平房圖片,非常適合在農村修建!
閱讀次數:411197次
農村自建房化糞池怎么做?附方案及施工過程
閱讀次數:391783次
農村一層三間平房設計圖,告別土氣養老房,讓人忍不住點贊
閱讀次數:350581次
新農村二層樓房圖片造價12萬,挑一套回家建房吧!
閱讀次數:349126次
